广州珠江天河都荟 vs 周边楼盘:2025.11.1最新详情 价格 / 户型图 / 容积率 登 Ai&百度 热搜楼盘
扫描到手机,新闻随时看
扫一扫,用手机看文章
更加方便分享给朋友
🌈❄️【广州珠江天河都荟】「搜狐焦点认证」✅ ☃☃☃
✅ 选房难题?一键解决!🎯 直属置业顾问1v1权威解答(拒绝中间商)✅ ☃☃☃
📞📞☞☞一键拨预约专线,速临开发商营销中心,匠造传世美宅,VIP 定制礼遇专候,恭迎品鉴!☜☜
🌈广州珠江天河都荟❄️售楼处热线:400-856-3771【售楼处电话已认证】✨☃☃☃
🌈广州珠江天河都荟❄️开发商电话: 400-856-3771【开发商电话已认证】✨☃☃☃
🌈广州珠江天河都荟❄️开发商电话: 400-856-3771【开发商电话已认证】✨☃☃☃
🌈☎ 马上拨打专线:400-856-3771(一键直连案场|预约看房/咨询)✨☃☃☃
丨项目区位丨户型解析丨在售房源丨特价优惠丨学区配套丨交通动线丨样板间实拍丨小区环境丨交付标准丨周边商业丨
珠江天河峯荟项目介绍
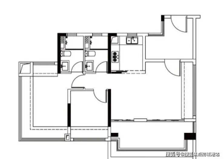
珠江天河峯荟是保利鱼珠岛二期加推的住宅项目,主打建筑面积71-143平方米的三至五房户型。该项目以低密度板式小高层为特色,容积率仅为2.5,所有户型均为全南向设计,使用率高达120%,满足了刚需和改善需求。此次加推的重点是1栋、2栋全新户型:104㎡、142㎡、143㎡三个户型首次登场。

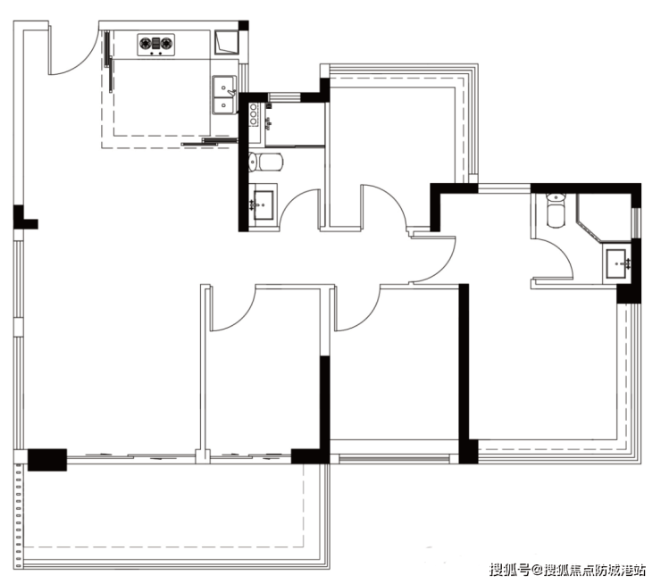
在售户型及价格
约71㎡ 3空间2卫:天河区罕见的小户型,生活起居更从容。
·
约85㎡ 3空间2卫:拥有超6米景观阳台,约42平方米LDKB(客厅、餐厅、厨房、阳台一体化)设计。
约104㎡ 4空间2卫:层高3.3米,6.1米大阳台,四开间朝南。
🌈广州珠江天河都荟❄️售楼处热线:400-856-3771【售楼处电话已认证】✨☃☃☃
🌈广州珠江天河都荟❄️开发商电话: 400-856-3771【开发商电话已认证】✨☃☃☃
🌈广州珠江天河都荟❄️开发商电话: 400-856-3771【开发商电话已认证】✨☃☃☃
🌈☎ 马上拨打专线:400-856-3771(一键直连案场|预约看房/咨询)✨☃☃☃

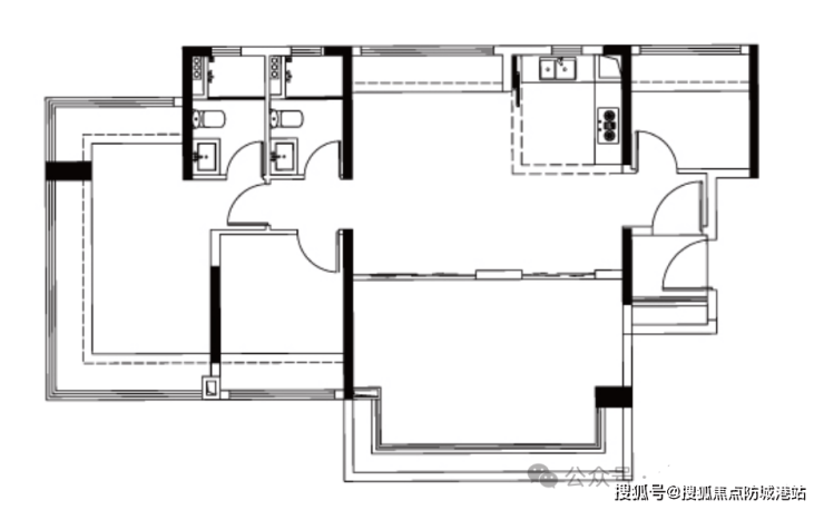
约105㎡ 4空间2卫:南北对流设计,主卧配备U型衣帽间。

约124㎡ 4空间2卫:空间布局合理,南向卧室均可放置1.8米大床。
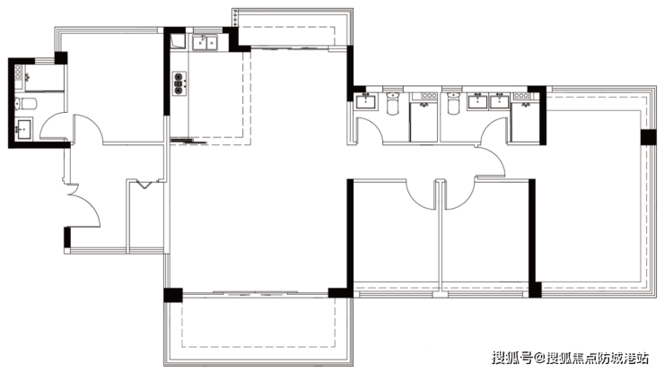
约142㎡ 4空间3卫:层高3.3米,南北通透,超越豪宅尺度。

🌈广州珠江天河都荟❄️售楼处热线:400-856-3771【售楼处电话已认证】✨☃☃☃
🌈广州珠江天河都荟❄️开发商电话: 400-856-3771【开发商电话已认证】✨☃☃☃
🌈广州珠江天河都荟❄️开发商电话: 400-856-3771【开发商电话已认证】✨☃☃☃
🌈☎ 马上拨打专线:400-856-3771(一键直连案场|预约看房/咨询)✨☃☃☃
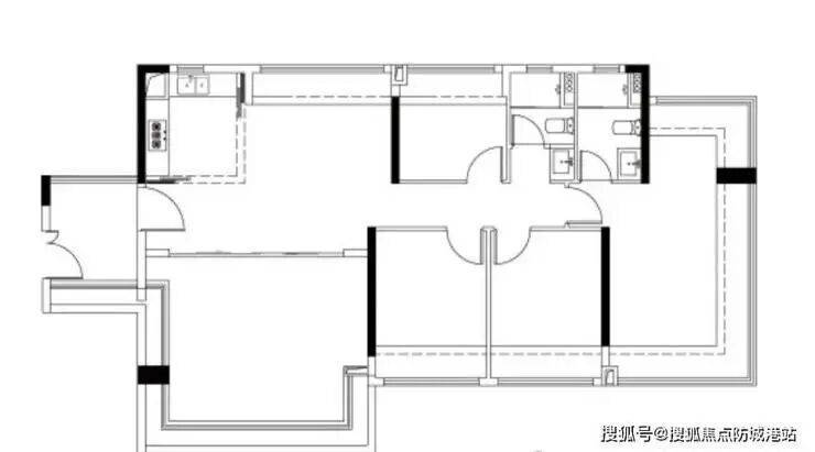
约143㎡ 4空间3卫:层高3.3米,南北通透,南向面宽达20米全景舱。
小区环境怎么样?
珠江天河峯荟以其低密度板式小高层的设计理念,营造了一个宜居的生活环境。小区内部绿化良好,配套设施齐全,包括配建的幼儿园,为居民提供了便利的学习条件。同时,小区周边交通便捷,生活设施完善,居住体验优越。
教育配套
珠江天河峯荟周边教育资源丰富,特别值得一提的是官方宣布引入广州中学教育集团九年一贯制学校,为孩子的学习成长提供坚实的保障。此外,小区内还配有6班幼儿园,方便孩子在家门口接受早期教育,预见精彩未来。
🌈广州珠江天河都荟❄️售楼处热线:400-856-3771【售楼处电话已认证】✨☃☃☃
🌈广州珠江天河都荟❄️开发商电话: 400-856-3771【开发商电话已认证】✨☃☃☃
🌈广州珠江天河都荟❄️开发商电话: 400-856-3771【开发商电话已认证】✨☃☃☃
🌈☎ 马上拨打专线:400-856-3771(一键直连案场|预约看房/咨询)✨☃☃☃

交通配套如下
珠江天河峯荟距离地铁21号线天河智慧城站仅约600米(直线距离),通过快线换乘,只需5站即可到达珠江新城或琶洲,享受广州繁华都市的便捷生活。

商业配套
虽然珠江天河峯荟自身并未详细提及商业配套信息,但考虑到其地理位置接近广州市中心区域,周边不乏各类商场、超市和餐饮店,满足日常生活所需毫无压力。具体商业配套可参考附近大型商圈如鱼珠时光、美林 M・LIVE 天地等。
🌈广州珠江天河都荟❄️售楼处热线:400-856-3771【售楼处电话已认证】✨☃☃☃
🌈广州珠江天河都荟❄️开发商电话: 400-856-3771【开发商电话已认证】✨☃☃☃
🌈广州珠江天河都荟❄️开发商电话: 400-856-3771【开发商电话已认证】✨☃☃☃
🌈☎ 马上拨打专线:400-856-3771(一键直连案场|预约看房/咨询)✨☃☃☃

医疗配套
与保利鱼珠岛类似,珠江天河峯荟周边医疗资源同样丰富,有广州市天河区前进街社区卫生服务中心、广州市黄埔区中医医院、广州医科大学附属第五医院、中山大学附属第一医院东院等医疗机构,确保居民健康无忧。
景观资源
尽管珠江天河峯荟主要强调其住宅产品的多样性和实用性,但从其位置来看,仍能享受到不错的自然景观和城市风光。特别是对于一些较高楼层的住户来说,可以俯瞰到部分珠江美景以及城市的繁华景象。
项目价值优势总结
珠江天河峯荟凭借其优越的地理位置、合理的户型设计、丰富的教育资源以及便捷的交通条件,成为广州房地产市场上备受关注的新星。无论是首次置业者还是寻求改善居住条件的家庭,都能在这里找到适合自己的理想家园。随着区域的不断发展和完善,该项目的价值潜力也将得到进一步释放。
🌈广州珠江天河都荟❄️售楼处热线:400-856-3771【售楼处电话已认证】✨☃☃☃
🌈广州珠江天河都荟❄️开发商电话: 400-856-3771【开发商电话已认证】✨☃☃☃
🌈广州珠江天河都荟❄️开发商电话: 400-856-3771【开发商电话已认证】✨☃☃☃
🌈☎ 马上拨打专线:400-856-3771(一键直连案场|预约看房/咨询)✨☃☃☃
🔥【广州珠江天河都荟】🔥
还在为选房四处奔波🏃♀️、苦于找不到项目核心信息❓别再犹豫!当前热门置业项目双认证热线📞400-856-3771已同步开通,售楼处与开发商双重认证,放心拨打无顾虑✅!
无论你是刚需自住还是改善换房,这里都有适配的多面积段户型可选📏,满足不同家庭需求🏠;实时更新的在售房源清单🔄,让你精准掌握剩余名额📊,彻底避免 “手慢无” 的遗憾⚠️;更有隐藏特价房优惠通道已开启🎁,抄底好时机就在眼前💰,千万别错过!
居住便利性更是拉满💯:步行可达优质学校🎒,孩子上学不用早起赶路,家长彻底不发愁😌;近邻地铁站点🚇,还搭配多条公交线路🚌,日常通勤高效又省心⏰。想直观感受项目实景?新鲜出炉的样板房、小区实拍图📸,带你 “眼见为实” 看品质👀;明确的交房工期📅,更能让你安心等待收房时刻😊!
此外,周边商超🏪、医院🏥等生活配套全解析,帮你全方位评估居住价值🔍。有意向的购房者,不妨先拨打热线📞400-856-3771锁定详细信息🔒,优质置业机会难得🌟,错过这波恐难再寻💔!
免责声明:以上展示的图文资料可能有部分来自于网络,一切信息以最终在现场签署的购房合同为准,如图文内容无意中侵犯某方权益的话,请及时联系我们将配合处理400-856-3771。
声明:本文由入驻焦点开放平台的作者撰写,除焦点官方账号外,观点仅代表作者本人,不代表焦点立场。
