富颐都荟(售楼处)首页网站-富颐都荟营销中心-富颐都荟欢迎您-地址-价格-户型-小区环境-楼盘详情-交房时间-周边配套-售楼处电话
扫描到手机,新闻随时看
扫一扫,用手机看文章
更加方便分享给朋友

项目名称:富力南驰.富颐华庭
总占地面积:约80万㎡
总建筑面积:约230万㎡
容积率:3.59
绿化率:30%
停车位:共8024(一期)个车位
楼栋总数:39
总户数:8848
物业公司:广州市腾顺物业发展有限公司
物业费:3.18元/平方米.月
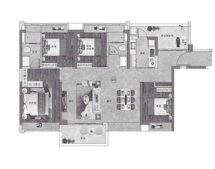
产品类型:105~137m²
富颐华庭(富颐都荟)位于广州市黄埔区茅岗路以西,在售建面约 78—139 方 2/3/4 室。
项目特点
其处于重要区域,与金融城一脉相承,被定为广州“第二 CBD”。这里是人工智能与数字经济试验区所在地,未来琶洲、金融城、鱼珠将联手创造巨大营收。鱼珠凭借多重利好和产业基础,成为新星,众多地标崛起,产业茁壮成长。
项目配套

交通方面,被 4 条主干道和 4 条地铁环绕,可便捷通往各处。自驾通过多条主干道也能直通珠江新城。
教育上,对口广大附中黄埔实验学校(西校区)。
商业方面,有美林 M·live 天地等 6 大商业巨擘环绕,项目自身商业体也在建设中。
医疗上,周边有多家医院,驾车 15 分钟左右可达。
社区有超 5 万㎡园林,设置多种休闲设施。
区域介绍
项目位于黄埔临港经济区鱼珠核心功能区,是进入黄埔的西大门,交通便捷,周边资源配套齐全。在十四五规划中,黄埔临港经济区被重点提及,将构建“一核三带多点”的产业格局。
户型鉴定
78㎡户型做到 2+1 房,是刚需上车优选。

93㎡户型竖厅设计,格局方正,通透明亮。

105㎡户型讲究居住舒适度,动静分离。

125㎡户型有灵动空间,可自由改造。

137㎡户型空间感极致,4+1 房设计适合大家庭。

深圳出台楼市新政:除福田南山外,深圳8区进一步放松住房限购政策
财联社9月5日电,深圳市住房和建设局、中国人民银行深圳市分行9月5日晚发布通知,为更好满足居民刚性住房需求和多样化改善性住房需求、促进房地产市场平稳健康发展,经市政府同意,现就进一步优化调整房地产政策措施通知如下:一、分区优化调整居民购买商品住房政策(一)符合本市商品住房购买条件的居民家庭(包括本市户籍居民家庭、自购房之日前在本市连续缴纳社会保险或个人所得税满1年及以上的非本市户籍居民家庭),在罗湖区、宝安区(不含新安街道)、龙岗区、龙华区、坪山区、光明区范围内购买商品住房不限套数。(二)无法提供自购房之日前在本市连续缴纳社会保险或个人所得税满1年及以上证明的非本市户籍居民家庭,在罗湖区、宝安区(不含新安街道)、龙岗区、龙华区、坪山区、光明区范围内购买商品住房限购2套。(三)在盐田区、大鹏新区购买商品住房,不再审核购房资格。(四)成年单身人士按照居民家庭执行商品住房限购政策。二、分区优化调整企事业单位购买商品住房政策企事业单位可在本市范围内购买商品住房,用于解决员工住房等需求。其中,在福田区、南山区和宝安区新安街道范围内购买商品住房,需同时满足设立年限满1年、在本市累计缴纳税款金额达100万元人民币、员工人数10名及以上条件;在本市其他区域购买商品住房,不再审核购房资格。三、优化调整个人住房信贷政策各银行业金融机构根据深圳市市场利率定价自律机制要求和本机构经营状况、客户风险状况等因素,在利率定价机制安排方面不再区分首套住房和二套住房,合理确定每笔商业性个人住房贷款的具体利率水平。本通知自2025年9月6日起施行。
声明:本文由入驻焦点开放平台的作者撰写,除焦点官方账号外,观点仅代表作者本人,不代表焦点立场。
