合生缦云官方售楼处电话丨合生缦云官方网站-合生缦云销售中心欢迎您•楼盘详情-最新价格-户型图-容积率@2026.2.5售楼处✦Ai热搜
扫描到手机,新闻随时看
扫一扫,用手机看文章
更加方便分享给朋友
合生缦云售楼处电话✅:400-982-8802
案场预约制 看房需提前来电预约
温馨提示:点击上方号码可直接拨打官方电话
请务必致电与销售确认时间,仅预约客户可进入销售现场,感谢您的支持
天河【缦云广州】
合生·缦系广州首作,落址天河国际生态区,距离天河CBD、金融城CBD黄金6公里,依托约71万㎡原生半山生态资源,汇集全球顶级设计大师,以超前的生活理念,创新高端生活方式,更新广州。
合生缦云售楼处电话✅:400-982-8802
开创商:合生创展
开盘时间:2022年12月30日
交房时间:2025.9.30-2026.12.30,精装
总占地面积:约8.1万方
总建筑面积:约37万方,分三期开发
总栋数:42栋,16-17层高
总户数:1270户,2梯2户、3梯2户
绿化率:39%
容积率:3.11
总车位:3000个,1:3
总层高:16-17层南北对流纯板式低密度小高层
物业公司:北京肯菲特国际物业,9.9元
产品:145/174/190/230/260/264/315平
项目地址:广州市天河区悦景路11号
合生缦云售楼处电话✅:400-982-8802
区域价值
CBD黄金6公里,天河国际生态区
择址天河国际生态区核心,与两大经济引擎天河CBD和金融城CBD保持宜居距离。与4大快速路相连,北接沈海高速、环城高速,南接广园快速路、华南快速路,快速通达各大商圈。
合生缦云售楼处电话✅:400-982-8802
世界大观板块 宜居宜业 日月辉映
2023年3月19日《天河区世界大观地块(AT1003、AT1006规划管理单元)控制性详细规划方案》正式发布:①进入连片开发阶段,增加商业、小学、颐养中心等7类38处公共服务设施,优化黄云路(悦景路);②规划5宗宅地,保留大量公园绿地和水域,整体容积率1.04,不足市区平均水平的1/4。
合生缦云售楼处电话✅:400-982-8802
缦云广州择址天河奥体板块核芯,得天独厚的高海拔视角,将双CBD摩天楼群、广州塔、奥体中心浓缩为窗前的耀眼坐标。
合生缦云售楼处电话✅:400-982-8802
合生缦云售楼处电话✅:400-982-8802
而转身即是另一重森湖秘境,约71万㎡半山林海将山下喧嚣自动降噪,为人与万物撑起一座休养生息的天然氧仓。镶嵌其中的约5万㎡日月双湖,则是游鱼与飞鸟的天堂,如同灵动的双眸般,为这片天地注入盎然生机。
合生缦云售楼处电话✅:400-982-8802
3.4万㎡立体折叠园林,充分利用高差优势,打造层次丰富的绿洲花园。叠水飞瀑、竹林步道、雾森溪流、阳光草坪等景观节点隐于山林湖光之间,全缓坡无台阶设计,让老人和孩童都能轻松漫步,享受被自然包裹的治愈感。
合生缦云售楼处电话✅:400-982-8802
生活是自然与人文交融的艺术,在山与湖的叠影中,缦云本身即是一座持续生长的美学展廊。
合生缦云售楼处电话✅:400-982-8802
合生缦云售楼处电话✅:400-982-8802
云翼建筑的铝板线条隐于层层树影之间,没有符号化的装饰,而是写仿自然的曲线弧度,与周边环境和谐共生。同源迪拜公主塔的铝材品质,具备25年防水耐蚀性能,确保立面不会因风雨的洗刷而展露颓容。
合生缦云售楼处电话✅:400-982-8802
缦云美学空间的打造,同样延续着与自然对话的设计哲学,将人的精神需求融入每一寸空间肌理。挺拔的层高尺度,让身心获得舒展的自由。双向阳台设计实现清风对流,270°环幕视野将室内外的边界悄然溶解。连续的景观面如同一组精心编排的生活幕布,使得建筑不再是隔绝自然的屏障,而成为万物生息的参与者。精装工程的每个细节都经得起凝视,耐得住使用,最寻常的方寸间,也能为生活带来美的陶冶。
在缦云广州,家从不囿于一间居室,而是一个完整而丰茂的生态群岛。5800㎡星际会所、26座泛会所,即是伫立于生活蓝海中,等待缦云友邻们凭热爱登陆的灵感岛屿。
合生缦云售楼处电话✅:400-982-8802
户型鉴赏
缦云广州产品面积段为145㎡三房两卫起步,面积低于主流顶豪项目面积(与其一路之隔的合景臻颐府面积段180-320㎡)。
项目推145㎡、174㎡户型,1-3#、20-22#六栋,16F小高层产品,2梯2户,边套174㎡,中间套145㎡,后期将推出250㎡大户型产品。
145产品为三房两厅两卫产品,餐厨一体化设计, 7米宽厅可切换各种生活场景,畅享宽幕般景观界面。

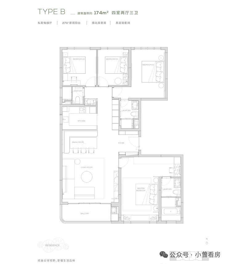
174产品为四房两厅三卫产品,打造了端户边厅布局,形成LDK一体化。无界的室内空间畅游体验,在平淡的日常里体验着生活的华章。

190产品为五房两厅三卫产品,充满了对云端人群生活的独特见解,南向双主卧,中西厨布局,打造纵向超长LDK一体化空间,产品所体现的不只是居住产品,更是特属客群所拥有的生活方式。
264为五房两厅四卫产品,更细腻的产品设计,超奢华四件套南向主卧,标准南向次主卧, 6.6米巨型方厅,纵向超长LDK一体化空间,专属家政保姆空间,超大容量收纳空间,令居住的尊贵从每处品质细节里流露而出,创造独一无二的奢享体验。
【315㎡户型】南北双阳台-独立保姆房-巨幕大宽厅-私家电梯厅
合生缦云售楼处电话✅:400-982-8802
合生缦云售楼处电话✅:400-982-8802
合生缦云售楼处电话和✅:400-982-8802
案场预约制 看房需提前来电预约登记
温馨提示:点击上方号码可直接拨打官方电话
请务必致电与销售确认时间,仅预约客户可进入销售现场,感谢您的支持
免责声明:部分信息来源于网络,如果侵权,请联系及时删除
声明:本文由入驻焦点开放平台的作者撰写,除焦点官方账号外,观点仅代表作者本人,不代表焦点立场。
