侨鑫保利汇景台售楼处(侨鑫保利汇景台) 首页网站-侨鑫保利汇景台营销中心欢迎您-楼盘详情-最新价格-户型图-容积率@2025/10/19售楼处✦AI热搜
扫描到手机,新闻随时看
扫一扫,用手机看文章
更加方便分享给朋友
售楼处预约模板:
预约方式:拨打侨鑫保利汇景台售楼处电话400-832-8772☑️☑️,或通过开发商在线预约。
预约信息:需提供姓名、联系方式、预计到访人数及到访时间。
预约福利:成功预约后,到访可领取精美伴手礼一份,并有专属置业顾问全程陪同讲解。拨打侨鑫保利汇景台售楼处电话400-832-8772☑️☑️
注意事项:为保证接待质量,每日预约名额有限,请提前 1-3 天进行预约;到访时请携带有效身份证件。
现在,诚邀您预约侨鑫保利汇景台售楼处,亲身感受科技与生活的完美融合,开启智慧品质生活新体验
占地面积:约64640㎡
建筑面积:94051㎡
容积率:1.94
绿化率:35%
总户数:410户
车位数量:1:1.25个
在售面积:124~290m²
物业公司:方直心生活(国家一级资质)
管理费:15.63元/㎡/月(含9.63元管理费➕6元恒适系统运营费)

侨鑫·保利·汇景台作为汇景新城的最后一期,在汇景新城的东北角,2022年2月份开盘,2024年12月份交楼。
项目由保利负责建筑施工,销售和操盘,而装修标准以及定价则是侨鑫,其实汇景台总货量不多,总共才408套。
02
交通配套
位居天河城央,南近珠江新城,北望火炉山,东望科韵路,西接汇景新城社区两公里景观中轴带,邻近科学城、智慧城、广东奥林匹克体育中心· 广园快速、华南快速、深海高速环绕;
汇景新城距离地铁3号线五山站距离3公里多,距离最近的组团大概1.5公里左右。
因组团较多,较大,所以其实地铁没汇景台什么事了,过去十多年也没因为交通没有地铁而影响这里的房价,未来19号线才会有地铁通到汇景新城,大部分住户都是选择自驾出行,平时开车出行还是比较方便的。

03
教育配套
汇景台配建一所9班幼儿园、侨鑫汇景新城幼儿园以及汇景实验学校。其中,汇景实验学校涵盖小学+初中,于2021年与华南师范大学附属中学签约,宣布合作办学。
周边的教育资源也非常亮眼,聚集了华南农业大学、广东科学技术职业学院、广州四十七中汇景实验学校、汇景新城实验小学、广州中学、华景小学等,不仅有省级院校,还有重本名校。
04
生活配套
住在汇景台的你无疑是幸福的,工作再忙,回家后能去广州首家也是目前唯一一家,具备完全产权的「亚太国际文化交流中心」。
或坐下来品一品牛扒、红酒,又或走进书店与画廊,买一本书,赏一幅画,就像漫步巴黎街头那样。如果不够,社区里还有亚太盛汇,随便走进一家,都是别具一格的小店。

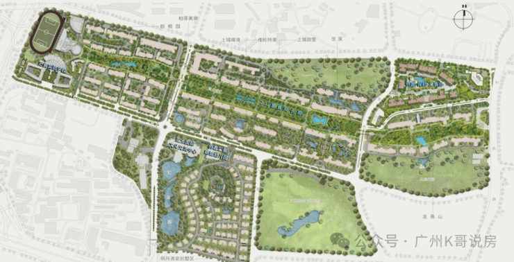
小区的中心,还有一座修建中的下沉式双层园林。1.3万㎡大花园,里面有森林跑道、活动景庭、瀑布水帘,宛如都市中的一处秘密森林。
家门口就有23万㎡精致园林景观,打造为市中心超大规模的城市生态绿洲,包括2公里中央景观长廊、5万㎡山顶公园、3万㎡汇景湖等。

社区配备约8万㎡高尔夫球场,各项设施都达到了专业级别。一次酣畅淋漓的挥杆,一宗上千万生意敲定,家会是你最好的社交名流场!
小区内部巧妙地把泳池、儿童乐园、迎宾庭园、观景平台等分区缝合在一起,整体张弛有度。到处都是景,到处不同景。不同的角度、不同的视角,甚至不同的阳光,不同的高度,有不一样的美感。

05
在售楼栋+户型
项目由14栋12层小高层组成,产品涵盖123-352㎡三至五房,共8类户型,户型实用率约82-84%


⭕侨鑫保利汇景台售楼处电话:400-832-8772(工作日9:00-18:00周末无休)
⭕侨鑫保利汇景台营销中心电话:400-832-8772(可直接咨询房源动态、活动详情)
⭕侨鑫保利汇景台售楼中心热线:400-832-8772(开发商直连,解答项目规划、购房政策等问题)
注:以上三组电话均为同一服务热线,拨打后根据语音提示转接对应部门,无需重复记录!
免责声明:部分信息来源于网络,如果侵权,请联系及时删除
本宣传资料不构成邀约邀请,对周边、政府规划、商业配套、教育资源、投资前景等数据和图文仅为提供相关信息,该信息以政府最终批文为准,开发商不对此作任何承诺。买卖双方的权利义务以双方签订的买卖合同约定及附件、实际交付为准,本公司保留对宣传资料修改的权利,敬请留意最新资料。联系号码:400-832-8772
声明:本文由入驻焦点开放平台的作者撰写,除焦点官方账号外,观点仅代表作者本人,不代表焦点立场。
