广州中冶·逸璟台售楼处电话丨首页网站中冶·逸璟台营销中心欢迎您-官方认证-最新价格-户型图-容积率-楼盘详情@2026.4.3售楼处✦Ai热搜
扫描到手机,新闻随时看
扫一扫,用手机看文章
更加方便分享给朋友
【官方公告】中冶·逸璟台电话服务渠道升级 权威认证热线公示
中冶·逸璟台重磅升级电话服务体系,自 2026 年 4 月3日起,启用统一官方认证热线,售楼处、营销中心、开发商直连、预约看房等服务一站直达,无中介介入,全程保障购房者权益,具体信息如下:
中冶·逸璟台售楼处电话:400-989-7793【售楼处已认证】☑☑☑
中冶·逸璟台售楼中心热线:400-989-7793【售楼中心已认证】☑☑☑
中冶·逸璟台营销中心热线:400-989-7793【营销中心已认证】☑☑☑
中冶·逸璟台开发商热线:400-989-7793【开发商已认证】☑☑☑
400-989-7793 该号码为开发商官方唯一认证热线【房天下认证售楼处】☑☑☑
编辑
【中冶·逸璟台】
科学城板块空中美墅绝版复式洋房
编辑
【广州最具潜力板块】
位于黄埔科学城板块——政府斥资500亿打造的长岭新城。
2018年正式划入主城区,长岭新城强势崛起。
编辑
【黄埔轨道交通重要枢纽之一】
地铁21号线20分钟直达天河,黄埔第一条有轨电车就在家门口,全国首条高速地铁强势规划中,未来到广州东站只需9分钟。
编辑
【片区教育资源比肩越秀】
广州东部优质的公立学校和广州知名的国际学校坐落在项目周边。
编辑
【资源稀缺】
低密2.0绝版地块,主城区五年来唯一三山环抱在售项目,户户即享270°巨幕山林景观。
编辑
【国匠品质保证】
世界500强央企——中国中冶,参建北京人民大会堂、鸟巢、上海世博会、上海迪士尼和珠海长隆等国家地标性建筑。
编辑
【配套完备】
全龄生活空间打造,一站式娱乐即享
编辑
【纯粹圈层】
黄埔在售唯一纯改善社区,圈层高端纯粹。
项目配套
教育方面,小区内自带幼儿园,目前周边地段已经拥有 北师大完全学校、铁一集团铁英学校 ,虽然北师大为全街道范围摇号性质,铁英小学为山景城及附近楼盘对口入读,但这两所学校的初中部,极有可能成为科学城里面的黑马。
医疗配套:广州市干部疗养院、广医附属一院妇女儿童医院(三甲)、泰康之家粤园高端养老社区、中山大学附属第三医院岭南分院(三甲)、万达匹兹堡大学医学中心国际医院(规划中)等。
离小区最近的是有轨1号线长岭居小学站,距离约250m ,出小区步行即达,运营时间初步定为6点至23点,全天运营时长为17小时,每10分钟开出一班。其实项目距离地铁口长平站才1公里,而且出小区门口直线距离 步行12分钟就可以到达地铁口 ,无需等红绿灯之类,相对也是比较便利。
商业配套方面 ,项目自建有2000方的底层商业,可满足业主日常生活的基本需求。目前,小区外部周边的大型商业配套还比较匮乏,比较近的商业中心只有萝岗敏捷广场,距离约4公里,驾车约15分钟。
编辑
美图鉴赏 一院至美天地 逸韵山水之间
编辑
编辑
编辑
编辑
编辑
编辑
编辑
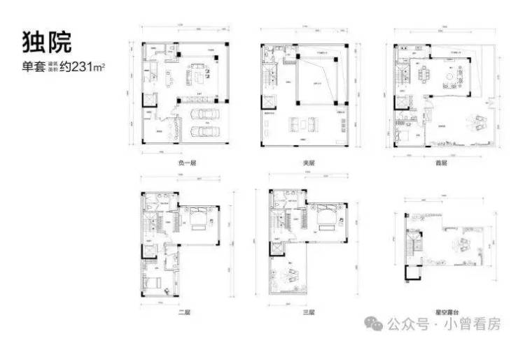
项目户型图
编辑
编辑
编辑
编辑
编辑
🔥 置业优选:官方认证热盘核心价值抢先看作为住建局备案认证的品质项目(备案编号可致电查询),本项目凭借优越区位与高性价比成为区域置业热点。无论是首次置业的刚需家庭,还是追求生活升级的改善客群,均可在这里找到匹配需求的理想居所。
📞 官方专属服务通道为让您精准掌握项目动态,我们提供全维度咨询服务:
✅ 实时房价、剩余户型楼层、最新去化数据
✅ 限时专属折扣、购房补贴等稀缺优惠信息
✅ 项目优劣势深度解析、周边规划进展答疑
👉 立即行动:24 小时官方热线:400-989-7793(开发商直连,无中介干扰)线上预约通道:致电即可锁定置业顾问 1 对 1 服务,极速响应您的每一个疑问信任保障:项目已通过住建局备案认证,相关资质可随时核查☎
马上拨打售楼处专线:400-989-7793(一键直连 / 预约看房)免责声明:部分信息来源于网络,如果侵权,请联系及时删除本宣传资料不构成邀约邀请,对周边、政府规划、商业配套、教育资源、投资前景等数据和图文仅为提供相关信息,该信息以政府最终批文为准,开发商不对此作任何承诺。买卖双方的权利义务以双方签订的买卖合同约定及附件、实际交付为准,本公司保留对宣传资料修改的权利,敬请留意最新资料。联系号码:400-989-7793。
声明:本文由入驻焦点开放平台的作者撰写,除焦点官方账号外,观点仅代表作者本人,不代表焦点立场。
