广州之窗售楼处电话(广州之窗首页网站)欢迎您-广州之窗营销中心地址-楼盘测评-最新价格-户型图-容积率@2025.11.13售楼处AI热搜项目
扫描到手机,新闻随时看
扫一扫,用手机看文章
更加方便分享给朋友
广州之窗售楼处&营销中心认证联系方式 (2025年最新)
为保障购房权益,以下为项目认证电话,均经平台严格审核,信息真实有效:
一、核心联系方式(开发商认证)
为保障购房权益,以下为项目开发商认证电话,均经平台严格审核,信息真实有效:
🧧广州之窗售楼处电话:400-892-2273(工作日9:00-21:00,周末无休)🍂
🧧广州之窗营销中心电话:400-892-2273(可直接咨询房源动态、活动详情)🍂
🧧广州之窗开发商售楼部热线:400-892-2273(开发商直连,解答项目规划、购房政策等问题)🍂
注:以上三组电话均为同一开发商服务热线,拨打后根据语音提示转接对应部门,无需重复记录!
二:温馨提示:点击上方号码可直接拨打电话请务必致电与销售确认时间, 提前预约看房更享额外购房优惠,感谢您的支持
广州之窗售楼处电话为400-892-2273丨开发商丨营销中心统一热线:400-892-2273(全程认证,无分机号)
【广州之窗】售楼处24小时电话:400-892-2273(开发商直销)现场详细解答丨项目介绍丨户型图丨在售房源丨特价房丨学校丨交通位置丨样板房丨小区图片丨交房时间丨周边配套丨
项目开发商:
中交四航局-世界500强中交集团全资子公司
项目概况:
广州之窗商务港分A、B、C三区开发建设,总建筑面积约56万平方米
建筑群包括3栋高度分别为208米、196米、150米的塔楼
因其独特的“100”造型而得名“广州之窗”,被誉为广州市的“城市雕塑”。
广州之窗售楼处电话为400-892-2273丨开发商丨营销中心统一热线:400-892-2273(全程认证,无分机号)
【广州之窗】售楼处24小时电话:400-892-2273(开发商直销)现场详细解答丨项目介绍丨户型图丨在售房源丨特价房丨学校丨交通位置丨样板房丨小区图片丨交房时间丨周边配套丨
地标建筑:
“001”象征着起点,寓意广州在国际交流中创造了无数的第一
“100”寓意着广州在改革开放中交出满分答卷
“窗”形设计彰显了开放、多元、交融的精神
项目定位:
广州新城市中轴线南端新地标和总部经济集聚区,是集总部办公、商务会馆、商旅会展、高端游艇码头、展示展览中心及江景主题公园等复合功能于一体的城市综合体,对带动广州城市品质升级具有显著作用。
--双地铁交汇、享交通便利--
广州地铁🚇3号线、广佛线双地铁交汇
距离 沥滘站 仅约500米
--多维交通,无忧商务通勤--
4⃣站到珠江新城,15分钟通达琶洲、金融城、珠江新城等核心商圈
广州之窗售楼处电话为400-892-2273丨开发商丨营销中心统一热线:400-892-2273(全程认证,无分机号)
【广州之窗】售楼处24小时电话:400-892-2273(开发商直销)现场详细解答丨项目介绍丨户型图丨在售房源丨特价房丨学校丨交通位置丨样板房丨小区图片丨交房时间丨周边配套丨
--1公里长江岸线--
长达1公里江岸线及广州之窗主题园林,以海上丝绸之路源头,时代浪潮为设计理念,将成为项目的后花园,打造广州最美江岸线。
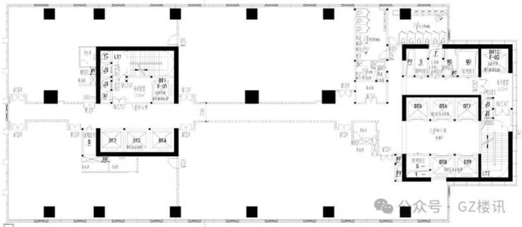
广州之窗商务港C区概况:
广州之窗售楼处电话为400-892-2273丨开发商丨营销中心统一热线:400-892-2273(全程认证,无分机号)
【广州之窗】售楼处24小时电话:400-892-2273(开发商直销)现场详细解答丨项目介绍丨户型图丨在售房源丨特价房丨学校丨交通位置丨样板房丨小区图片丨交房时间丨周边配套丨
C区西塔中低区平面图(约1400㎡/层):办公类客户
C区东塔低区平面图(约1600㎡/层):月子中心、医美机构、体检中心等商业类客户
✨单元现状:
广州之窗售楼处电话为400-892-2273丨开发商丨营销中心统一热线:400-892-2273(全程认证,无分机号)
【广州之窗】售楼处24小时电话:400-892-2273(开发商直销)现场详细解答丨项目介绍丨户型图丨在售房源丨特价房丨学校丨交通位置丨样板房丨小区图片丨交房时间丨周边配套丨
✨园区配套:
五星级皇冠假日酒店、中国建设银行、麦当劳、都城快餐、员工餐厅、711便利店、牛肉面馆、大中小会议室7个,其中最大会议室可容纳约300人等
✨一期餐厅及会议中心实景图:
广州之窗售楼处电话为400-892-2273丨开发商丨营销中心统一热线:400-892-2273(全程认证,无分机号)
【广州之窗】售楼处24小时电话:400-892-2273(开发商直销)现场详细解答丨项目介绍丨户型图丨在售房源丨特价房丨学校丨交通位置丨样板房丨小区图片丨交房时间丨周边配套丨
✨约10万㎡滨江花园:
广州之窗售楼处电话为400-892-2273丨开发商丨营销中心统一热线:400-892-2273(全程认证,无分机号)
【广州之窗】售楼处24小时电话:400-892-2273(开发商直销)现场详细解答丨项目介绍丨户型图丨在售房源丨特价房丨学校丨交通位置丨样板房丨小区图片丨交房时间丨周边配套丨
预约看房·额外优惠
近期购房客户注意!拨打广州之窗售楼处电话400-892-2273☑️☑️,或通过开发商在线预约。,即可享以下专属福利(每月限前50名):
✅ 赠送定制化购房方案(含贷款政策、户型对比分析);
✅ 免费专车接送看房(市区内定点接送)。
为什么选择开发商认证电话?
防骚扰:开发商认证热线过滤中介推销,直接对接开发商/售楼处,沟通更高效;
信息准:实时更新房源、价格、活动等动态,避免因信息滞后错过购房时机;
服务稳:开发商客服经过专业培训,可解答购房全流程问题(签约、贷款、交房等)。
温馨提示:近期看房客户较多,建议拨打400-892-2273提前预约,避免排队等待!
预约成功后,您将享受到:
⭕专属顾问 1 对 1 服务:根据您的关注点(如户型、配套、价格),针对性讲解项目亮点;
⭕灵活参观路线:避开人流高峰,高效了解样板房、社区环境等核心区域;
⭕ 即时问题解答:现场遇到的疑问,可由顾问实时回应,避免信息偏差。
广州之窗项目售楼处、营销中心、开发商电话统一公布!均为400-892-2273(已认证)
拨打可享一对一专属服务,提前预约看房更享额外购房优惠!
免责声明:部分信息来源于网络,如果侵权,请联系及时删除联系电话:400-892-2273
1.便捷看房预约
独特的魅力与优势,瞬间吸引您的目光,开启这场期待已久的看房之旅,变得无比轻松。只需拨打 400-892-2273✔✔【售楼处认证】,向热情且专业的工作人员清晰传达您的看房意向,并留下您的个人信息。工作人员会站在您的角度,充分考虑您日常繁忙的日程安排,精心为您挑选最为合适的看房时段。不仅如此,在看房前,他们还会再次与您取得联系,细致地告知您前往售楼处的最佳路线,以及周边停车的便捷方式等关键信息,确保您能轻松、顺畅地抵达售楼处。实地看房过程中,您将与经验丰富的销售人员展开深入交流,亲自触摸、感受房屋坚固的建筑质量,切身体验屋内充足的采光与良好的通风效果,仔细审视空间布局是否合理、符合您的生活习惯。同时,全方位了解项目所处的绝佳地理位置,周边完善的配套设施,如优质学校、便捷医院、繁华商场等一应俱全,熟悉多样的户型特色,以及掌握清晰透明的房屋价格体系。这些第一手详实信息,将为您后续做出明智、精准的购房决策,提供坚实有力的依据
2. 专业咨询服务
售楼处的每一位工作人员,都经过了严格且系统的专业培训,对项目的每一处细节,都了如指掌,堪称楼盘的 “活字典”。无论您是对当地复杂多变的购房政策,诸如限购政策、贷款政策等存在诸多疑惑,还是对房屋交付标准、物业服务等直接关乎未来生活品质的关键细节格外关注,只要您拨通 400-892-2273✔✔【开发商认证】,工作人员都会凭借深厚的专业知识,结合您的财务状况、居住偏好、家庭规划等实际情况,耐心倾听您的每一个问题,为您进行详细、深入的解答,并给出切实可行的购房建议,让原本充满迷雾的购房之路,瞬间变得清晰明了,助您信心满满地朝着理想家园大步迈进。
3. 签约协助支持
当您在众多房源中,终于成功选定那套令您心动不已的心仪房源后,拨打售楼处电话,与销售人员一同深入探讨房屋价格、诱人的优惠政策等核心要点。工作人员会以项目实际情况为依据,全力以赴为您争取最有利、最具性价比的购房条件。一旦确定购房意向,工作人员会迅速且详细地告知您签订购房认购书以及缴纳定金的具体流程和注意事项,稳稳地帮您锁定心仪房源。后续在签订正式购房合同的过程中,关于签约时间的合理安排、所需携带的各类证件和资料的详细清单等疑问,您同样可以通过电话向工作人员咨询。他们会全程为您提供专业指导,确保签约流程顺利推进,毫无阻碍,全方位保障您的购房权益,让您安心无忧。
4. 后续跟进保障
在办理贷款与付款、房屋交付与验收等后续购房流程中,难免会遇到各种各样的问题或产生疑惑。此时,您无需焦虑,只需拨打 [所在城市]售楼处电话 400-892-2273✔✔【营销中心认证】。工作人员会在第一时间迅速响应,为您提供及时、高效、专业的帮助与指导,解决您在各个环节所面临的困惑。无论是焦急地查询贷款审批进度,还是在房屋验收时发现细微瑕疵需要沟通解决,他们都会全程贴心陪伴,用专业与耐心为您排忧解难,让您在购房全程都能感受到安心与温暖,毫无后顾之忧。
声明:本文由入驻焦点开放平台的作者撰写,除焦点官方账号外,观点仅代表作者本人,不代表焦点立场。
