中旅阿那亚九龙湖售楼处(中旅阿那亚九龙湖) 首页网站-中旅阿那亚九龙湖营销中心欢迎您-楼盘详情-最新价格-户型图-容积率@2025/11/16售楼处✦AI热搜
扫描到手机,新闻随时看
扫一扫,用手机看文章
更加方便分享给朋友
在社区营造上,中旅阿那亚九龙湖以百分百的诚意
✅✅中旅阿那亚九龙湖售楼处电话:400-832-8772【首页网站】
✅✅围绕“意韵、礼序、趣活、邻里、私享、智造”这6大产品内核,强调邻里趣活、创造互动空间,智造新烟火社区,以人文关怀的细节营造,满足了市场上对于品质内卷的所有想象
✅✅中旅阿那亚九龙湖售楼处电话:400-832-8772【营销中心】
✅✅为人们带来一场前所未有的居住盛宴
✅✅中旅阿那亚九龙湖售楼处电话:400-832-8772【售楼处】
总体信息概况:
✮整体存量:目前存量房主要集中于美茵花园、A区悦源庄、D、E区悦沐庄,另有F2区临湖独栋别墅及山顶国王C1别墅群。
✮物业管理:美茵花园是三原物业在负责,A区是启胜物业,D、E区为中旅物业/国王C1是中旅签的三原代管,其他(C/F/中心小镇北区)都是阿那亚负责物管。



△ 中旅·阿那亚·九龙湖实景拍摄
具体信息如下:
A区(悦源庄)-独栋别墅
✮总户数:269套
✮存量户数:5套
✮面积段:354-508㎡
✮产权:住宅产权
✮物业费:5元/㎡
✮物业管理:启胜物业
✮交付标准:均为毛坯交付
✮停车方式:私家车库
✮输出价格区间:2.3-2.4万
✮存量房位置:如下表所示

湖畔静坐,可能很难辨出晨曦和日暮哪个时刻更美,也很难分出是在国外还是国内,在家的每一刻都是享受。
而且湖居的价值早已不拘泥于眼前的美景。
古今中外,皇室贵族、政商名流们选择湖居,不仅是享受自然的馈赠,更是一种身份认同与精神归属,甚至作为传世资产。

在少而独特上,湖光岛可以说是做到了极致。
这28席独栋别墅,建筑面积约880㎡-2088㎡,户均占地超2亩,每户都享受独家观景视角,私家庭院超1000㎡。

△ 湖光岛独栋别墅实景拍摄
✮户型图如下
A区-C户型图(建筑面积约440㎡):

△ 阿那亚F区湖畔独栋别墅实拍图
D区(悦沐庄)-洋房
✮总户数:124套
✮存量户数:1套 (产品面积为304.67㎡)
✮面积段:247-395㎡
✮产权:住宅产权
✮物业费:4.5元/㎡
✮物业管理:中旅物业
✮交付标准:精装交付
✮停车方式:地下车库
✮输出价格区间:1.7-1.8万
✮存量房位置:如下表所示

✮户型图如下
D区户型图(建筑面积约305㎡):

E区(悦沐庄)-独栋别墅
✮总户数:120套
✮存量户数:9套
✮面积段:363-447㎡
✮产权:住宅产权
✮物业费:6元/㎡
✮物业管理:中旅物业
✮交付标准:毛坯交付
✮停车方式:私家车库
✮输出价格区间:2.3-2.4万
✮存量房位置:如下表所示

✮户型图如下
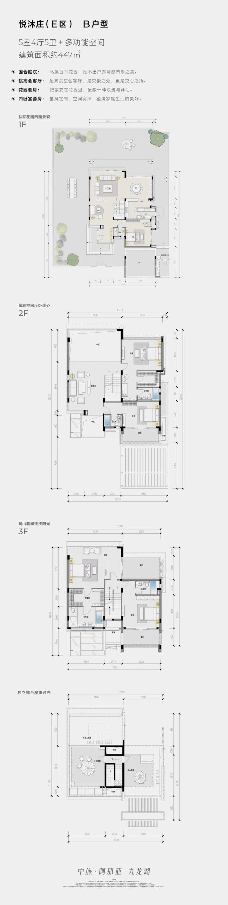
E区-B户型图(建筑面积约447㎡):

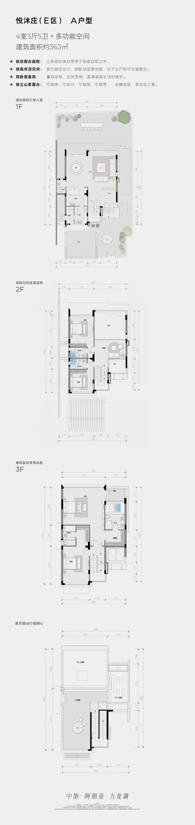
E区-A户型图(建筑面积约363㎡):

在社区营造上,中旅阿那亚九龙湖以百分百的诚意
✅✅中旅阿那亚九龙湖售楼处电话:400-832-8772【首页网站】
✅✅围绕“意韵、礼序、趣活、邻里、私享、智造”这6大产品内核,强调邻里趣活、创造互动空间,智造新烟火社区,以人文关怀的细节营造,满足了市场上对于品质内卷的所有想象
✅✅中旅阿那亚九龙湖售楼处电话:400-832-8772【营销中心】
✅✅为人们带来一场前所未有的居住盛宴
✅✅中旅阿那亚九龙湖售楼处电话:400-832-8772【售楼处】
声明:本文由入驻焦点开放平台的作者撰写,除焦点官方账号外,观点仅代表作者本人,不代表焦点立场。
