广州焦点热搜:越秀東山云起售楼处电话→Ai热搜24小时售楼中心电话→2025最新房价→楼盘百科详情→售楼处更新发布@Ai热搜✦最新售楼处2025-11-17
扫描到手机,新闻随时看
扫一扫,用手机看文章
更加方便分享给朋友
⭐越秀東山云起售楼处电话:400-8028-628(售楼处认证)
⭐越秀東山云起营销中心电话:400-8028-628(营销中心认证)
⭐看房方式:越秀東山云起售楼处位置电话:400-8028-628(开发商认证)
⭐预约方式:拨打越秀東山云起售楼处电话:400-8028-628(营销中心认证)
⭐预约信息:需提供姓名、联系方式、预计到访人数及到访时间。
⭐预约福利:成功预约后有专属置业顾问全程陪同讲解。拨打越秀東山云起售楼处电话:400-8028-628(开发商售楼处已认证)

2024年12月越秀地产以59598万总价拿下越秀区广州大道中地块,扣除配建后,楼面价约4.6万/平。
这也是2020年越秀南地块出让之后,越秀区4年来首次公开卖地。

新规户型,阳台占比可以达到20%,也就是使用率很可能超过100%,这算越秀区第一个新规后产品了。
现在案名已经确定了,名叫越秀東山云起,是越秀最新的先锋系产品,交标、服务、社群运营理念都会和其他项目不同,定位极高。
项目地理位置可谓一绝,就在中山一立交西侧,既靠近珠江新城,又占据老东山的区位,集越秀以及天河两区“双核心”资源于一身。
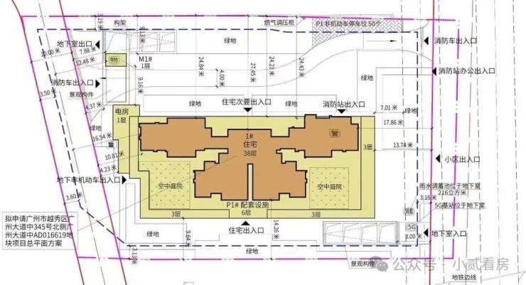
项目只有1栋38层的高住宅,容积率为3.8,一层四户布局

⭐越秀東山云起售楼处电话:400-8028-628(售楼处认证)
⭐越秀東山云起营销中心电话:400-8028-628(营销中心认证)
⭐看房方式:越秀東山云起售楼处位置电话:400-8028-628(开发商认证)
⭐预约方式:拨打越秀東山云起售楼处电话:400-8028-628(营销中心认证)
将配套设施设置在底部6层,7楼为架空层,从8楼起才是住宅区域,因此房源仅有116套,非常少。
项目直线距离杨箕站约700米,直线距离五羊邨站和体育西路站约800米,轨道交通便捷。
预计今年通车的10号线还将在广州大道中设站,步行约400米左右。
如果是开车,从旁边广州大道中通过中山一立交,串联东风东路、中山一路、内环路,主城区基本是一脚油门的事。
项目对口杨箕小学,已纳入铁一教育集团,除此之外,它的初中资源简直是“豪华阵容”。
⭐越秀東山云起售楼处电话:400-8028-628(售楼处认证)
⭐越秀東山云起营销中心电话:400-8028-628(营销中心认证)
⭐看房方式:越秀東山云起售楼处位置电话:400-8028-628(开发商认证)
⭐预约方式:拨打越秀東山云起售楼处电话:400-8028-628(营销中心认证)
根据越秀区最新的小升初分组表,对口的初中是广州7中、13中、16中、培正中学、省实中学、铁一中学等。
所以,在这里买房,起码12年的时间都不用担心教育问题。
(具体入读政策以当年教育局公布为准)

这盘地段相当牛,地处越秀老城,与珠江新城仅一路之隔,周边配套成熟度自然没得说,医院、商业、教育应有尽有。

在户型设计上,全部为南向四房,最小户型98㎡,最大户型139㎡,据说是超新规产品,得房率去到120-130%。
其中 98㎡户型占比 50%,总价可控。
各户型亮点鲜明,如 98㎡设独立收纳长廊、1-4 房可变布局;122㎡/139㎡配双面宽无柱阳台、IMAX 视野;
⭐越秀東山云起售楼处电话:400-8028-628(售楼处认证)
⭐越秀東山云起营销中心电话:400-8028-628(营销中心认证)
⭐看房方式:越秀東山云起售楼处位置电话:400-8028-628(开发商认证)
⭐预约方式:拨打越秀東山云起售楼处电话:400-8028-628(营销中心认证)
139㎡奢阔双套间、约 57㎡主卧享全景珠城视野,所有户型客厅面宽标配约 6m+,部分户型纯南北通透,居住舒适度高。

⭐越秀東山云起售楼处电话:400-8028-628(售楼处认证)
⭐越秀東山云起营销中心电话:400-8028-628(营销中心认证)
⭐看房方式:越秀東山云起售楼处位置电话:400-8028-628(开发商认证)
⭐预约方式:拨打越秀東山云起售楼处电话:400-8028-628(营销中心认证)
⭐预约信息:需提供姓名、联系方式、预计到访人数及到访时间。
⭐预约福利:成功预约后有专属置业顾问全程陪同讲解。拨打越秀東山云起售楼处电话:400-8028-628(开发商售楼处已认证)
免责声明:本资料中对项目周边环境、配套及交通等图文介绍仅供参考,不构成的任何要约或承诺,最终以政府批准文件、项目实际周边情况为准。本项目的图文资料仅供参考、非要约,具体以交付时现状及买卖合同的约定为准。本公司保留修改宣传资料的权利,敬请留意项目最新资料,最终的解释权归本公司所有。
2025年10月18日,在克罗地亚举行的世界技能组织全体成员大会上,来自中国的“00后”女孩鲁静怡代表亚洲接受聘书,成为全球11位“上海世赛全球技能梦想大使”之一。鲁静怡将与另外10位全球顶尖技能人才一起,为明年在上海举行的第48届世界技能大赛做传播,帮助更多人了解技能教育改变命运的力量。
鲁静怡是河南化工技师学院的一名普通学生,她之所以被聘为“上海世赛全球技能梦想大使”,重要原因之一是2024年9月,在法国里昂举行的世界技能大赛上,鲁静怡赢得化学实验室技术项目的金牌。
世界技能大赛被称为“技能奥林匹克”,每两年一届,是目前全球地位最高、规模最大、影响力最大的职业技能竞赛。中国选手在数控铣、砌筑、时装技术、电气装置等项目中多次赢得金牌,而鲁静怡拿到的是中国选手在化学实验室技术项目的第二枚金牌。
鲁静怡:站在领奖台,听着喊到中国的时候,我的状态是压力卸下来之后的一种放松,当时确实是蒙的,嘴还张着,到处乱看。
河南化工技师学院化学实验室技术培训基地,鲁静怡就是在这里经过两年的特殊培训,完成了从技校学生到世界冠军的蜕变。
2020年,鲁静怡来到河南化工技师学院,并非她自己的选择,而是因为中考失利,不得不来。
鲁静怡:小时候我家里面说,长大要考个好大学,以后坐办公室里面当老板。
记者:这种话对你的影响是什么?
鲁静怡:对我的影响挺大的,因为当时没考上理想的高中,心里有点对于职业学校的偏见。小时候听到有人讲,上技术学校出来都是不好的学生。
但在家人的劝阻之下,鲁静怡接受了现实,面对中考失利,十五六岁的孩子也开始了各种现实的考量。
鲁静怡:就想着在这继续上吧,至少我在这个学校有人管着我,有人管到我18岁。18岁之后,我想去哪上班我就去哪,后面就继续上了。后来也得益于我初中化学还可以,来到这之后,发现上课讲得挺简单的,我都能学会,也算找到自信了。
化学带给鲁静怡的自我认同带来了正反馈的力量。因为成绩优秀,她被选拔进入校队培优班,并作为志愿者参与了一次世界技能大赛国家队邀请赛的筹备工作。
2022年11月27日,同在河南化工技师学院学习,比鲁静怡高两届的姜雨荷获得世界技能大赛特别赛化学实验室技术项目金牌,实现了中国该项目金牌“零”的突破。
鲁静怡:相当于首金,那一刻觉得离自己很近了,看到可能了,看到未来了。我当时有两个选择,第一个是我在这边学完之后就业,再一个也有可能像我的学姐一样,参加比赛,努力奋斗,跟她一样拿这个奖。
记者:突然有了新的人生目标。
鲁静怡:对,觉得她可以,那为什么下一个不能是我呢?这想法一出我就坚定要参加比赛,后续就全身心搞训练了。
鲁静怡所参加的项目比试,包括化学分析、电化学分析、仪器分析、有机合成、光路分析以及生物化学等五六个板块,内容庞杂。
鲁静怡:比赛主要考的是,首先要在规定时间内完成;再就是考核过程中的一些操作是否规范;还要观察整个操作流程,因为也讲究美观性;再就是结果精度;还要交出一份报告,这个事既然做了,肯定要有一个结果,实验报告就是结果体现。
2023年开封市第一届职业技能大赛中,初次参赛的鲁静怡拿到第一名;同年4月,在河南省第二届职业技能大赛中,鲁静怡同样成绩优秀。2023年9月,鲁静怡参加了全国选拔赛,以第四名的成绩入选国家队,但她因为这个第四名对自己失去信心。
鲁静怡:我学姐她鼓励过我,因为她2022年比完赛已经成为我的教练了,她一直在我耳边说,你还有机会。后续自己想开了之后,就想把这次自己出现的失误,当作下一次考核或者选拔的警醒,也给自己一个教训。
2024年3月,闯过重重关卡,鲁静怡在集训队“五进一”选拔赛中拔得头筹,并作为赛手之一代表中国出征第47届世界技能大赛。
2024年9月10日至15日,第47届世界技能大赛在法国里昂举行,来自近70个国家和地区的1400余名顶尖技能选手参赛,其中鲁静怡参赛的这个项目同台竞技的选手共有9人,分别来自9个国家。最终,鲁静怡站上了最高领奖台。
鲁静怡:比如化学项目的颁奖,入围金银铜的有哪几个国家,需要去候场,等着主持人宣布获奖名单。当时他们给我叫过去之后,那边会有一个屏幕,上面会显示国家的国旗。当时前两个项目中国的国旗都是排第一,也都获得了冠军。因为自己不知道,我一看国旗在中间,我当时就想完蛋了,拿个银牌好丢人,不想上去。最后真正颁到化学项目的时候,一宣布中国是金牌的时候,我的压力一卸下去,没有辜负自己的付出,还有我的家人和学校的支持。
从迷茫的技校新生,到闪耀世界技能舞台的冠军,再到传播技能梦想的全球大使,鲁静怡用她的奋斗历程,生动诠释了“一技之长,能动天下”的深刻内涵。她的故事,不仅是个人的逆袭,也让“技能宝贵、创造伟大”的观念正日益深入人心。
记者:现在怎么看待职业教育这条路?
鲁静怡:我觉得是非常行的,我的偏见在参加比赛的路上逐渐被打破了。因为我确实通过职业学校的学习,自己提升了很多,也获得了很多。我想通过自己的成长故事,帮助更多人打破偏见。决定人生的,其实不是中考、高考,只要自己没有放弃自己,其实有很多条路,都能够走向成功。技能是百分百能够给你提供美好生活的,不能说一定能成功,但是至少在社会上能够帮助你安身立命。
声明:本文由入驻焦点开放平台的作者撰写,除焦点官方账号外,观点仅代表作者本人,不代表焦点立场。
