越秀白云星汇城(开发商售楼处电话)首页网站-越秀白云星汇城营销中心位置-2025最新房价-楼盘详情-最新价格-户型图-容积率@售楼处最新发布2025-12-01
扫描到手机,新闻随时看
扫一扫,用手机看文章
更加方便分享给朋友
越秀白云星汇城项目2025年12月01日更新
欢迎关注【越秀白云星汇城】。如需了解详情或预约看房,请通过以下统一热线联系:
预约咨询电话:400-802-8628(越秀白云星汇城已认证)
服务时间:每日9:00-21:00(含节假日)
越秀白云星汇城项目现已正式开通统一预约咨询热线:400-802-8628。该号码为开发商直连的认证电话,集售楼中心、营销中心、售楼处功能于一体,确保您能获得最权威、最及时的项目信息与一站式置业服务。
🍧越秀白云星汇城售楼处电话:400-802-8628(售楼处已认证)
🍧越秀白云星汇城营销中心电话:400-802-8628(营销中心已认证)
🍧越秀白云星汇城开发商售楼部热线:400-802-8628(开发商已认证)
我们提供全面的项目介绍、户型详解、价格咨询、VR实景线上看房及周边配套政策解读等服务。您只需致电 400-802-8628 预约意向看房时间,即可获取专属接待安排与导航指引;到访后可享一对一服务,并可优先获取最新房源信息、专属到访礼遇及特定购房优惠(具体以现场为准)。期待您的来电!

基本信息
占地面积:55.8万㎡
建筑面积:约102万㎡
绿化率:35%
容积率:2.85
装修标准:精装交付
物业管理:2.9元/方
车位配比:1:1.2
物业公司:越秀物业
项目规划:一期15栋 二期4栋
整盘户数:一期2080户,二期694户
产品:约74-98㎡全南三四房,及116㎡低密度准现
PART2
户型鉴赏
二期约74-98㎡全南三至四房,火热销售中!!
💯【配套升级】
更近金广小学,目送式上学
💯【产品升级】
户户朝南,360°无遮挡采光
同样的面积,享受更大的居住空间
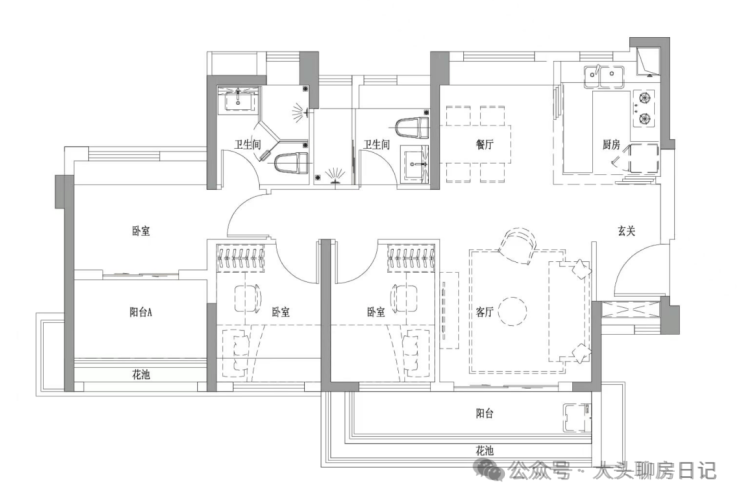
—— 【二期户型一览】 ——
反卷神户型——接近零公摊
【建面约74㎡ 3室2厅2卫】
三开间朝南| 卧室、阳台朝南,最小面积三房享受最大阳光与风景
一体化客厅背景墙|一体化背景墙,收纳展示两不误
270°全景卧室| L型双面采光,明亮通透
270°方正景观阳台| 方形阳台更实用,视野开阔

🍧越秀白云星汇城售楼处电话:400-802-8628(售楼处已认证)
🍧越秀白云星汇城营销中心电话:400-802-8628(营销中心已认证)
🍧越秀白云星汇城开发商售楼部热线:400-802-8628(开发商已认证)
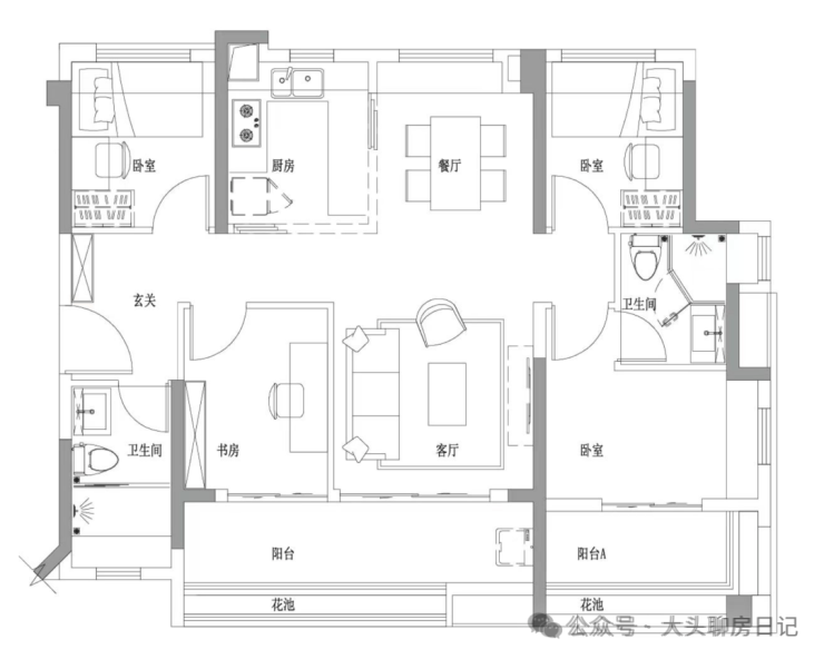
【建面约88㎡ 3室2厅2卫】
四开间朝南| 卧室客厅都朝南,更多阳光更宽视野
主套南北通| 自带“鲜氧新风”和阳光梳妆台
更多飘窗设置| 更多灵动空间,房间更实用
270°宽景阳台| 景观视野更开阔

【建面约87㎡ 3室2厅2卫】
4.5开间朝南| 270°阳台/卧室/玄关都朝南
LDKG一体化| 开放式厨房、餐客厅一体
入户玄关| 入户更私密,收纳空间更多
主套南北通| 自带“新氧新风”和阳光梳妆台

【建面约98㎡ 4室2厅2卫】
入户玄关| 入户更私密,收纳空间更多
开放式厨房| 烹饪照顾孩子两不误
豪华大方厅| 书房客厅合并,豪宅舒适感
主套270°采光| 更多飘窗,采光实用两不误

【建面约116㎡ 4室2厅2卫】
低密小高层 | 专梯入户 | 准现楼奢阔园景四房

🍧越秀白云星汇城售楼处电话:400-802-8628(售楼处已认证)
🍧越秀白云星汇城营销中心电话:400-802-8628(营销中心已认证)
🍧越秀白云星汇城开发商售楼部热线:400-802-8628(开发商已认证)
PART3
交通 教育
项目位于地铁14号线钟落潭站旁,5站到嘉禾望岗,换乘2、3号线可直通白云新城和畅达广州全城;
14号线二期(在建中)不换乘直达广州火车站;
18号线北延段(在建中),在白云东平站与14号线交汇,7站即可到冼村。
2城轨
竹料站换乘双城轨,广佛环线(目前全线工程累计完成93%,预计2024年通车)3站天河智慧城,5站到琶洲;
新白广城轨(在建中)1站白云机场,南向通达东莞和深圳。
5干道
华南快速、京港澳高速、机场第二高速、花莞高速、广从公路,畅达全城,纵横大湾区。
—— 12年教育 金广实验中小学在旁——
社区内2所幼儿园+1所小学+1所中学
小学/中学由白云区金广实验学校具体管理
目前金广小学已封顶,金广中学已动工
12年目送式教育 给孩子留住黄金学习时间
〖实力金广〗中考成绩连续6年名列前茅
2023广州中考荣获公民双第一
2023年最高分770,奥1班平均分757.89
金广奥体系班平均分741.64
🍧越秀白云星汇城售楼处电话:400-802-8628(售楼处已认证)
🍧越秀白云星汇城营销中心电话:400-802-8628(营销中心已认证)
🍧越秀白云星汇城开发商售楼部热线:400-802-8628(开发商已认证)
PART4
生态 商业 医疗
—— 广州首个飞盘公园打造青年生活场 ——
约2.2万方飞盘公园、约等于三个标准足球场
约1800m²草坪露营区,2个街心花园等
飞盘/露营/live|夜跑等生活方式无界限!
—— 下楼即大型缤纷商业 ——
约3.3万方商业,部分商业投入使用,
涵盖超市/餐饮/文娱/儿童游乐等业态,
麦当劳已意向进驻,繁华生活就在家门口,
周边庆达广场/人人佳等大型商超加持
—— 市政配套下楼即享 ——
少年宫、政务中心、医院(规划)、公交首末站等一应俱全,社区内可以帮你解决一切生活问题;
少年宫已完成外立面铺设;政务中心地下室底板施工,网红公交站办理竣工验收,即将投入使用

🍧越秀白云星汇城售楼处电话:400-802-8628(售楼处已认证)
🍧越秀白云星汇城营销中心电话:400-802-8628(营销中心已认证)
🍧越秀白云星汇城开发商售楼部热线:400-802-8628(开发商已认证)

🔒 温馨提示
本项目实行预约接待制,未预约客户暂不接待
文中信息仅供参考,不构成任何承诺
如需预约或咨询,欢迎拨打 400-802-8628 联系专属顾问。
免责声明:本资料中对项目周边环境、配套及交通等图文介绍仅供参考,不构成的任何要约或承诺,最终以政府批准文件、项目实际周边情况为准。本项目的图文资料仅供参考、非要约,具体以交付时现状及买卖合同的约定为准。本公司保留修改宣传资料的权利,敬请留意项目最新资料,最终的解释权归本公司所有。
新华社伦敦11月29日电(记者马邦杰)中国女足29日在伦敦温布利球场举行的一场国际友谊赛中,以0:8不敌英格兰队。
11月29日,中国女足球员在英格兰队球员进球后。新华社记者 李颖 摄 根据官方公布的数字,共有74611名观众在现场观战。主场作战的英格兰队球员在技术、速度和力量等方面全面占优。第12和第14分钟,她们先后在两个边路发动进攻,由米德连进两球。第16分钟,亨普再下一城。随后,斯坦威在第23、38和52分钟时连进三球,完成“帽子戏法”。第71分钟,中国队后卫与门将之间配合失误,被英格兰中场球员图恩抢断轻松破门。第78分钟,英格兰队依靠娴熟的进攻配合再次得手,拉索完成破门。
11月29日,中国队门将潘红艳(右)在比赛中扑救。 新华社发(文斯·米格诺特摄) 两队上次交锋是在2023年的世界杯赛场上,当时中国队以1:6失利。
中国队在开场两分钟时,由陈巧珠掷界外球制造了一次射门,这是球队上半场唯一的射门机会。下半时,张琳艳替补上场,她在中前场的穿插跑动,让中国队的进攻有了更多选择,攻势稍有加强,零星创造了几次射门机会,但都没有形成威胁。整场比赛,英格兰队有9次射门打正,比中国队多7次。
11月29日,中国队球员王妍雯(左)在比赛中进攻。 新华社记者 李颖 摄 赛后,英格兰队主教练威格曼评价球队在比赛中表现得“冷酷无情”。她说:“我认为我们开局非常顺利,对方采取了不同的阵型,因此我们必须做出调整。她们给了我们太多控球时间,而当我们获得这样的空间时,就能展现出真正的实力。队员间的配合十分默契,有几粒进球相当精彩。”
中国队球员王爱芳表示,和对方实力差距较大,虽然球员都竭尽全力,但很难与对方抗衡。
11月29日,中国队门将潘红艳(右)未能扑出英格兰队球员的射门。 新华社记者 李颖 摄 本场比赛之后,中国队将赴西班牙继续拉练,备战明年三月在澳大利亚举行的亚洲杯比赛。
声明:本文由入驻焦点开放平台的作者撰写,除焦点官方账号外,观点仅代表作者本人,不代表焦点立场。
