越秀万博城售楼处(越秀万博城)首页网站-越秀万博城营销中心欢迎您-楼盘详情·最新价格-户型图-容积率@售楼处
扫描到手机,新闻随时看
扫一扫,用手机看文章
更加方便分享给朋友
⭐越秀万博城⭐
🌈越秀万博城开发商电话: 400-902-7191✿✿(开发商认证)
🌈越秀万博城售楼处电话: 400-902-7191✿✿(售楼处认证)
🌈越秀万博城营销中心电话: 400-902-7191✿✿(营销中心认证)
✅本项目暂不接受临时到访,过来参观样板房请记得提前来电预约!
✅为您安排楼盘现场销售全程接待并讲解,给您更贴心的看房体验!
如有问题欢迎来电咨询,预约来电尊享购房优惠,可预约案场内部销售人员,专业一对一热情服务,让您用专业眼光去买房。
预约看房,置业顾问一对一对接
温馨提示:看房请提前来电预约,谢谢您的配合!(中介勿扰)
最新消息:
项目周边有地铁7和18号线交汇的南村万博站,不过目前在售的组团比较靠近锦绣香江,不靠主干道和地铁,步行至南村万博约1.3公里。不过未来社区会设置便民车接驳到地铁站。

整个旧改体量约500万㎡,共规划12所学校,包括6所幼儿园、3所小学、2所初中、1所高中。
其中进度最快的是CBD组团内54班小学(里仁洞小学原址改扩建)及36班初中(越秀地产新建开学)。
已官宣引入番广实验教育集团办学,由广大附中番禺实验学校具体管理,和越秀大学城和樾府配建的学校同配置。

商业配套
社区内规划了116万㎡的商业配套,涵盖办公楼、购物中心、酒店等空间。周边天河城、万达、山姆、K11全部集齐,商圈业态非常丰富。

其他配套
项目共规划约7.2万㎡超级中央园林,目前已开放实景园林。入户大堂以宝格丽酒店设计风格为灵感,搭配约7米高的艺术移门和奢石弧形墙面,高级感满满。

这个项目的公区和会所做的质感非常强,大家可以感受一下~


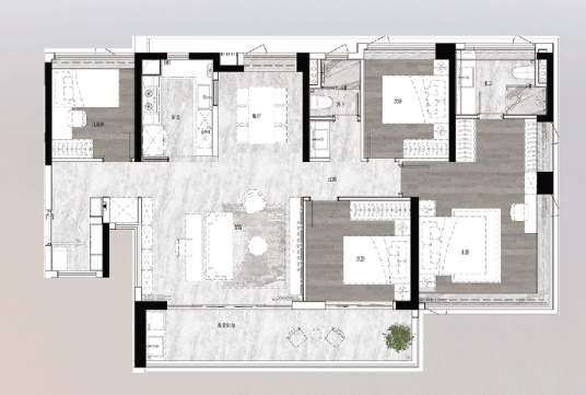
户型鉴赏

项目前阵子加推了二期的9栋,二期是超新规户型,实用率能去到120%左右,比较火爆的是105㎡的户型。
105㎡

建筑面积105㎡的四房两厅两卫,四开间朝南,LDKB一体化设计,5.9m开间巨幕客厅,主卧270°全景飘窗。
128㎡

建筑面积128㎡的四房两厅两卫,南北对流,超14米南向面宽,采光通风俱佳。净宽5.05m宽厅+净宽4m奢阔主卧+8.65米阔景阳台,无遮挡看低密墅景,居住舒适度高。
141㎡

建筑面积141㎡的四房两厅两卫,独立入户玄关,南向五开间朝南,南向面宽长约17米,主卧配置L型超大衣帽间。
⭐越秀万博城⭐
🌈越秀万博城开发商电话: 400-902-7191✿✿(开发商认证)
🌈越秀万博城售楼处电话: 400-902-7191✿✿(售楼处认证)
🌈越秀万博城营销中心电话: 400-902-7191✿✿(营销中心认证)
✅本项目暂不接受临时到访,过来参观样板房请记得提前来电预约!
✅为您安排楼盘现场销售全程接待并讲解,给您更贴心的看房体验!
如有问题欢迎来电咨询,预约来电尊享购房优惠,可预约案场内部销售人员,专业一对一热情服务,让您用专业眼光去买房。
免责声明:
1、内容部分来源网络,因编辑需要文字和图片之间亦无必然联系,仅供读者参考。
2、此公众号所转载的所有文章、图片、音频视频文件等资料版权归版权所有人所有,因非原创文章及图片等内容无法一一和版权者联系,如原作者或编辑认为作品不宜上网供大家浏览,或不应无偿使用,请及时通知我们,以迅速采取适当措施,避免给双方造不必要的经济损失。
3、本网页如无意中侵犯媒体或个人的知识产权,请来电告之,我们将立即予以修改或删除。
声明:本文由入驻焦点开放平台的作者撰写,除焦点官方账号外,观点仅代表作者本人,不代表焦点立场。
