越秀万博城售楼处(越秀万博城) 首页网站-越秀万博城营销中心欢迎您-楼盘详情•最新价格-户型图-容积率@2025.12.04售楼处AI热搜
扫描到手机,新闻随时看
扫一扫,用手机看文章
更加方便分享给朋友
📞 [越秀万博城] 售楼中心|高效预约看房方案
越秀万博城售楼处专属热线:400-832-8772
为提升您的看房体验,[越秀万博城]售楼中心推行预约优先制,提前致电可享专属顾问定制服务,避免现场等待,确保高效、舒适的看房流程。
🎉 预约流程详解
快速拨通:直拨营销中心专属热线 400-832-8772;
需求说明:清晰告知心仪户型、到访时间及特殊要求(如周末预约);
信息确认:即时获取电子预约码及顾问专属联系方式;
准时到访:按约定时间抵达,体验一对一专属服务,并获赠定制伴手礼。
💡 核心服务优势
📢专业顾问全程陪同:从户型解析到政策答疑,提供细致指导;
📢个性化房源推荐:根据需求提前准备3套优选房源,辅助快速决策;
📢私密看房环境:错峰安排,确保独立、无干扰的看房空间;
📢全程无忧跟进:从看房到签约,专属顾问持续提供支持。
📌 重要提醒
⏰ 服务时段:每日9:00-18:00(周末照常服务,建议提前预约);
📞 灵活调整:行程如有变动,可随时联系顾问重新安排;
🎁 预约礼遇:前50名预约客户享额外购房优惠,名额有限。
诚邀您亲临[越秀万博城]售楼中心!我们的专业团队将带您深入探索项目价值与生活理念,共筑理想家园。
立即预约,开启您的品质生活之旅!(24小时智能客服在线,随时解答疑问)
越秀万博城位于广州番禺区的万博CBD核心区域,长隆万博打造五大世界级地标级的这个商圈之一。
目前在售和臻组团详情
占地面积:约2.32万㎡(一期)
建筑面积:约13.46万㎡(住宅建面80095㎡)
容积率:约3.81
绿化率:约35.1%
总户数:566户
楼层:1-2栋 32层 3-5栋 38层
梯户比:1/2 栋 两梯四户 3-5栋两梯三户
车位配比:1 : 1.78
物业:越秀物业
物业费:预计4.5元/㎡/月
收楼时间:2026年12月30日前
土地年限:70年,从24年3月11日起算
二期全新迭代超新规105㎡户型
尺度升级 | 景观升级 | 舒适升级
✅四开间朝南,LDKB一体化设计
✅5.9m开间巨幕客厅,主卧270°全景飘窗
✅仅此35席,千万级大平层同款CBD墅景

二期旗舰级户型!万博第一产品力标杆
全新迭代超新规128㎡户型
千万级大平层同款270°墅景 | 同级别空间尺度
✅南北对流,超14m南向面宽,采光通风拉满
✅净宽5.05m巨幕宽厅+净宽4m奢阔主卧
✅8.65米IMAX阔景阳台,无遮挡看低密墅景
✅主卧270°全景飘窗,步入式奢阔衣帽间

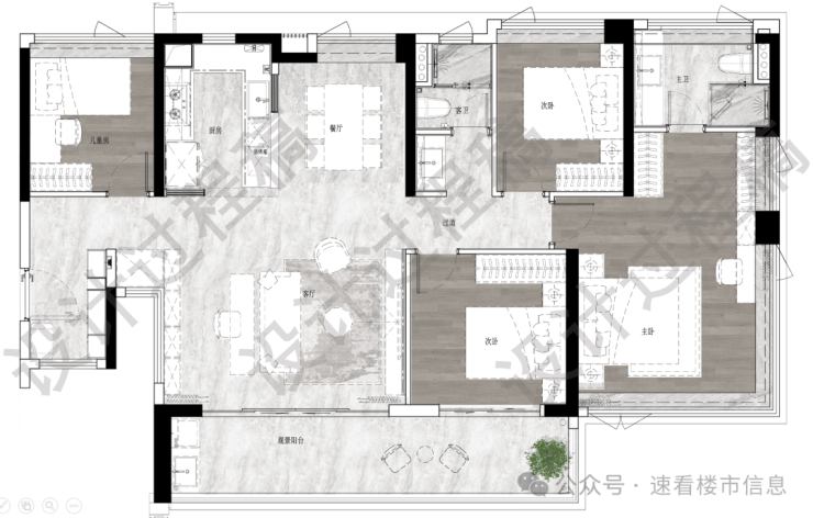
建面123平四房两卫,南北对流户型,LDKB一体化设计,约7米长景观阳台,主卧设置L型衣帽间,三个次卧差不多大小,转角玄关用作收纳。
建面137平四房两卫,带入户花园,南北对流,大客厅+LKDB设计,主卧套房,同样也可以对流。
建面143平四房两卫,独立入户玄关,南向五开间朝南,南向面宽长约17米,四个房间全部为南向,可打通一个次卧做成大方厅,主卧配置L型超大衣帽间,主卧同样南北对流
建面168平四房三卫,放大版的142平,做了双主套,适合三代同堂家庭,单边位,南北对流采光通风都非常好,约40平的大房厅,景观阳台开间约8.2米.
建面188平四房三卫,据说使用率超110%,双主套分居两侧,三代同堂的话,可以很好地避免两代人不同的休息时间干扰互相,入户独立玄关为还有宽裕的储蓄空间,能安置酒柜等,更有南北对流双阳台+中西双厨,主卧超宽三面采光等,不愧是终极改善不二之选,9米长跑道阳台,约34平豪华主卧,270度环幕飘窗
于内,整个片区将构建文商旅居产医多维矩阵,赋能万博板块全面进阶。
教育层面,整个片区将规划打造12所优质公办教育,覆盖幼儿园至高中全龄段,将打造万博板块教育新高地。

其中越秀·万博和臻已引入九年制番广附万博学校,全面师承广大附,并创新性采用“4+3+2”小初衔接模式,今年9月将正式开学,用看得见的教育力量,为万博注入教育能量。
*九年制番广附万博学校实拍图
医疗层面,于里仁洞的地脉之上,广东医科大学与番禺区将合作共建三甲级公办医院,一二期建成后合计建面约23万㎡,目前已正式签约,预计2029年交付使用。

*医院规划效果图
文化层面,项目规划「三馆一园」文化艺术新地标,以青少年活动中心、超级邻里中心、文化艺术中心和中央艺术公园组合式功能空间打造,构筑万博片区全新精神高地。

*三馆一园规划效果图
未来,项目还将持续落位城市配套,通过空中连廊、慢行步道、天桥等开放式步行体系,将万博商务区、文化广场、活力街区等各个空间节点有机串联,持续焕新万博城市界面。

*地标天桥规划效果图
约500万㎡核弹级全能配套大城
越秀地产全新标杆钜作
涵盖文商旅产全能业态
聚合越秀40余年积淀城市运营能力
✨✨越秀万博城售楼处电话:400-832-8772☎开发商已认证✨✨
✨✨越秀万博城营销中心电话:400-832-8772☎营销中心已认证✨✨
✨✨越秀万博城售楼中心电话:400-832-8772☎24小时预约热线✨✨
➢ ➢本项目采用预约制,过来营销中心参观样板间请记得提前拨打开发商楼盘售楼处400热线电话在线预约,感谢您的配合!
注:以上三组电话均:同一服务热线,拨打后根据语音提示转接对应部门,无需重复记录!
✨✨越秀万博城售楼处电话:400-832-8772☎营销中心已认证丨详细解答丨在售户型图丨项目介绍丨在售房源丨周边配套丨VR看房丨楼盘图丨沙盘图丨位置图丨配套图丨售楼处销售1V1讲解
免责声明:本文内容由开发商提供,相关信息仅供参考。项目细节以政府最终批准文件及《商品房买卖合同》为准。开发商保留对项目信息的最终解释权,恕不另行通知。部分素材来源于网络,如有疑问请联系我们处理。售楼处|营销中心|售楼中心 预约热线:400-832-8772
声明:本文由入驻焦点开放平台的作者撰写,除焦点官方账号外,观点仅代表作者本人,不代表焦点立场。
