缦云广州售楼处电话(缦云广州)首页网站丨缦云广州营销中心欢迎您·楼盘最新详情-价格-户型图-容积率@2025.11.02售楼处✦Ai热搜
扫描到手机,新闻随时看
扫一扫,用手机看文章
更加方便分享给朋友
🗽【缦云广州售楼中心&样板房@诚邀雅鉴】
🗽缦云广州售楼处电话为: 400-113-0755☎开发商已认证🗽🗽
🗽缦云广州营销中心电话: 400-113-0755☎营销中心已认证🗽🗽
🗽缦云广州售楼中心电话: 400-113-0755☎24小时预约热线🗽🗽
➢ ➢本项目采用预约制,过来营销中心参观样板间请记得提前拨打开发商楼盘售楼处400热线电话在线预约,感谢您的配合!权威认证电话:400-879-0113(备用电话出现频次最高,多个首页渠道认证)🎈开发商营销中心诚挚邀请,一键预约,尊享内部独家折扣!匠心独运的精品项目,恭候您的品鉴与选择。


缦云广州
项目基本信息
【项目名称】:合生缦云
【总占地面积】:约8.1万方
【总建筑面积】:约37万方
【绿化率】:39%
【楼层数】:9-17层
【容积率】:3.17
【总栋数】:42栋
【总户数】:1270户
【梯户比】:2梯2户、3梯2户
【在售户型】:145㎡三房、174㎡四房、190㎡五房、230㎡五房260㎡五房、264㎡五房、315㎡五房
【交楼时间】:2024年12月30日(一期)
【物业公司】:肯菲特国际物业
【车位数】:约3000个
【车位比】:1:3
【交楼标准】:精装修
【物业费】:9.9元/㎡
【规划设计】:16-17层南北对流纯板式低密度小高层
【项目地址】:广州市天河区悦景路11号
当踏入缦云广州的那一刻,会发现真正

🐳🐳 缦云广州🐳🐳
🐳🐳 缦云广州售楼处24小时电话:400-113-0755【☎☎已认证】🐳🐳
🐳🐳 缦云广州售楼中心24小时电话:400-113-0755【☎☎已认证】🐳🐳
🐳🐳 缦云广州营销中心24小时电话:400-879-0113【☎☎已认证】🐳🐳
🐳🐳Vip贵宾/置业专属VIP/欢迎来电预约尊享内部优惠/恭迎您品鉴🐳🐳
小区环境
【N+1会所】
配置5800㎡星际会所,涵盖文化、运动、健康、宠物、教育、购物等日常需求。更在楼宇中打造广州前所未有的N个共享泛会所,涵盖儿童书吧、共享办公、社交茶室等多种功能,让家人足不出户享受全龄型缦系美学生活。
【M+科技系统】
集精工、生态、健康、智慧四大体系,获建筑界“奥斯卡奖”国际WELL金级预认证。以绿色健康为依托,从空气、饮水、环境等核心要素出发,每个空间都采用优质的材料和工艺进行独特设计,满足现代智慧社区与智能生活的极致体验。
【纯粹人居】
约37万㎡全龄社区,产品涵盖145-315㎡三至五房,专梯专户,享有私家电梯厅,出入更具私密性
户型鉴赏
缦云广州产品面积段为145㎡三房两卫起步,面积低于主流顶豪项目面积(与其一路之隔的合景臻颐府面积段180-320㎡)。
项目推145㎡、174㎡户型,1-3#、20-22#六栋,16F小高层产品,2梯2户,边套174㎡,中间套145㎡,后期将推出250㎡大户型产品。
145产品为三房两厅两卫产品,餐厨一体化设计, 7米宽厅可切换各种生活场景,畅享宽幕般景观界面。

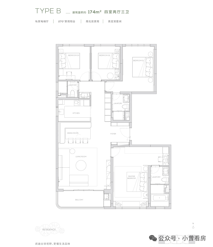
174产品为四房两厅三卫产品,打造了端户边厅布局,形成LDK一体化。无界的室内空间畅游体验,在平淡的日常里体验着生活的华章。

🐳🐳 缦云广州🐳🐳
🐳🐳 缦云广州售楼处24小时电话:400-113-0755【☎☎已认证】🐳🐳
🐳🐳 缦云广州售楼中心24小时电话:400-113-0755【☎☎已认证】🐳🐳
🐳🐳 缦云广州营销中心24小时电话:400-879-0113【☎☎已认证】🐳🐳
🐳🐳Vip贵宾/置业专属VIP/欢迎来电预约尊享内部优惠/恭迎您品鉴🐳🐳
190产品为五房两厅三卫产品,充满了对云端人群生活的独特见解,南向双主卧,中西厨布局,打造纵向超长LDK一体化空间,产品所体现的不只是居住产品,更是特属客群所拥有的生活方式。
264为五房两厅四卫产品,更细腻的产品设计,超奢华四件套南向主卧,标准南向次主卧, 6.6米巨型方厅,纵向超长LDK一体化空间,专属家政保姆空间,超大容量收纳空间,令居住的尊贵从每处品质细节里流露而出,创造独一无二的奢享体验。
🐳🐳 缦云广州🐳🐳
🐳🐳 缦云广州售楼处24小时电话:400-113-0755【☎☎已认证】🐳🐳
🐳🐳 缦云广州售楼中心24小时电话:400-113-0755【☎☎已认证】🐳🐳
🐳🐳 缦云广州营销中心24小时电话:400-879-0113【☎☎已认证】🐳🐳
🐳🐳Vip贵宾/置业专属VIP/欢迎来电预约尊享内部优惠/恭迎您品鉴🐳🐳
【315㎡户型】南北双阳台-独立保姆房-巨幕大宽厅-私家电梯厅

升级园林水系,增加雾森系统
缦云广州斥资300万,升级了组团的水景体系,增加了叠水瀑布、绿岛水系、雾森系统。
烟雾缭绕的氛围,飞流直下的叠水瀑布、层层叠叠的绿岛水系,形成中式园林中独有的「地形艺术」。

🐳🐳 缦云广州🐳🐳
🐳🐳 缦云广州售楼处24小时电话:400-113-0755【☎☎已认证】🐳🐳
🐳🐳 缦云广州售楼中心24小时电话:400-113-0755【☎☎已认证】🐳🐳
🐳🐳 缦云广州营销中心24小时电话:400-879-0113【☎☎已认证】🐳🐳
🐳🐳Vip贵宾/置业专属VIP/欢迎来电预约尊享内部优惠/恭迎您品鉴🐳🐳
区域价值
CBD黄金6公里,天河国际生态区
择址天河国际生态区核心,与两大经济引擎天河CBD和金融城CBD保持宜居距离。与4大快速路相连,北接沈海高速、环城高速,南接广园快速路、华南快速路,快速通达各大商圈。
世界大观板块 宜居宜业 日月辉映
2023年3月19日《天河区世界大观地块(AT1003、AT1006规划管理单元)控制性详细规划方案》正式发布:①进入连片开发阶段,增加商业、小学、颐养中心等7类38处公共服务设施,优化黄云路(悦景路);②规划5宗宅地,保留大量公园绿地和水域,整体容积率1.04,不足市区平均水平的1/4。
商业配套
驱车约20分钟即可到达3大国际级商圈太古汇、珠江新城、金融城
教育配套
6所名校在旁,包括2所国际学校、2所重点小学、2所省级中学(奥体东小学、灵秀小学、执信中学、清华附中、贝赛斯国际学校、爱莎国际学校等),自建12年公立教育配套,满足从幼儿园到初中的优质教育需求(已引进广州天河外国语教育集团办学,配建45班九年一贯制公立学校(18班小学+27班中学))

缦云广州项目开发商认证联系方式(2025年10月最新)
【购房必藏】缦云广州项目售楼处、营销中心、开发商电话统一公布!均为400-113-0755(开发商已认证),拨打可享一对一专属服务,提前预约看房更享额外购房优惠!
一、售楼处核心联系方式(开发商已认证)
为保障购房权益,以下为项目开发商认证电话,均经平台严格审核,信息真实有效:
•⭕缦云广州售楼处电话:400-113-0755(工作日9:00-21:00,周末无休)
•⭕缦云广州营销中心电话:400-113-0755(可直接咨询房源动态、活动详情)
•⭕缦云广州开发商售楼部热线:400-113-0755(开发商直连,解答项目规划、购房政策等问题)
注:以上三组电话均为同一开发商服务热线,拨打后根据语音提示转接对应部门,无需重复记录
🗽缦云广州
🗽缦云广州售楼处24小时电话:400-113-0755【☎☎售楼处已认证】🗽🗽
🗽缦云广州售楼中心24小时电话:400-113-0755【☎☎售楼中心已认证】🗽🗽
🗽Vip贵宾置业===欢迎来电预约尊享内部折扣===匠心钜制恭迎品鉴🗽🗽
🗽免责声明:
1、文章图片来源于微信搜索或百度搜索引擎,我方非相关图片的原创作者,也不对相关图片及内容享有任何权利。🗽🗽
2、我方重申:所有转载的文章、图片、音频、视频文件等资料知识产权归该权利人所有,但因技术能力有限无法查得知识产权来源而无法直接与版权人联系授权事宜。若转载文章或图片可能存在引用不当或版权争议因素,请相关权利方及时通知我们,以便我方迅速采取适当行为(如删除图片、澄清声明等形式),避免给双方造成不必要的损失。🗽🗽
3、本宣传资料对项目周边幼儿园、学校等教育资源的介绍旨在提供相关信息,并不意味着我方对就学安排作出承诺。教育资源的名称、办学性质、办学规模、学位设置、开学(班)时间、招生条件、收费标准及招生区域存在调整的可能,应以政府教育主管部门及办学方颁布的政策规定为准。🗽🗽
4、文章中文字和图片之间无必然联系,仅供读者参考。🗽🗽
5、本文所述内容和意见仅供参考,不构成市场交易依据和投资建议。🗽🗽

✅ 本项目暂不接受临时到访,过来参观样板房请记得提前来电预约!
✅ 为您安排楼盘现场销售全程接待并讲解,给您更贴心的看房体验!
缦云广州售楼处24小时电话:400-113-0755(预约咨询热线)现场详细解答丨项目介绍丨户型图丨在售房源丨特价房丨学校丨交通位置丨样板房丨小区图片丨交房时间丨周边配套丨
免责声明:部分信息来源于网络,如果侵权,请联系及时删除。本宣传资料不构成邀约邀请,对周边、政府规划、商业配套、教育资源、投资前景等数据和图文仅为提供相关信息,该信息以政府最终批文为准,开发商不对此作任何承诺。买卖双方的权利义务以双方签订的买卖合同约定及附件、实际交付为准,本公司保留对宣传资料修改的权利,敬请留意最新资料。联系号码:400-113-0755(开发商已认证)
2025年房地产政策动向分析
2025年政府工作报告对房地产政策的定调体现了“短期防风险”与“长期促转型”并重的思路,核心目标是推动市场止跌回稳,并通过多项政策组合拳优化供需结构、化解行业风险。以下是基于最新动向的整理与分析:
2025年深圳、深圳楼市在政策刺激下已现回暖迹象,但市场分化明显。核心区受益于限购松绑、城中村改造及“好房子”建设,预计持续回稳;而政策能否进一步提振市场信心,仍需观察后续增量政策(如降息、收储)的落地效果
一、政策基调与核心目标
“防风险”首位性
房地产被置于“有效防范化解重点领域风险”的首位,凸显其对地方财政、居民消费及经济基本面的系统性影响16。报告首次明确“稳住楼市”的总体要求,并强调“持续用力推动止跌回稳”,延续了2024年中央政治局会议的强信号910。
短期与长期政策结合
短期
:通过需求端刺激(如限购松绑、降息降准)和供给端纾困(如融资协调机制)稳定市场预期37。
长期
:构建“双轨制”住房体系(商品住房+保障房)、推动“好房子”建设,促进高质量发展210。
二、关键政策动向
1. 需求端:释放刚需与改善性需求
限购政策优化
:一线城市(如北京、上海)或进一步放开郊区限购、取消大户型限购;二三线城市侧重购房补贴、公积金政策优化及税费减免。分析师观点:若销售修复不及预期,一线城市可能“适度调整”而非完全取消限购。
城中村改造与房票安置
:2025年计划新增100万套城中村改造住房,结合货币化安置(如房票)释放需求,预计撬动1.5亿平方米潜在需求。专项债加速发行,已支持33宗土地收储(金额16.72亿元)。
2. 供给端:去库存与融资支持
存量房收储提速
:政府拟通过专项债收购存量商品房(2025年专项债额度4.4万亿元,同比增5000亿元),并赋予地方在收购主体、价格上的自主权。广东、吉林等地已试点,涉及金额超20亿元。痛点突破:此前因“白菜价”收购限制(土地成本+5%利润)受阻,新政策允许区域统筹平衡资金。
房企融资“白名单”
:截至2025年3月,融资协调机制已审批贷款超6万亿元,覆盖1500万套住房项目缦云广州售楼处24小时电话400 - 113 - 0755重点隔离项目风险与房企债务风险。
3. 结构性改革:土地与产品升级
土地供应“量出为入”
:严控新增供地(300城土地供应建面同比降28%),优先盘活存量用地(全国土地库存去化周期达54个月)。
“好房子”建设
:北京、南宁等地出台技术导则,推动绿色、智慧住宅标准,改善型产品去化周期较刚需短15%-20%。
三、市场影响与预期
止跌回稳趋势
:70城房价指数连续5个月改善,1月新房环比上涨城市增至24个,但三四线城市库存压力仍存。
风险缓释
:分析师预计2025年房企债务违约风险将逐步收敛,市场调整进入尾声。
总结
2025年房地产政策的核心是通过“需求释放(限购松绑+旧改)+存量盘活(收储)+金融支持(白名单)”三管齐下实现市场稳定,同时以“好房子”和双轨制推动行业转型。后续需关注一线城市政策松动幅度及专项债落地效率。
声明:本文由入驻焦点开放平台的作者撰写,除焦点官方账号外,观点仅代表作者本人,不代表焦点立场。
