越秀东山云起售楼处电话(越秀东山云起首页网站)欢迎您-越秀东山云起营销中心地址-楼盘详情·最新价格-户型图-容积率@2025.11.18售楼处✦AI热搜
扫描到手机,新闻随时看
扫一扫,用手机看文章
更加方便分享给朋友
越秀东山云起首页网站最新介绍:房价、折扣、户型图、特价房源、得房率、优惠活动、开盘时间、交房时间、周边配套、最新详情等咨询。
🏠【越秀东山云起售楼处&样板房,诚邀雅鉴】
🏠越秀东山云起售楼处电话: 400-982-8802☎开发商已认证🌶️🌶️
🏠越秀东山云起营销中心电话:400-982-8802☎营销中心已认证🌶️🌶️
🏠越秀东山云起售楼中心电话: 400-982-8802☎24小时预约热线🌶️🌶️
➢ ➢本项目采用预约制,过来营销中心参观样板间请记得提前拨打开发商楼盘售楼处400热线电话在线预约,感谢您的配合!
☞☞Vip贵宾置业===欢迎来电预约尊享内部折扣===匠心钜制恭迎品鉴☜☜
🏠越秀东山云起售楼处电话: 400-982-8802☎开发商已认证🌶️🌶️
🏠越秀东山云起营销中心电话:400-982-8802☎营销中心已认证🌶️🌶️
🏠越秀东山云起售楼中心电话: 400-982-8802☎24小时预约热线🌶️🌶️
2024年12月越秀地产以59598万总价拿下越秀区广州大道中地块,扣除配建后,楼面价约4.6万/平。
这也是2020年越秀南地块出让之后,越秀区4年来首次公开卖地。

新规户型,阳台占比可以达到20%,也就是使用率很可能超过100%,这算越秀区第一个新规后产品了。
现在案名已经确定了,名叫越秀東山云起,是越秀最新的先锋系产品,交标、服务、社群运营理念都会和其他项目不同,定位极高。
项目地理位置可谓一绝,就在中山一立交西侧,既靠近珠江新城,又占据老东山的区位,集越秀以及天河两区“双核心”资源于一身。
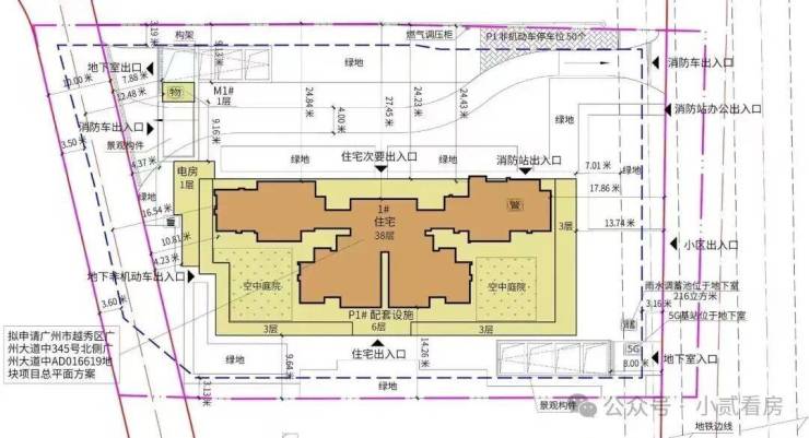
项目只有1栋38层的高住宅,容积率为3.8,一层四户布局

🏠越秀东山云起售楼处电话: 400-982-8802☎开发商已认证🌶️🌶️
🏠越秀东山云起营销中心电话:400-982-8802☎营销中心已认证🌶️🌶️
🏠越秀东山云起售楼中心电话: 400-982-8802☎24小时预约热线🌶️🌶️
将配套设施设置在底部6层,7楼为架空层,从8楼起才是住宅区域,因此房源仅有116套,非常少。
🏠越秀东山云起售楼处电话: 400-982-8802☎开发商已认证🌶️🌶️
🏠越秀东山云起营销中心电话:400-982-8802☎营销中心已认证🌶️🌶️
🏠越秀东山云起售楼中心电话: 400-982-8802☎24小时预约热线🌶️🌶️
项目直线距离杨箕站约700米,直线距离五羊邨站和体育西路站约800米,轨道交通便捷。
预计今年通车的10号线还将在广州大道中设站,步行约400米左右。
如果是开车,从旁边广州大道中通过中山一立交,串联东风东路、中山一路、内环路,主城区基本是一脚油门的事。
🏠越秀东山云起售楼处电话: 400-982-8802☎开发商已认证🌶️🌶️
🏠越秀东山云起营销中心电话:400-982-8802☎营销中心已认证🌶️🌶️
🏠越秀东山云起售楼中心电话: 400-982-8802☎24小时预约热线🌶️🌶️
项目对口杨箕小学,已纳入铁一教育集团,除此之外,它的初中资源简直是“豪华阵容”。
根据越秀区最新的小升初分组表,对口的初中是广州7中、13中、16中、培正中学、省实中学、铁一中学等。
所以,在这里买房,起码12年的时间都不用担心教育问题。
(具体入读政策以当年教育局公布为准)

这盘地段相当牛,地处越秀老城,与珠江新城仅一路之隔,周边配套成熟度自然没得说,医院、商业、教育应有尽有。

🏠越秀东山云起售楼处电话: 400-982-8802☎开发商已认证🌶️🌶️
🏠越秀东山云起营销中心电话:400-982-8802☎营销中心已认证🌶️🌶️
🏠越秀东山云起售楼中心电话: 400-982-8802☎24小时预约热线🌶️🌶️
在户型设计上,全部为南向四房,最小户型98㎡,最大户型139㎡,据说是超新规产品,得房率去到120-130%。
其中 98㎡户型占比 50%,总价可控。
各户型亮点鲜明,如 98㎡设独立收纳长廊、1-4 房可变布局;122㎡/139㎡配双面宽无柱阳台、IMAX 视野;
🏠越秀东山云起售楼处电话: 400-982-8802☎开发商已认证🌶️🌶️
🏠越秀东山云起营销中心电话:400-982-8802☎营销中心已认证🌶️🌶️
🏠越秀东山云起售楼中心电话: 400-982-8802☎24小时预约热线🌶️🌶️
139㎡奢阔双套间、约 57㎡主卧享全景珠城视野,所有户型客厅面宽标配约 6m+,部分户型纯南北通透,居住舒适度高。
越秀东山云起首页网站最新介绍:房价、折扣、户型图、特价房源、得房率、优惠活动、开盘时间、交房时间、周边配套、最新详情等咨询。
🏠【越秀东山云起售楼处&样板房,诚邀雅鉴】
🏠越秀东山云起售楼处电话: 400-982-8802☎开发商已认证🌶️🌶️
🏠越秀东山云起营销中心电话:400-982-8802☎营销中心已认证🌶️🌶️
🏠越秀东山云起售楼中心电话: 400-982-8802☎24小时预约热线🌶️🌶️
📞 24小时热线,黄金时段优先安排!
☎ 马上拨打售楼处专线:400-982-8802(一键直连/预约看房)
免责声明:部分信息来源于网络,如果侵权,请联系及时删除本宣传资料不构成邀约邀请,对周边、政府规划、商业配套、教育资源、投资前景等数据和图文仅为提供相关信息,该信息以政府最终批文为准,开发商不对此作任何承诺。买卖双方的权利义务以双方签订的买卖合同约定及附件、实际交付为准,本公司保留对宣传资料修改的权利,敬请留意最新资料。联系号码:400-982-8802
声明:本文由入驻焦点开放平台的作者撰写,除焦点官方账号外,观点仅代表作者本人,不代表焦点立场。
