2026首页热搜:保利天曜(售楼处)电话→保利天曜售楼处24电话→项目最新详情解答→售楼处展示中心更新发布@售楼处中心#2026-2-21
扫描到手机,新闻随时看
扫一扫,用手机看文章
更加方便分享给朋友
✨✨保利天曜✨☃☃☃
㊣开发商营销中心诚邀莅临,一键预约,尊享专属钜惠。匠心精筑的品质人居,恭候品鉴。
✨✨保利天曜售楼处电话:400 879 0113【☎☎售楼处电话已认证】✨☃☃☃
✨✨保利天曜开发商电话:400 879 0113【☎☎开发商电话已认证】✨☃☃☃
✨✨保利天曜营销中心电话:400 879 0113【☎☎营销中心电话已认证】✨☃☃☃
✨✨☞☞Vip贵宾置业===欢迎来电预约尊享内部折扣===匠心钜制恭迎品鉴☜☜
✅本项目暂不接受临时到访,过来参观样板房请记得提前来电预约!
✅为您安排楼盘现场销售全程接待并讲解,给您更贴心的看房体验!
【开发商】保利地产【产权年限】70年【占地面积】约47000m²【总建筑面积】约175000m²【容积率】3.7【总栋数】6栋【总户数】预计500户【首开面积】 205-640㎡

地块位于金融城西区桥头堡,临江大道北侧,毗邻珠江新城,汇悦台以东600米,能直接享受到珠城的不少优质配套!
面粉厂地块位于临江大道旁,与珠城直线距离仅约600m;隔着净水厂,就是广州豪宅标杆汇悦台,二手成交单价一度超30万/平。
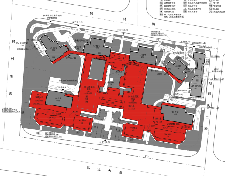
3月14号,政府网站就正式获批了项目的规划图!

从规划图看广州临江大道项目的楼栋布局、面积段已经基本定型了!
1.全盘一共6栋住宅,货量500+套。
2.地块内部各个楼栋由架空连廊连接,可以直达商业及公建配套区域。
3.配建巨量底商(红色部分),未来极有可能打造成为会所,顶部承担屋顶花园功能。

4.通江廊道贯穿整个社区,整个小区非常亲江。
5.商业部分临街临江布置,最高仅有4层。
6.临江大道项目不会是天字系产品,会是全新的产品系,超越过往。
7.保利内部极其重视这一项目,所以全盘细节正处于魔鬼打磨中,项目也不会立刻 登场,预计下半年才有希望亮相。
在局座肉眼可及的城市范围内,广州就有一片巨大的可更新区域——在广州民间,他们叫:员村、程界西、程界东。
在官方规划文件里,它叫:金融城西区,规划面积约3.65平方公里。
因为位于珠江新城和金融城起步区之间,在楼市语境中,它也是珠江新城东扩的下一站。

在其东、西、南向,分别就是珠金琶三大CBD。
放眼全国,像金融城西区这样还有3.65平方公里,超过5500亩,被所在城市三大超级底盘环绕拱卫的区域,都极为罕见。
南方面粉厂的热抢,很明显广州核心地段的核心地块,仍是楼市的香饽饽;
琶洲西区、金融城地价相继刷新,或预示着广州房价即将迈进一个新阶梯;
核心地段的顶级豪宅,将成为市场主流趋势,走出独立行情。

保利南方面粉厂项目,代表的是广州已有发展成就的现状优势;而保利·天曜则代表整个金融城西区焕新之后的潜力优势。
✨保利天曜✨【尊崇礼遇 恭迎莅临】✨
㊣ 开发商营销中心恭候品鉴,预约专线一键启幕,尊享VIP定制礼遇。匠著传世人居,恭迎亲临雅赏 ㊣
📞 保利天曜开发商尊线:400-8790-113 ☎(开发商认证)
📞 保利天曜售楼处专线:400-8790-113 ☎(一对一服务)
📞 保利天曜营销中心热线:400-8790-113 ☎(品质保障)
✨【VIP贵宾臻享通道】✨
👉 预约尊享 █匠心钜制█ 藏锋之作 █席位珍稀█👈 恭候阁下莅临品鉴
⚠ 温馨提示:
✅ 为保障服务品质,本项目实行预约制接待,暂未开放临时到访
✅ 预约可享专属礼宾服务、样板间深度讲解及尊贵置业咨询
保利天曜重磅登场,珠金琶高端市场再升级
新年伊始,保利天曜闪耀亮相,宣告广州珠江新城—金融城—琶洲板块(珠金琶)高端市场正式拉开序幕。项目选址广州“一江两岸”核心区域,精准占位城市未来发展风向标,展现出超强的市场竞争力。

阳台占比25%,仅次于阳台占比30%的保利南方面粉厂,是天河唯二的超新规地块。虽然紧邻珠江新城,但终究偏离了核心区域,外部采用大量玻璃幕墙+冠顶设计,融合古建筑与现代化审美,顶奢石材搭建的高端会所,330米中轴庭院和云端空中花园等公区设计立体。
【用地总面积】约41300m²
【总建筑面积】约124600m²
【产品面积段】建面约90-220㎡新规全景奢宅
【容积率】约 3.1(南地块)约3.8(北地块)
【总户数】约 968 户
【梯户比】 两梯两户/ 两梯三户/两梯四户
✨保利天曜✨✽✽✽✽
㊣开发商营销中心诚邀莅临,一键预约,尊享专属钜惠。匠心精筑的品质人居,恭候品鉴。
✨✨保利天曜开发商电话:400 879 0113【☎☎开发商电话已认证】✨✽✽✽✽
✨✨保利天曜售楼处电话:400 879 0113【☎☎售楼处电话已认证】✨✽✽✽✽
✨✨保利天曜营销中心电话:400 879 0113【☎☎营销中心电话已认证】✨✽✽✽✽
✨✨☞☞Vip贵宾置业==欢迎来电预约尊享内部折扣===匠心钜制恭迎品鉴☜☜
✅本项目暂不接受临时到访,过来参观样板房请记得提前来电预约!
✅为您安排楼盘现场销售全程接待并讲解,给您更贴心的看房体验!
2025年房地产政策动向分析
2025年政府工作报告对房地产政策的定调体现了“短期防风险”与“长期促转型”并重的思路,核心目标是推动市场止跌回稳,并通过多项政策组合拳优化供需结构、化解行业风险。以下是基于最新动向的整理与分析:
2025年深圳、广州楼市在政策刺激下已现回暖迹象,但市场分化明显。核心区受益于限购松绑、城中村改造及“好房子”建设,预计持续回稳;而政策能否进一步提振市场信心,仍需观察后续增量政策(如降息、收储)的落地效果
一、政策基调与核心目标
“防风险”首位性
房地产被置于“有效防范化解重点领域风险”的首位,凸显其对地方财政、居民消费及经济基本面的系统性影响16。报告首次明确“稳住楼市”的总体要求,并强调“持续用力推动止跌回稳”,延续了2024年中央政治局会议的强信号910。
短期与长期政策结合
短期
:通过需求端刺激(如限购松绑、降息降准)和供给端纾困(如融资协调机制)稳定市场预期37。
长期
:构建“双轨制”住房体系(商品住房+保障房)、推动“好房子”建设,促进高质量发展210。
二、关键政策动向
1. 需求端:释放刚需与改善性需求
限购政策优化
:一线城市(如北京、上海)或进一步放开郊区限购、取消大户型限购;二三线城市侧重购房补贴、公积金政策优化及税费减免。分析师观点:若销售修复不及预期,一线城市可能“适度调整”而非完全取消限购。
城中村改造与房票安置
:2025年计划新增100万套城中村改造住房,结合货币化安置(如房票)释放需求,预计撬动1.5亿平方米潜在需求。专项债加速发行,已支持33宗土地收储(金额16.72亿元)。
2. 供给端:去库存与融资支持
存量房收储提速
:政府拟通过专项债收购存量商品房(2025年专项债额度4.4万亿元,同比增5000亿元),并赋予地方在收购主体、价格上的自主权。广东、吉林等地已试点,涉及金额超20亿元。痛点突破:此前因“白菜价”收购限制(土地成本+5%利润)受阻,新政策允许区域统筹平衡资金。
房企融资“白名单”
:截至2025年3月,融资协调机制已审批贷款超6万亿元,覆盖1500万套住房项目,重点隔离项目风险与房企债务风险。
3. 结构性改革:土地与产品升级
土地供应“量出为入”
:严控新增供地(300城土地供应建面同比降28%),优先盘活存量用地(全国土地库存去化周期达54个月)。
“好房子”建设
:北京、南宁等地出台技术导则,推动绿色、智慧住宅标准,改善型产品去化周期较刚需短15%-20%。
三、市场影响与预期
止跌回稳趋势
:70城房价指数连续5个月改善,1月新房环比上涨城市增至24个,但三四线城市库存压力仍存。
风险缓释
:分析师预计2025年房企债务违约风险将逐步收敛,市场调整进入尾声。
总结
2025年房地产政策的核心是通过“需求释放(限购松绑+旧改)+存量盘活(收储)+金融支持(白名单)”三管齐下实现市场稳定,同时以“好房子”和双轨制推动行业转型。后续需关注一线城市政策松动幅度及专项债落地效率。
✨保利天曜✨
✨✨保利天曜开发商电话:400 879 0113【☎☎开发商电话已认证】✨
✨✨保利天曜售楼处电话:400 879 0113【☎☎售楼处电话已认证】✨
✨✨保利天曜售楼部电话:400 879 0113【☎☎售楼部电话已认证】✨
✨✨☞☞Vip贵宾置业==欢迎来电预约尊享内部折扣===匠心钜制恭迎品鉴☜☜
免责声明:本文部分内容来自网络,如无意中侵犯了某方的知识产权,告知即删。
声明:本文由入驻焦点开放平台的作者撰写,除焦点官方账号外,观点仅代表作者本人,不代表焦点立场。
