越秀万博城(售楼处) 首页 - 越秀万博城销售中心 - 越秀万博城价格 - 地址 - 楼盘详情 - 配套 - 电话 - 交房时间 - 配套 - 电话 - 交房时间
扫描到手机,新闻随时看
扫一扫,用手机看文章
更加方便分享给朋友
🌈越秀万博城售楼处电话☎️400-832-8772(售楼处)
🌈越秀万博城营销中心电话:☎️400-832-8772【营销中心】
🌈温馨提示:拨打400电话,听到嘀声后,等待接听即可!
越秀万博城位于广州番禺区的万博CBD核心区域,长隆万博打造五大世界级地标级的这个商圈之一。
目前在售和臻组团详情
占地面积:约2.32万㎡(一期)
建筑面积:约13.46万㎡(住宅建面80095㎡)
容积率:约3.81
绿化率:约35.1%
总户数:566户
楼层:1-2栋 32层 3-5栋 38层
梯户比:1/2 栋 两梯四户 3-5栋两梯三户
车位配比:1 : 1.78
物业:越秀物业
物业费:预计4.5元/㎡/月
收楼时间:2026年12月30日前
土地年限:70年,从24年3月11日起算
二期全新迭代超新规105㎡户型
尺度升级 | 景观升级 | 舒适升级
✅四开间朝南,LDKB一体化设计
✅5.9m开间巨幕客厅,主卧270°全景飘窗
✅仅此35席,千万级大平层同款CBD墅景

二期旗舰级户型!万博第一产品力标杆
全新迭代超新规128㎡户型
千万级大平层同款270°墅景 | 同级别空间尺度
✅南北对流,超14m南向面宽,采光通风拉满
✅净宽5.05m巨幕宽厅+净宽4m奢阔主卧
✅8.65米IMAX阔景阳台,无遮挡看低密墅景
✅主卧270°全景飘窗,步入式奢阔衣帽间

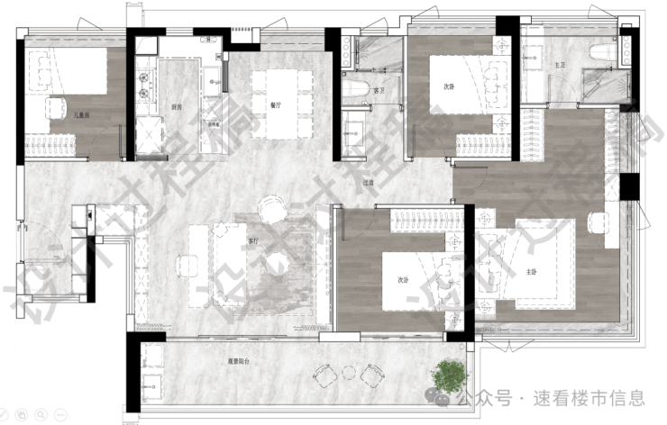
建面123平四房两卫,南北对流户型,LDKB一体化设计,约7米长景观阳台,主卧设置L型衣帽间,三个次卧差不多大小,转角玄关用作收纳。
建面137平四房两卫,带入户花园,南北对流,大客厅+LKDB设计,主卧套房,同样也可以对流。
建面143平四房两卫,独立入户玄关,南向五开间朝南,南向面宽长约17米,四个房间全部为南向,可打通一个次卧做成大方厅,主卧配置L型超大衣帽间,主卧同样南北对流
建面168平四房三卫,放大版的142平,做了双主套,适合三代同堂家庭,单边位,南北对流采光通风都非常好,约40平的大房厅,景观阳台开间约8.2米.
建面188平四房三卫,据说使用率超110%,双主套分居两侧,三代同堂的话,可以很好地避免两代人不同的休息时间干扰互相,入户独立玄关为还有宽裕的储蓄空间,能安置酒柜等,更有南北对流双阳台+中西双厨,主卧超宽三面采光等,不愧是终极改善不二之选,9米长跑道阳台,约34平豪华主卧,270度环幕飘窗
首发组团—越秀·万博和臻与万博核心商务区的直线距离仅约500米(数据来源百度地图),全面链接万博成熟丰满的文商旅产路核心资源,同时拥揽约80万㎡CBD稀缺墅景(数据来源百度百科),以繁静兼具的先天条件,为未来生活的注入独特底色。
*项目区位实拍
于内,整个片区将构建文商旅居产医多维矩阵,赋能万博板块全面进阶。
教育层面,整个片区将规划打造12所优质公办教育,覆盖幼儿园至高中全龄段,将打造万博板块教育新高地。

其中越秀·万博和臻已引入九年制番广附万博学校,全面师承广大附,并创新性采用“4+3+2”小初衔接模式,今年9月将正式开学,用看得见的教育力量,为万博注入教育能量。
*九年制番广附万博学校实拍图
医疗层面,于里仁洞的地脉之上,广东医科大学与番禺区将合作共建三甲级公办医院,一二期建成后合计建面约23万㎡,目前已正式签约,预计2029年交付使用。

*医院规划效果图
文化层面,项目规划「三馆一园」文化艺术新地标,以青少年活动中心、超级邻里中心、文化艺术中心和中央艺术公园组合式功能空间打造,构筑万博片区全新精神高地。

*三馆一园规划效果图
未来,项目还将持续落位城市配套,通过空中连廊、慢行步道、天桥等开放式步行体系,将万博商务区、文化广场、活力街区等各个空间节点有机串联,持续焕新万博城市界面。

🌈越秀万博城售楼处电话☎️400-832-8772(售楼处)
🌈越秀万博城营销中心电话:☎️400-832-8772【营销中心】
🌈温馨提示:拨打400电话,听到嘀声后,等待接听即可!
声明:本文由入驻焦点开放平台的作者撰写,除焦点官方账号外,观点仅代表作者本人,不代表焦点立场。
