中冶逸璟台(售楼中心)2026首页网站-中冶逸璟台欢迎您@中冶逸璟台最新楼盘详情-营销中心-备案价@24小时(服务热线)
扫描到手机,新闻随时看
扫一扫,用手机看文章
更加方便分享给朋友
⭕【中冶逸璟台售楼处&营销中心@诚邀雅鉴】
⭕中冶逸璟台售楼处电话: 400-985-0087☎☎开发商已认证
⭕中冶逸璟台营销中心电话: 400-985-0087☎☎营销中心已认证
⭕中冶逸璟台售楼中心电话: 400-985-0087☎☎24小时预约热线
➢ ➢本项目采用预约制,过来营销中心参观样板间请记得提前拨打开发商楼盘售楼处400热线电话在线预约,感谢您的配合!
说到科学城、知识城,大部份人的印象:“刚需天堂”。
事实上,这里比预想的要“高贵”很多,只是豪宅多隐于市,难被发现罢了。
近期,陪老友J看房,没想到,在黄埔邂逅一“地王”项目——中冶.逸璟台,竟还有60套半山独院别墅产品,最高售价
这售价,捅破黄埔“天花板”,还能媲美天河、白云等顶级别墅。
凭什么卖那么贵?
很多业内人士都为其捏把汗,认为楼面价太高,难定价、不易出手。但这6年来,中冶不慌不忙,高层复式以及叠墅产品,以高于同板块2个level的售价接近售罄,虽然卖的有点艰难。
目前在售的独院半山别墅组团“山语陆拾“,也仅有60套。据说,老板视若至宝,相当惜售,基本没怎么宣传。
一般人想看板房,还要验资1000万元。
这验资水平,在广州无盘能敌,白云山下、上亿元的顶级别墅“大一山庄”,也仅需验资500万元。
从位置上来看,逸璟台的别墅组团“山语陆拾”,位处项目的西部,整体呈层层错落的梯田式排布,联排设计,以2联-5联为主。
或许受地块面积所限,整个组团看上去特别密集。
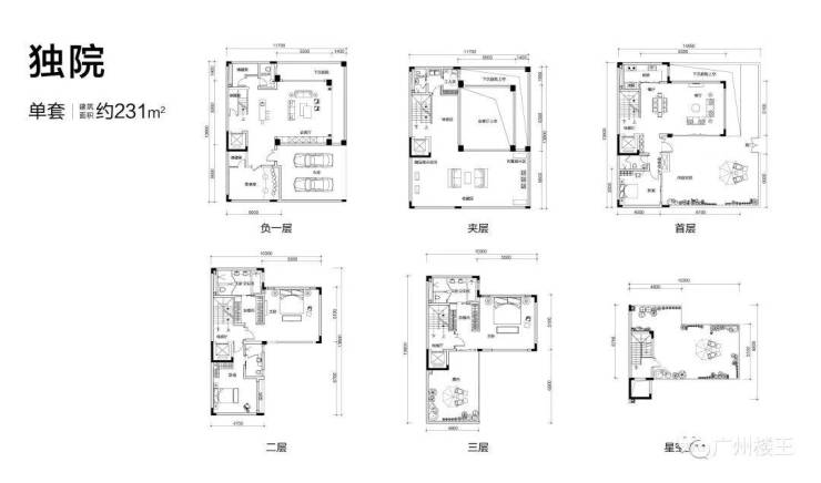
户型多以建面231㎡为主,地上三层,地下两层,功能空间相当多。
最大的亮点是:使用率高。
约231㎡的建面,单室内使用面积达541㎡,总使用面积高达722㎡,是建面的3倍有余。
其中,负一层客厅的125㎡和停车区的34.83㎡共160㎡的面积,全部赠送;夹层赠送面积也高达30多㎡。
这两层的空间,可作为私密的商务接待、家庭影院、健身房、陈列室等。
一层,除了入户的花园赠送70多㎡外,还有首层下沉花园,赠送面积近20㎡。但首层和二层并没有常见的中空设计。
三层露台约33㎡、四层露台约53㎡的面积,也全部赠送。
当然,由于每栋楼的具体建面不同,赠送面积可能有点出入,但不会相差太大。
户型还有一大特点:7米挑高的中空设计,设在地下的夹层和负一层,这与市场上见到的大部份别墅大有不同,优势是私密性强,劣势是采光欠佳。
好在负一层和夹层还有下沉式庭院设计,偶尔阳光从上方直射时,可以见到点光。
不过讲真,中冶的社区园林,实打实的抗打。
单珍贵花木就高达256种,价值数百万的台湾金钻罗汉松,就有6株。
为将山上的泉水引到小区,更耗资百万空运2吨太湖石,打造了一条贯穿整个小区的狭长小溪。
所以,走在小区内,树木繁茂、葱郁,泉水潺潺,有一种“艳阳林间照、清泉石上流”的悠然意境。
若不是销售人员在一旁“喋喋不休”,真以为到了某个森林旅游度假区。
但我还是有一说一,“山语陆拾”别墅,真不太适合居家,作商务会所还可以。
为什么这么说?
1、花园面积太小
有调查数据显示,以自住为主、有别墅情节的90%以上的人,都希望有超大花园,有足够的空间种花、种菜、养宠物,或者建个网球场、篮球场.....
但山语陆拾,大部份别墅的花园面积仅有60多㎡,只有几套单边位有98-142㎡的花园,关键这也不够大啊。
2、门前小路太窄,楼梯多
买别墅以居住为目的业主,家里自然少不了老人、孩子。
但山语陆拾每排别墅之间的距离,简直太近了,除去绿化带,步行小径的宽度,目测不到2米。
两位迎面而来的推婴儿车的宝妈,可能要借用两边绿化带才能“错过”。
更难受的是,一条狭长的路,竟设置了好几重楼梯,虽然没有多少台阶,但对对爱奔跑的孩子和腿脚不方便的老人来说,太不方便了。
孩子出门想骑个自行车、开个玩具车等,还需大人帮忙扛着。天天这么扛,有多少大人能接受?
3、单边位会被遮挡
追求大花园、买了单边位的业主,不一定会称心如意。
紧邻山语陆拾的红线外地块,据说将来要建回迁房,极大可能在20层以上,在视野、采光、通风等方面,多少都会有一定的影响,毕竟仅一路之隔。
另外一边的单边位,也好不到哪里去,由于紧靠项目内的几栋高层复式,日照等也会有影响。
一旦回迁房落成,此别墅组团将会面临两边高层夹击的境遇。
⭕【中冶逸璟台售楼处&营销中心@诚邀雅鉴】
⭕中冶逸璟台售楼处电话: 400-985-0087☎☎开发商已认证
⭕中冶逸璟台营销中心电话: 400-985-0087☎☎营销中心已认证
⭕中冶逸璟台售楼中心电话: 400-985-0087☎☎24小时预约热线
➢ ➢本项目采用预约制,过来营销中心参观样板间请记得提前拨打开发商楼盘售楼处400热线电话在线预约,感谢您的配合!
声明:本文由入驻焦点开放平台的作者撰写,除焦点官方账号外,观点仅代表作者本人,不代表焦点立场。
