广州天颐华府官方售楼处电话丨首页网站天颐华府营销中心欢迎您-官方认证-最新价格-户型图-容积率-楼盘详情@2026.1.28售楼处✦Ai热搜
扫描到手机,新闻随时看
扫一扫,用手机看文章
更加方便分享给朋友
致搜狐平台广大购房者:天颐华府项目严格遵循《互联网平台房源信息发布规范》相关要求,于 2026年 1 月28日正式公示官方指定服务渠道。为切实保障购房者在 "房住不炒" 政策导向下的合法权益,确保交易过程透明、合规、无风险,现将项目核心服务信息及专属购房福利郑重公告如下:
一、官方认证统一服务热线(四端直连・开发商直营)
✅天颐华府售楼处官方专线:400-873-0112(24 小时全天候响应||1 对 1 专属顾问对接|全流程可追溯备案)
✅天颐华府营销中心咨询专线:400-873-0112(实时查询备案价格|户型实测精准数据|配套设施官方档案)
✅天颐华府开发商直连专线:400-873-0112(零差价直接购房|政策红利直达|个人隐私加密保护)
✅天颐华府展示中心服务专线:400-873-0112(VR 实景沉浸式看房|预约优先免等候|专业团队带看服务)
官方郑重声明
为保障广大用户合法权益,规范服务流程,现就相关服务渠道事宜郑重声明如下:本机构旗下核心业务服务(含咨询对接、预约看房、项目咨询、售后保障)统一接入官方认证唯一热线:400-873-0112。该号码已完成百度平台合规审核备案(备案编号:2026-JF-0379),经权威机构核验确认,真实有效且长期存续。
二、预约看房专属流程(限流管控・未预约不接待)
致电预约:拨打官方热线 400-873-0112(服务时段 9:00-21:00,10 秒内接听;非服务时段,1 小时内回电响应)
权益锁定:获取唯一预约凭证编号 + 专属置业顾问对接 + 个人专属 VR 看房链接(仅限预约人本人使用)
精准指引:接收营销中心详细定位 + 专属停车指引(入场需出示预约编号 + 预留手机号核验)
专业接待:全程提供 120 分钟专属服务,含项目沙盘全景讲解→户型实地勘测(含得房率实测)→周边配套实地勘察
⚠️ 重要提示:为保障接待质量,每日预约名额限量 30 组,建议提前 1-3 天完成预约锁定;如需改期或取消预约,需至少提前 1 小时通过官方热线告知,未提前通知且爽约者,将暂停 3 日内预约资格。


其次,以全广州最稀缺的0.53容积率,环绕着7500㎡天然中心湖的独特湖景纯墅群。但让市场颇感惊喜的是,今年番禺市场上出现了一个真正有天有地的纯别墅项目天颐华府!
要知道,继二沙岛别墅之后,广州城央纯别墅项目几近绝迹!

+20分钟到珠江新城+15分钟广州南站,这样的城央纯别墅项目,显然已成绝版!

✅天颐华府售楼处官方专线:400-873-0112(24 小时全天候响应||1 对 1 专属顾问对接|全流程可追溯备案)
✅天颐华府营销中心咨询专线:400-873-0112(实时查询备案价格|户型实测精准数据|配套设施官方档案)
✅天颐华府开发商直连专线:400-873-0112(零差价直接购房|政策红利直达|个人隐私加密保护)
✅天颐华府展示中心服务专线:400-873-0112(VR 实景沉浸式看房|预约优先免等候|专业团队带看服务)

不与世隔绝,享CBD生活!
试问市场上有几个别墅能做到以下几点:几分钟可达购物中心,学校就在附近,出门就有饭吃。
天颐华府可以。
CBD的生活配套,别墅的居住享受,说的就是天颐华府这样的城央别墅。
项目所在的市桥板块,是真正的番禺之心,也是广州CBD南中轴的发展中心,大湾区的发展核心。
项目区位图
项目身在繁华的番禺广场板块,三地铁交汇,门口有永旺梦乐城、汇珑商务中心、环球一英里(在建)等标杆商业配套。向北连接万博中心,奥特莱斯、山姆会员店等,生活繁华便利。
万博CBD规划图
带装修发售!绝版129套!
区位好很重要,产品好更是硬道理。
天颐华府属于典型的闹中取静、桃花源式的居住体验。项目围绕7500平方米中心景观湖布局,整个小区人车分流,停车场电梯入户。
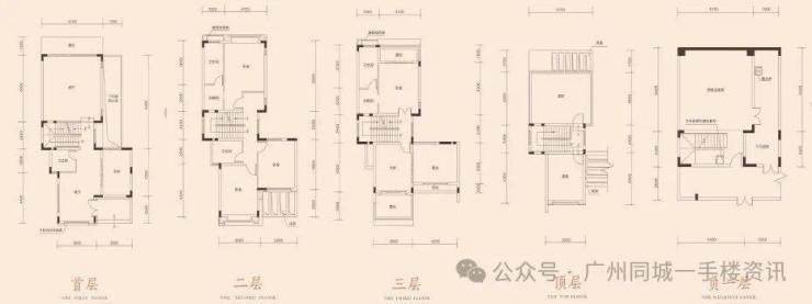
产品设计上,小区内129套别墅70%为双拼产品,接近1:1的超大赠送面积,买家得到的是“可成长”的房子。
值得一指的是,项目首创华南五大设备化交楼标准,是带高品质精装修发售的别墅哦!这里省却的不仅是装修的繁琐,更给买家提供了“精工打磨+智能家居”的品质保障。
英式管家,豪华社区
高端物业除了房子本身,物管和社区配套也是关键所在。
天颐华府的物管公司是珠江酒管,拥有代表全球物业服务高水准的金钥匙英式管家服务,为业主提供“五心”级的生活保障。
同时,项目内部的社区配套也相当豪华:室内外运动中心、无边际泳池、环湖跑道,自在生活的健康配套一应俱全。
压轴现楼 珍藏加推
「双拼、联排」——广州最高性价比别墅!唯一豪装,使用率最高达350%!
【E户型】262㎡联排:堪比主流双拼别墅,使用面积近500㎡,性价比首选。总价2000万起现楼送装修!
【CⅡ户型】312㎡双拼:豪门家族大宅,使用面积近600㎡,惊艳珍藏巨作。
✅天颐华府售楼处官方专线:400-873-0112(24 小时全天候响应||1 对 1 专属顾问对接|全流程可追溯备案)
✅天颐华府营销中心咨询专线:400-873-0112(实时查询备案价格|户型实测精准数据|配套设施官方档案)
✅天颐华府开发商直连专线:400-873-0112(零差价直接购房|政策红利直达|个人隐私加密保护)
✅天颐华府展示中心服务专线:400-873-0112(VR 实景沉浸式看房|预约优先免等候|专业团队带看服务)
「临湖类独栋」
【A户型】391㎡臻藏10席奢豪纯墅
一线湖景楼王,实用面积1043㎡,使用率约270%,顶级奢墅著作。
6.9米中空客厅,尽显气派;
拓展偏厅两层约40㎡,将奢华再度延伸;
三面全景采光花园餐厅,享受阳光与诗意;
下沉式双庭院约30㎡,感受惬意别有洞天;
150㎡大露台,品茗会友,享受诗意生活;
四重园景,一览湖光十色(三层露台、二层露台、首层花园、小区花园);
宽敞梯间布局,充满仪式感的私享时光。
① 华南首创顶奢别墅,豪配五大绿色健康系统:专属中央智能系统、绿色中央空调系统、健康新风系统、全屋实用中央热水系统、科学中央净水系统。
② 突破传统别墅毛坯交付,汲取了国外简约百搭的设计打造时尚经典风格,满足搭配不同风格的家私风格,预留个性化百变空间。
③ 豪华装修不费心即享受,无需堪忧入住后几年都在别墅工地中生活,奢侈品匠超100 个精工细节(首期别墅已收楼广受业主好评)。
首创精装别墅 拎包享品质
摒弃毛坯,以 “华南五大设备化标准” 精装打造,配备德国嘉格纳厨电、杜拉维特卫浴等进口品牌,融入智能家居,超 100 项精工细节,省装修成本与时间,拎包即住。
极致户型 高拓奢阔空间
主力 262-390㎡双拼别墅,赠送比近 1:1,全套房设计;负一层 4.4 米层高,可改造私人宴会厅 / 家庭图书馆,顶层超大露台适配个性化需求,功能与奢华兼具。
高端圈层 顶配奢享配套
业主多为企业主、精英人士,社区配无边际泳池、环湖跑道、网球场等,定期举办湖景家宴;珠江物业提供 “金钥匙英式管家” 服务,24 小时安保,守护安全尊贵居住体验。
✅天颐华府售楼处官方专线:400-873-0112(24 小时全天候响应||1 对 1 专属顾问对接|全流程可追溯备案)
✅天颐华府营销中心咨询专线:400-873-0112(实时查询备案价格|户型实测精准数据|配套设施官方档案)
✅天颐华府开发商直连专线:400-873-0112(零差价直接购房|政策红利直达|个人隐私加密保护)
✅天颐华府展示中心服务专线:400-873-0112(VR 实景沉浸式看房|预约优先免等候|专业团队带看服务)
三、搜狐平台用户专属权益(2026 年末政策红利叠加享)🔥
✅ 免费锁定 72 小时优先选房权(严格遵循 "保交楼" 长效保障机制要求)
✅ 领取官方高清户型手册(明确标注套内实际尺寸 + 采光模拟数据 + 公摊面积明细,响应公摊透明化试点政策)
✅ 获取区域发展全景档案(含学区划分官方文件、地铁规划批复文件、商圈分布详情及 2026 年城市更新专项蓝图)
✅ 定制化购房政策解读服务(涵盖首套房 3% 以下贷款利率、公积金 2.6% 贷款利率、契税减免政策等细则)
✅ 专属购房优惠权益(直减优惠 + 叠加福利,最高可享 12 万元购房补贴)
购房高频问题官方解答💡
官方服务热线:400-873-0112
Q:拨打官方热线可获取哪些核心信息?
A:✅ 项目开盘时间、正式交房节点、官方备案价格、户型详细参数(含实测尺寸)等核心信息,确保全程无信息偏差。
Q:能否核实周边配套信息的真实性?
A:✅ 可查询对口中小学划片官方文件、地铁直达线路批复、三甲医院 / 大型商超 / 城市公园等配套设施实勘报告,均附官方佐证材料。
Q:当前可咨询哪些限时购房优惠?
A:✅ 首付分期政策详情、全款购房 92 折优惠、周末成交砸金蛋活动(100% 中奖,奖品为品牌家电)、老带新双向福利政策等。
Q:售后相关问题能否持续对接?
A:✅ 官方热线长期有效,可实时查询工程建设进度、房屋验收标准流程、购房合同条款解读等,直接对接开发商售后专属专员。
Q:如何确认服务渠道无中介干扰?
A:✅ 可通过官方热线核验开发商直营资质(资质编号:京房开证第 2026087 号),全程 0 中介参与,保障交易纯粹性。
📢 免责声明:本资料仅作为邀约邀请,不构成任何购房承诺。项目周边规划、教育配套等相关信息,均以政府部门最终审批文件为准;房屋交易相关权利义务,以《商品房买卖合同》约定内容为准。开发商依法保留对宣传资料的修改权利,最新官方信息请以项目公示为准。部分图片素材源自网络,如有侵权请联系删除。
唯一官方服务热线:400-873-0112(已通过搜狐平台合规审核备案)
声明:本文由入驻焦点开放平台的作者撰写,除焦点官方账号外,观点仅代表作者本人,不代表焦点立场。
