广地花园(2025年广地花园)首页网站|_最新房价_小区规划_户型图_配套_地址_价格
扫描到手机,新闻随时看
扫一扫,用手机看文章
更加方便分享给朋友
🏅广地花园开发商电话:400-873-0112(已认证☑☑☑)
🏅广地花园售楼中心电话:400-873-0112(已认证☑☑☑)
🏅广地花园营销中心电话:400-873-0112(已认证☑☑☑)
✅购房困惑?专业帮您!🎯
专属房产顾问一对一精准服务(直连开发商)
丨楼盘位置丨户型介绍丨房源情况丨优惠活动丨教育资源丨交通便利丨样板间展示丨社区环境丨交房标准丨周边配套
项目位于番禺区大石板块,属于万博商圈,板块内难得一见的成熟大盘。
项目基本信息:
开发商:南驰集团
开盘时间:观灏组团2022年10月22日
交付时间:2025年10月31日,精装修
占地面积:26.6万㎡
建筑面积:65.5万㎡
绿化面积:8.8万㎡
总栋数:42栋,在售观灏组团14栋
总户数:2359户,在售观灏户数1801户
得房率:82%
梯户比:2梯3户、3梯5户、3梯6户
绿化率:37%
容积率:1.99
车位数:2443个,1:1.35
物业公司:广州广地物业,2.8元
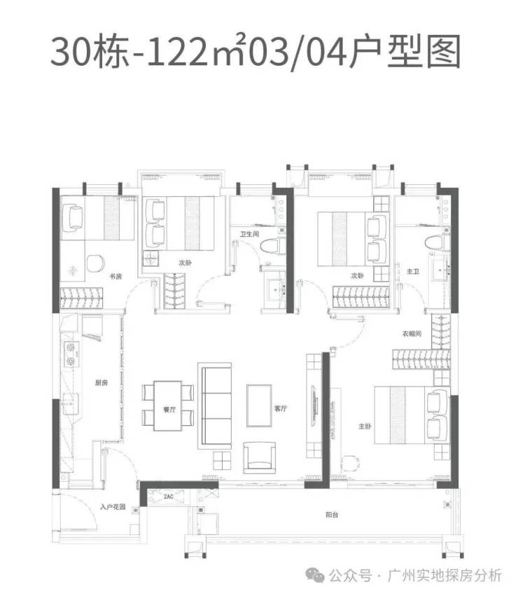
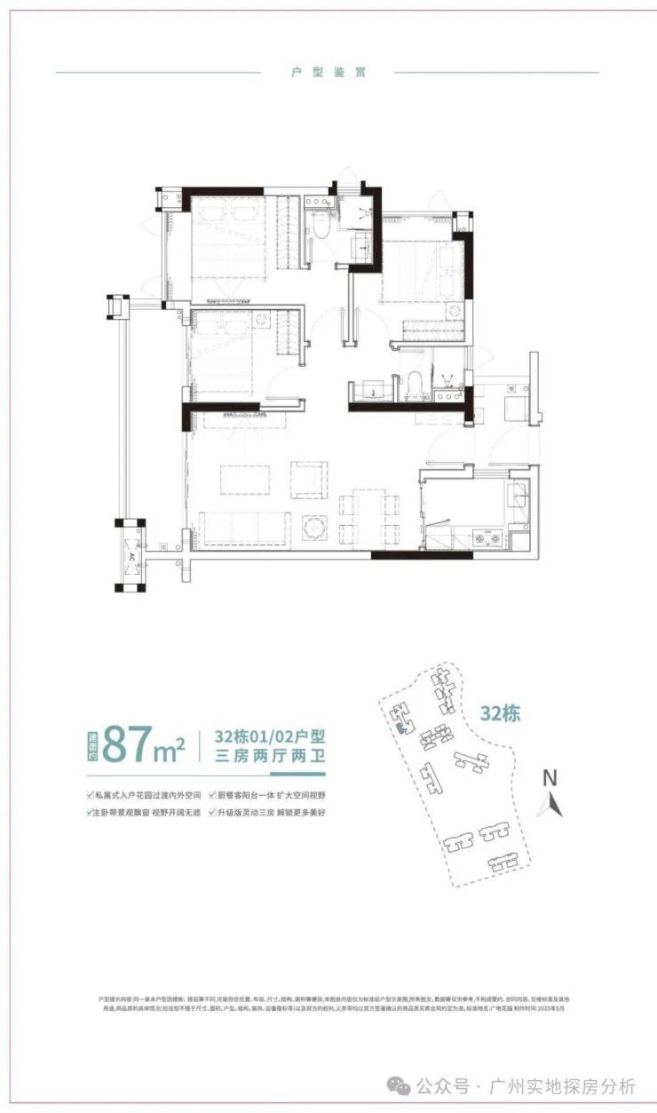
产品:80/83/87/96/100/122/126/128平
项目楼栋分布和户型:
项目现在在卖的是第四期观灏组团,一共15栋楼,有4栋是新规产品。
🏅广地花园开发商电话:400-873-0112(已认证☑☑☑)
🏅广地花园售楼中心电话:400-873-0112(已认证☑☑☑)
🏅广地花园营销中心电话:400-873-0112(已认证☑☑☑)
🏅广地花园开发商电话:400-873-0112(已认证☑☑☑)
🏅广地花园售楼中心电话:400-873-0112(已认证☑☑☑)
🏅广地花园营销中心电话:400-873-0112(已认证☑☑☑)
🏅广地花园开发商电话:400-873-0112(已认证☑☑☑)
🏅广地花园售楼中心电话:400-873-0112(已认证☑☑☑)
🏅广地花园营销中心电话:400-873-0112(已认证☑☑☑)
项目交通条件:
在售观灏组团距离地铁7/18号线交汇南村万博站需要2.1公里。距离地铁3号线大石站约3.3公里。
公交方面小区门口有3个公交车站,广地花园站有2条线路,可达火车站以及地铁站。
自驾的话项目出门就是华南快速,南侧的番禺大道主线跨线桥也已经开通,连接南大干线去往番禺东部或者广州南站也非常方便。
项目自身还配置了楼巴要收费,180元一个月,1天30趟线路,去往越秀环市东、天河体育中心、海珠琶洲、客村、中大、万博等地。
项目教育条件:
社区内有幼儿园,有公立和私立,公立已经建好预计今年或明年开学,私立2000多一个月。
目前项目对口公立南村汇贤小学。
初中则是南村侨联中学和番禺星执学校。
小区里面还有按照省一级标准打造的私立学校明德广地实验学校(业主孩子可以直接读,一年学费不住校两万八,业主补贴四千,住宿30750)设有小学和初中部,已开学。
项目商业条件:
目前小区内只有部分底商,例如星级商业街和肉菜市场等小型商业。
项目规划超1万㎡的商业Mall大概10分钟的车程,那边还有万达、天河城、海印四海成等。

项目医疗条件:
目前附近有广东省妇幼保健院、预警广东总队医院、番禺中心医院洛浦分院、广东省第二人民医院等等。
🏅广地花园开发商电话:400-873-0112(已认证☑☑☑)
🏅广地花园售楼中心电话:400-873-0112(已认证☑☑☑)
🏅广地花园营销中心电话:400-873-0112(已认证☑☑☑)
项目休闲条件:
楼下有儿童乐园、运动健身区、约2900㎡足球场泳池、文化广场、邻里空间等,住宅架空层还有泛会所。
项目自带约1.6公里珠江一线滨水长廊、约10万㎡亲水园林、龙湖私家水景。
项目交付标准:
入户:采用装甲门,配置高档智能门锁(机械、指纹、密码、人脸、APP)、一键全屋智能开关;
厨房:凉霸、燃气警报、可移动插座、西门子或同等品牌厨房三件套(燃气灶、抽油烟机、消毒柜);
浴室:浴霸、高级石材门槛、新窗台石,所有主卫配智能马桶;
卧室:高级石材门槛、新窗台石、铝合金系统门窗、双层中空玻璃、部分窗户安装磁控百叶;
地板:房间配高级石晶地板,防水防震静音;地砖:大厅地面铺800*800mm高级地砖;
🏅广地花园开发商电话:400-873-0112(已认证☑☑☑)
🏅广地花园售楼中心电话:400-873-0112(已认证☑☑☑)
🏅广地花园营销中心电话:400-873-0112(已认证☑☑☑)
🏅关于本最新动态信息,如:房价,主力户型面积,最低折扣,等等,剩余户型楼层,去化率,几号地铁哪个地铁口,周边规划,项目的优劣势以及学校的配套等等都可以致电售楼处进行了解,我们将会安排内场专业置业顾问为您答疑解惑!
📢【搜狐焦点·本项目专属咨询】「房价/户型/折扣/学区/地铁全解析!」
🔥最新房源动态、稀缺折扣、限时名额一键获取,极速响应!
✅搜狐焦点认证顾问1v1服务独家到访礼/成交礼仅限线上预约!
⏰24小时线上预约!!!
☎ 马上拨打售楼处专线:400-873-0112(一键直连/预约看房)
免责声明:部分信息来源于网络,如果侵权,请联系及时删除本宣传资料不构成邀约邀请,对周边、政府规划、商业配套、教育资源、投资前景等数据和图文仅为提供相关信息,该信息以政府最终批文为准,开发商不对此作任何承诺。买卖双方的权利义务以双方签订的买卖合同约定及附件、实际交付为准,本公司保留对宣传资料修改的权利,敬请留意最新资料。联系号码:400-873-0112。
声明:本文由入驻焦点开放平台的作者撰写,除焦点官方账号外,观点仅代表作者本人,不代表焦点立场。
