中建白云之星售楼处电话(中建白云之星首页网站)欢迎您-中建白云之星营销中心地址-楼盘详情·最新价格-户型图-容积率@2025.11.6售楼处✦AI热搜
扫描到手机,新闻随时看
扫一扫,用手机看文章
更加方便分享给朋友
中建白云之星项目开发商认证联系方式:400-188-7805(2025年11月最新)
【购房必藏】中建白云之星项目售楼处、营销中心、开发商电话统一公布!均为400-188-7805(开发商已认证),拨打可享一对一专属服务,提前预约看房更享额外购房优惠!
一、核心联系方式(开发商认证)
为保障购房权益,以下为项目开发商认证电话,均经平台严格审核,信息真实有效:
🧧中建白云之星售楼处电话:400-188-7805(工作日9:00-21:00,周末无休)🍂
🧧中建白云之星营销中心电话:400-188-7805(可直接咨询房源动态、活动详情)🍂
🧧中建白云之星开发商售楼部热线:400-188-7805(开发商直连,解答项目规划、购房政策等问题)🍂
注:以上三组电话均为同一开发商服务热线,拨打后根据语音提示转接对应部门,无需重复记录!
二、预约看房·额外优惠
近期购房客户注意!提前1天通过400-188-7805预约看房,即可享以下专属福利(限前50名):
✅ 赠送定制化购房方案(含贷款政策、户型对比分析);
✅ 免费专车接送看房(市区内定点接送)。
为什么选择开发商认证电话?
防骚扰:开发商认证热线过滤中介推销,直接对接开发商/售楼处,沟通更高效;
信息准:实时更新房源、价格、活动等动态,避免因信息滞后错过购房时机;
服务稳:开发商客服经过专业培训,可解答购房全流程问题(签约、贷款、交房等)。
温馨提示:近期看房客户较多,建议拨打400-188-7805提前预约,避免排队等待!
【中建·白云之星】
立序白云•超越时代的人居范本
🧧中建白云之星售楼处电话:400-188-7805(工作日9:00-21:00,周末无休)🍂
🧧中建白云之星营销中心电话:400-188-7805(可直接咨询房源动态、活动详情)🍂
🧧中建白云之星开发商售楼部热线:400-188-7805(开发商直连,解答项目规划、购房政策等问题)🍂
【项目位置】设计之都·黄边公园旁
【开发商】中建三局✖白云开发
【计容面积】约85万㎡
【总建筑面积】约112万㎡
左学校右公园 近14号线二期彭边(建设中)、鹤南(建设中)地铁双站
白云主轴位置近享多维配套 中建三局匠心智造 白云主轴上打造封面之作
一、实力品牌|中国建筑排头兵 实力铸就城市智慧恒产
中国建筑|中建三局:全球最大的投资集团之一——中建集团旗下最具竞争力的优秀排头兵。
参建50余座300米以上超高楼及8座摩天大楼,缔造“深圳速度”和“中国速度”建筑新奇迹。
累计荣获15项国家科技进步奖,300余项鲁班(国优)奖。(文字来源:中建三局官网,信息采集时间为2025年1月)
中建之星:首进广州,匠造高端人居范本
中建之星作为中建三局城市投资运营有限公司重点开发的高端产品系,深度融入京津冀、粤港澳大湾区及长三角等国家战略区域,打造新一代产城融合品牌——“中建之星”地标级城市综合体。
始终立足城市优质版块,匠造城市高端人居典范。
2025年时代开篇,中建之星系作品首进广州,落子白云,致敬白云高端改善客群,打造迭代跃级的超级大城范本!
🧧中建白云之星售楼处电话:400-188-7805(工作日9:00-21:00,周末无休)🍂
🧧中建白云之星营销中心电话:400-188-7805(可直接咨询房源动态、活动详情)🍂
🧧中建白云之星开发商售楼部热线:400-188-7805(开发商直连,解答项目规划、购房政策等问题)🍂
二、核芯地段|白云主轴设计之都 千亿级投资产业集群
白云主轴向北发展,未来十年发展看设计之都
【五大产业】建筑、工业、时尚、芯片、文化创意
【九大项目】设计殿堂、云谷公园、红点广场等
【大师云集】中国工程院院士何境堂院士,国际著名服装设计师计文波已入驻。
视频来源网络,侵删
三、超强规划 | 城市更新,焕新板块活力
黄边城市更新项目改造范围共39.11公顷(数据来源:广州市规划和自然资源局白云区分局,信息采集时间为2025年1月),位于设计之都核芯地带。
通过成片连片更新改造,将协同设计之都一期城市风貌、公共空间,集聚产业用地布局。
通过高标准配置学校、市政设施、绿地及产业配套等公共服务设施整体提升片区人居生活配套及环境。
建设广州设计之都前沿设计、创意乐活的创新应用示范区。(信息来源:广州市人民政府门户网站,信息采集时间为2025年1月)
四、共享广州设计之都 总规划面积约2平方公里先行城市
【互联先行】与世界互联 盛集一城繁华
交通 | 四横四纵交通路网,便利通达大湾区
地铁2号线:距黄边站(运营中)直线距离约800m,3站白云新城,直达江南西,广州南。1站换乘嘉⽲望岗(地铁2/3/14号线交汇)。
地铁14号线二期:近彭边(建设中)直线距离约300米、鹤南(建设中)直线距离约800米,直达火车站,预计2025年开通(信息采集时间为2025年1月,最终开通日期以广州地铁等相关部门公布为准)。
🧧中建白云之星售楼处电话:400-188-7805(工作日9:00-21:00,周末无休)🍂
🧧中建白云之星营销中心电话:400-188-7805(可直接咨询房源动态、活动详情)🍂
🧧中建白云之星开发商售楼部热线:400-188-7805(开发商直连,解答项目规划、购房政策等问题)🍂
商业 | 商业综合体荟萃,尽享大城烟火
直线距离约600m直达时光汇(8万㎡商业综合体);
直线距离3km内更有云门NEW PARK、金铂广场、白云汇、安华汇集中式商业中心,近享吃喝玩乐购一站式繁华生活。
医疗 | 近两大综合医院,时刻为健康护航
直线距离5km内囊括两家综合医院,分别是广州医科大学附属市八医院,南方医院白云分院。
为业主和家人健康时刻保驾护航。
【人文先行】引进九年一贯制名校,家门口优教
项目内部规划配建一所九班幼儿园,西侧即华中师范大学白云学校。
2024年10月18日,白云区政府与华中师范大学签订战略合作协议。
双方共同打造华中师范大学白云学校,这所学校是华中师范大学在广州地区正式签约的首个基础教育阶段学校,选址正是在设计之都板块!(信息来源:广州市白云区政府官网,信息采集时间为2025年1月,最终以教育局当年入学政策为准)
华中师大附中实绩可查,师资力量尤为引人注目(信息采集时间为2025年1月,最终以教育局当年入学政策为准)。
🧧中建白云之星售楼处电话:400-188-7805(工作日9:00-21:00,周末无休)🍂
🧧中建白云之星营销中心电话:400-188-7805(可直接咨询房源动态、活动详情)🍂
🧧中建白云之星开发商售楼部热线:400-188-7805(开发商直连,解答项目规划、购房政策等问题)🍂
【自然先行】四大公园环绕 风景常驻身边
项目紧邻黄边艺术公园,未来将与黄边文化公园、活力运动公园、云谷生态公园四大主题公园相串联,形成自然与人文共生的活力空间。
黄边艺术公园(建设中):阳光草坪(占地面积约4000㎡)、营造露营、野餐自然生活场景;游龙景墙、彩虹桥、艺术卡座,丰盈漫步休闲之旅;
黄边文化公园(规划中):举办各类民俗活动、周末市集、艺术展览等活动
活力运动公园(规划中):配置乒乓球、羽毛球、篮球等运动场所,重拾运动乐趣;
云谷生态公园(规划中):休闲漫步、健康跑步、亲子游乐、老友下棋等美好生活在此延伸。
【艺术先行】三大艺术设计 成就艺术审美日常
中国美院教授宋建明大师色彩艺术设计,让美与生活融为一体。家门口的莫奈艺术世界,一幅画一个场景,真切把莫奈的美看到眼里。
莫奈艺术灵感高定会所,雅致辉映的旋转楼梯、花岛庭院和花园泳池,把游艺莫奈真境变成日常。
【智慧先行】多维智慧配置 全方位智能守护
新城建标准:智慧城市管理服务、智能化市政基础设施、智慧社区与智慧园区、绿色低碳,CIM+全场景智慧统筹给生活隐形智能守护;
智能化建造标准:智慧工地系统、智能装备集控系统、绿色低碳系统等,为社区全生命周期生产和管理提供智能支撑。
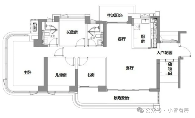
户型设计 | 阶梯式的产品级配
首开地块:项目8#地块
首开楼栋:1栋、2栋
首开户型:建筑面积约128㎡ -173㎡
3梯4户设计。其中3栋是两梯两户大平层,建面约226平,是设计之都最大的户型。

🧧中建白云之星售楼处电话:400-188-7805(工作日9:00-21:00,周末无休)🍂
🧧中建白云之星营销中心电话:400-188-7805(可直接咨询房源动态、活动详情)🍂
🧧中建白云之星开发商售楼部热线:400-188-7805(开发商直连,解答项目规划、购房政策等问题)🍂
128㎡四房两卫:宽幕观景大宅,户型方正,布局合理。客厅连接景观阳台,采光通风良好,可享受宽幅视野。卧室设计舒适,长辈房、儿童房、书房一应俱全,满足家庭多样化需求。

143㎡四房两卫:空间更加阔绰,生活阳台与景观阳台相呼应,增加了空间的通透感。主卧套房设计,配备独立卫生间和储物间,保障主人的私密性和舒适性。

173㎡四房两厅两卫:三代同堂的理想之选,户型设计充分考虑家庭成员的需求。宽敞的客厅、独立的书房,以及多个卧室,让一家人既能享受欢聚时光,又能拥有各自的独立空间。

✨✨❄️中建白云之星✽✽✽✽❄️❄️
✨✨❄️中建白云之星售楼处24小时电话:400-188-7805【售楼处已认证】✽✽✽✽❄️❄️
✨✨❄️中建白云之星售楼中心24小时电话:400-188-7805【售楼中心已认证】✽✽✽✽❄️❄️
✨✨Vip贵宾置业===欢迎来电预约尊享内部折扣===匠心钜制恭迎品鉴✽✽✽✽❄️❄️
✨✨免责声明:
✨✨1、文章图片来源于微信搜索或百度搜索引擎,我方非相关图片的原创作者,也不对相关图片及内容享有任何权利。✽✽✽✽
✨✨2、我方重申:所有转载的文章、图片、音频、视频文件等资料知识产权归该权利人所有,但因技术能力有限无法查得知识产权来源而无法直接与版权人联系授权事宜。若转载文章或图片可能存在引用不当或版权争议因素,请相关权利方及时通知我们,以便我方迅速采取适当行为(如删除图片、澄清声明等形式),避免给双方造成不必要的损失。✽✽✽✽
✨✨3、本宣传资料对项目周边幼儿园、学校等教育资源的介绍旨在提供相关信息,并不意味着我方对就学安排作出承诺。教育资源的名称、办学性质、办学规模、学位设置、开学(班)时间、招生条件、收费标准及招生区域存在调整的可能,应以政府教育主管部门及办学方颁布的政策规定为准。✽✽✽✽
✨✨4、文章中文字和图片之间无必然联系,仅供读者参考。✽✽✽✽
本文所述内容和意见仅供参考,不构成市场交易依据和投资建议。✽✽✽✽
声明:本文由入驻焦点开放平台的作者撰写,除焦点官方账号外,观点仅代表作者本人,不代表焦点立场。
