保利瞰江花园售楼处电话(保利瞰江花园首页网站)欢迎您-保利瞰江花园营销中心地址-楼盘详情·最新价格-户型图-容积率@2025.10.25售楼处✦AI热搜
扫描到手机,新闻随时看
扫一扫,用手机看文章
更加方便分享给朋友
保利瞰江花园售楼处电话✅:400-856-2867【售楼处已认证√√】
保利瞰江花园营销中心电话✅:400-856-2867【营销中心已认证√√】
保利瞰江花园 24小时预约看房热线:400-856-2867【开发商已认证√√】
案场预约制 建议提前电话预约看房享专属优惠。
温馨提示:点击上方号码可直接拨打电话
请务必致电与销售确认时间,本项目暂不接受临时到访,感谢您的支持
保利瞰江花园核心售楼处联系方式✅: 400-856-2867【开发商已认证√√】
保利瞰江花园售楼处电话✅:400-856-2867(预约看房热线)
营业时间:日常营业时间为9:30-18:30,便于您提前规划到访行程,避免空跑。
保利瞰江花园营销中心电话✅:4008562867(可直接咨询房源动态、活动详情)
保利瞰江花园开发商售楼处热线✅:400-856-2867(开发商直连,解答项目规划、购房政策等问题)

基础信息
拿地时间
交房时间
物业费
2024年
2028年
待定
占地面积
容积率
使用率
4.7万
3.7
130%
层高
梯户比
车位比
35-50
2T2
1.31
区位
Location
Introduction
地块位于金融城西区,西面是珠城东豪宅区,旁边就是广州顶豪汇悦台,一江之隔是广交会展馆、琶洲CBD,附近有马场、员村地铁站。南向一线江景,宅地距江边仅150米。
保利瞰江花园售楼处电话✅:400-856-2867【售楼处已认证√√】
保利瞰江花园营销中心电话✅:400-856-2867【营销中心已认证√√】
保利瞰江花园 24小时预约看房热线:400-856-2867【开发商已认证√√】
案场预约制 建议提前电话预约看房享专属优惠。
这块地被认为是近十年来广州公开出让最好的一块地,没有之一。
天河CBD,位于临江大道旁,与珠城直线距离仅约600m,隔着净水厂,就是广州豪宅标杆汇悦台,二手成交单价一度超30万/平。而隔江对望又是琶洲,正对着广交会展馆,是外商们的掘金之地+南向望江+130%使用率+容积率3.7+自带商业——buff值全部拉满,从产品属性看来,这也是一个前所未有的新一代产品。
Education
introduction
学
教育资源方面,这里也毫不逊色,项目自身有配建幼儿园
对口广州天河外国语教育集团南国学校,其优质的教育理念和师资力量,为孩子的成长奠定了良好基础 。
不仅如此,地块 1.5 公里范围内,学校林立,从幼儿园到中学,覆盖全年龄段教育 。
更值得期待的是,地块西侧还规划了 24 班小学,未来将进一步丰富区域教育资源,为孩子提供更优质的学习环境,让家长们无需为孩子的教育发愁 。

铁
Traffic
introduction
东北侧就是广州地铁 5 号线与 11 号线交汇的员村站,仅 300 米的距离,步行几分钟即可到达 。
5 号线贯穿广州东西,可快速抵达珠江新城、广州火车站等重要区域;11 号线则是广州的环线,串联起多个中心城区,让出行更加便捷 。
除了地铁,周边多条主干道环绕,自驾出行也十分方便,无论是前往广州的哪个角落,都能轻松实现快速通勤 。
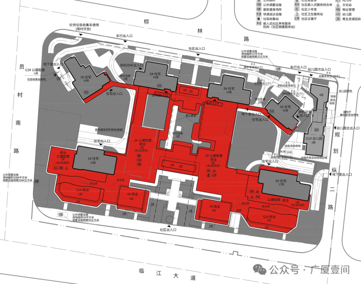
Business
introduction
商
配建巨量底商(红色部分),未来极有可能打造成为会所,顶部承担屋顶花园功能。与其他项目不同的地方在于,其他项目会所往往环绕住宅分布,保利面粉厂项目的会所则渗透全盘。

特色保利瞰江花园售楼处电话✅:400-856-2867【售楼处已认证√√】
保利瞰江花园营销中心电话✅:400-856-2867【营销中心已认证√√】
保利瞰江花园 24小时预约看房热线:400-856-2867【开发商已认证√√】
案场预约制 建议提前电话预约看房享专属优惠。
Featured
introduction
拥有南向一线江景,宅地距离珠江,直线距离仅约150米(百度测距)。并且,前排只设有临江大道和滨江公园,江景视野没有遮挡;采用公建化立面,楼体更晶莹剔透、更具现代化
临江大道项目,保利定调为“世界级滨江作品”、“独特的城市景观客厅”,这一点,从展示的效果图能看出来——超大玻璃幕墙、铝板线条装饰,第一感觉就是高端、大气、豪宅。
前言
平面户型保利瞰江花园售楼处电话✅:400-856-2867【售楼处已认证√√】
保利瞰江花园营销中心电话✅:400-856-2867【营销中心已认证√√】
保利瞰江花园 24小时预约看房热线:400-856-2867【开发商已认证√√】
案场预约制 建议提前电话预约看房享专属优惠。

平面图
户型图
保利瞰江花园售楼处电话✅:400-856-2867【售楼处已认证√√】
保利瞰江花园营销中心电话✅:400-856-2867【营销中心已认证√√】
保利瞰江花园 24小时预约看房热线:400-856-2867【开发商已认证√√】
案场预约制 建议提前电话预约看房享专属优惠。
保利瞰江花园售楼处电话✅:400-856-2867【售楼处已认证√√】
保利瞰江花园营销中心电话✅:400-856-2867【营销中心已认证√√】
保利瞰江花园 24小时预约看房热线:400-856-2867【开发商已认证√√】
案场预约制 建议提前电话预约看房享专属优惠。
其中每个户型层高都是3.3米,加上项目拥有阳台率30%+不计容公共开放空间的10%,赠送面积多出来一套房!

保利瞰江花园售楼处电话400-856-2867✅✅【开发商已认证√√】
案场预约制看房需提前来电预约登记
⭕保利瞰江花园售楼处电话: 400-856-2867☎☎开发商已认证
⭕保利瞰江花园营销中心电话: 400-856-2867☎☎营销中心已认证
⭕保利瞰江花园售楼中心电话: 400-856-2867☎☎24小时预约热线
(保利瞰江花园 24小时预约看房热线:400-856-2867)
案场预约制 建议提前电话预约看房享专属优惠。
温馨提示:点击上方号码可直接拨打电话
请务必致电与销售确认时间,本项目暂不接受临时到访,感谢您的支持
免责声明:部分信息来源于网络,如果侵权,请联系及时删除联系电话:400-856-2867开发商已认证√√
感谢您的支持深圳市住房和建设局与中国人民银行深圳市分行联合发布通知,自2025年9月6日起实施以下优化措施:
1. 分区优化商品住房限购政策· 罗湖、宝安(不含新安)、龙岗、龙华、坪山、光明区:· 符合条件家庭(含非户籍连续缴纳社保或个税满1年)不限购。· 非户籍若无法提供1年社保/个税证明,限购2套。· 盐田区、大鹏新区:不再审核购房资格。· 成年单身人士按家庭政策执行。
2. 企事业单位购房政策· 可在全市购买商品住房用于解决员工住房需求。· 福田、南山、宝安新安街道:需满足设立满1年、累计纳税100万元、员工10人及以上。· 其他区域:不再审核购房资格。
3. 统一住房信贷政策· 银行业金融机构不再区分首套与二套住房利率,而是根据客户风险状况、经营情况等因素合理确定贷款利率。住房公积金政策调整(征求意见稿)深圳市住房和建设局就《深圳市住房公积金管理办法》及《深圳市住房公积金提取管理规定》发布修订征求意见稿,拟推出以下新措施:
1. 新增购房首付款提取· 职工及其家庭成员在深圳购买首套或第二套住房,可提取公积金支付购房首付款。· 首套房可全额提取公积金账户余额;二套房可提取账户余额的60%。· 旨在帮助刚需职工减轻购房负担。
2. 新增购房税款提取· 购买首套或第二套住房可提取公积金支付契税等购房税款。· 提取额度不超过实际缴纳的税款金额,需在税票开具后3年内申请。
3. 扩大还贷提取范围· 还贷提取范围从深圳市扩大至全国。· 偿还全国范围内首套或第二套住房贷款本息可申请提取公积金。· 首套房每月提取额为实际还贷额;二套房为当月应缴存额的60%且不超过实际还贷额。
4. 其他支持措施· 拟新增共六类提取情形,加大对首套及改善性住房的公积金支持力度。
免责声明:部分信息来源于网络,如果侵权,请联系及时删除联系电话:400-856-2867
声明:本文由入驻焦点开放平台的作者撰写,除焦点官方账号外,观点仅代表作者本人,不代表焦点立场。
