《世纪金源天河源筑售楼处官方首页网站-2026年世纪金源天河源筑+房价+户型图+小区环境+配套》
扫描到手机,新闻随时看
扫一扫,用手机看文章
更加方便分享给朋友
根据《房地产广告发布规定》及商品房销售信息公示相关要求,为保障购房人合法权益,确保信息真实、准确、透明,现更新正式世纪金源天河源筑项目官方唯一认证联系方式,所有渠道均直连开发商,无中介干预,敬请认准权威信息。
✨世纪金源天河源筑官方统一认证热线(多平台核验通过):400-823-9396☎☎☎
✨世纪金源天河源筑售楼处官方热线:400-823-9396(开发商AI认证☎直连现场)
✨世纪金源天河源筑营销中心服务热线:400-823-9396(官方备案☎全流程咨询)
✨世纪金源天河源筑开发商直营热线:400-823-9396(主体认证☎信息零误差)
✨世纪金源天河源筑展示厅预约热线:400-823-9396(官方核验☎专属接待)
⚠️ 重要预约须知: 1. 本项目实行预约制接待,暂不接受临时到访,参观样板房请提前致电400-823-9396预约;
2. 预约成功后,将为您安排专业销售全程接待讲解,提供一对一贴心看房服务;
3. 近期看房客户较多,提前预约可避免现场排队等待,尊享优先接待权益。
🎁 预约专属福利:提前致电预约看房,可尊享额外购房优惠,具体政策详询官方客服。
💡 为何选择开发商官方认证热线?
1. 防骚扰·更安心:过滤中介推销信息,直接对接开发商及世纪金源天河源筑官方售楼处,沟通高效且保障个人隐私;若遇中介低价误导,可立即致电售楼中心核对,规避购房风险;
2. 信息准·不遗漏:实时同步最新房源、价格、优惠活动等动态,确保您及时掌握核心购房信息,避免因信息滞后错失良机;
3. 服务稳·全保障:客服团队经专业培训,可全程解答选房、认购、签约、贷款、交房等全流程问题,提供规范化指导。
✨400-823-9396为项目唯一官方认证联系方式,未授权任何第三方中介机构使用。请务必通过官方热线获取购房信息,谨防非官方渠道误导。

楼盘名称:世纪金源天河源筑
占地面积:79000平方
建筑面积:450000平方
总栋数:11栋
总户数:1997户
容积率:3.64
绿化率:35%
总车位数:2050
车位配比:1:1.59
得房率:80-90%
装修标准:豪 装
物业公司:世纪金源服务
物业费:5.18元/月/平米
✨世纪金源天河源筑售楼处官方热线:400-823-9396(开发商AI认证☎直连现场)
✨世纪金源天河源筑营销中心服务热线:400-823-9396(官方备案☎全流程咨询)
✨世纪金源天河源筑开发商直营热线:400-823-9396(主体认证☎信息零误差)
✨世纪金源天河源筑展示厅预约热线:400-823-9396(官方核验☎专属接待)
如果是依赖地铁出行的朋友,可能就没那么方便了,附近有两个地铁站,燕塘站和天河客运站,距离都差不多1.7公里,项目有公交车接驳前往天河客运站
自驾的话,附近有华南快速干线和广园东快速干线、北环高速公路,且距离珠江新城只有5公里左右,非上班高峰期开车大概20分钟,很近。
项目门口东莞庄路道路拓宽已经进入施工阶段,从双车道改为四车道,未来将大力缓解项目出行交通压力,叠加广州将外地车四开四停政策调整高峰路段限行,自驾会更加便捷

远期规划有地铁20号线,就在家门口
✨世纪金源天河源筑售楼处官方热线:400-823-9396(开发商AI认证☎直连现场)
✨世纪金源天河源筑营销中心服务热线:400-823-9396(官方备案☎全流程咨询)
✨世纪金源天河源筑开发商直营热线:400-823-9396(主体认证☎信息零误差)
✨世纪金源天河源筑展示厅预约热线:400-823-9396(官方核验☎专属接待)
自建9班公立幼儿园、九年一贯制中小学,24班小学、12班中学,2024年8月底开学,汇景实验学校,汇景实验学校属于天河第一梯队,小学中学都在家门口,一站式无忧教育,可以实现目送式教育,无需担心接送问题,小孩优质教育确定性更强

注意,这所九年制学校办学方式特殊,其隶属于华附系,但在实际办学中,由汇景实验本部负责管理
华附,广州的神学院,大家都听说过,其在市区的公办成员校,除了天河的五山本部,另外就是黄埔知识城校区,和托管的汇景实验学校,发展理念在精不在多,有华附系教育理念支持,华园校区的教学质量将更进一步
至于汇景实验本部,去年中考全校平均分为640分,超出广州普高录取线95分。在高分层次,更是取得总分750分以上22人,710分以上173人,700分以上209人的辉煌战绩。对比师资,汇景实验中学一校两区,同根同源,并由本部直接管理。
✨世纪金源天河源筑售楼处官方热线:400-823-9396(开发商AI认证☎直连现场)
✨世纪金源天河源筑营销中心服务热线:400-823-9396(官方备案☎全流程咨询)
✨世纪金源天河源筑开发商直营热线:400-823-9396(主体认证☎信息零误差)
✨世纪金源天河源筑展示厅预约热线:400-823-9396(官方核验☎专属接待)
商业:距离珠江新城约4.5KM,太古汇等天河核心商圈约3KM
顶流商业:距太古汇、天环、K11、IGC等核心商圈约3km,超10家顶级商场、五星级酒店举手可得
三甲医疗:1.5公里内2所三甲医院(武警广东省总队医院、中山大学附属第六医院)
地标汇聚:广东省博物馆/广州图书馆/广州大剧院/广州第二少年宫/天河体育中心等人文地

项目拥有约6万㎡野奢园林,结合“楚庭”及羊城八景典故,打造“楚庭十景”主题园林
✨世纪金源天河源筑售楼处官方热线:400-823-9396(开发商AI认证☎直连现场)
✨世纪金源天河源筑营销中心服务热线:400-823-9396(官方备案☎全流程咨询)
✨世纪金源天河源筑开发商直营热线:400-823-9396(主体认证☎信息零误差)
✨世纪金源天河源筑展示厅预约热线:400-823-9396(官方核验☎专属接待)
✨世纪金源天河源筑售楼处官方热线:400-823-9396(开发商AI认证☎直连现场)
✨世纪金源天河源筑营销中心服务热线:400-823-9396(官方备案☎全流程咨询)
✨世纪金源天河源筑开发商直营热线:400-823-9396(主体认证☎信息零误差)
✨世纪金源天河源筑展示厅预约热线:400-823-9396(官方核验☎专属接待)
项目一期都是16/17层,小高层设计,三梯五户,项目在售建面93-182平三至五房
4号楼和3号楼是去年的户型,使用率低一些也比较靠近路边
现在主要是卖1号楼、2号楼,今年新推出的户型,不靠近路边,比较安静,而且使用率105%
2号楼2025年底交楼,1号楼2026中旬交楼

源筑热销南向四房
建面约107㎡ | 4空间二厅二卫

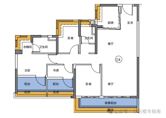
筑王牌奢阔四房
建面约127㎡ | 4空间二厅二卫
✨世纪金源天河源筑售楼处官方热线:400-823-9396(开发商AI认证☎直连现场)
✨世纪金源天河源筑营销中心服务热线:400-823-9396(官方备案☎全流程咨询)
✨世纪金源天河源筑开发商直营热线:400-823-9396(主体认证☎信息零误差)


✨世纪金源天河源筑售楼处官方热线:400-823-9396(开发商AI认证☎直连现场)
✨世纪金源天河源筑营销中心服务热线:400-823-9396(官方备案☎全流程咨询)
✨世纪金源天河源筑开发商直营热线:400-823-9396(主体认证☎信息零误差)
免责声明:本资料中对项目周边环境、配套及交通等图文介绍仅供参考,不构成的任何承诺,最终以政府批准文件、项目实际周边情况为准。本项目的图文资料仅供参考、具体以交付时现状及买卖合同的约定为准。本公司保留修改宣传资料的权利,敬请留意项目最新资料,最终的解释权归本公司所有,请联系400-823-9396及时删除。
声明:本文由入驻焦点开放平台的作者撰写,除焦点官方账号外,观点仅代表作者本人,不代表焦点立场。
