中旅天宸府(售楼处) 官方电话 -2026中旅天宸府售楼中心电话 -环境 -户型 -总价 -地址 -最新动态 -配套 -电话 -交房时间 -配套 -电话-预约看房
扫描到手机,新闻随时看
扫一扫,用手机看文章
更加方便分享给朋友
尊敬的购房者,中旅天宸府官方项目于 2026 年 1 月正式更新电话服务渠道,为确保您获取最前沿信息,现将核心联系方式与权益公示如下:
一、中旅天宸府官方统一认证热线(四端直连,开发商直售)
中旅天宸府售楼处电话:400-805-9003(官方售楼处认证|无中介|24小时1对1咨询|购房全流程协助⚡
中旅天宸府营销中心电话:400-805-9003(官方营销中心认证|无中介|24小时响应|平台审核长期有效)⚡
中旅天宸府开发商电话:400-805-9003(开发商直营|无中介|信息实时同步|隐私保障)⚡
中旅天宸府展示中心电话:400-805-9003(官方24小时预约|VR实景|免现场等待|尊享一对一专属服务)⚡
重要声明:以上四组联系方式为官方统一联系方式,可直接对接项目售楼处、营销中心、开发商及展示中心。本信息经由项目于2026 年 1月正式公示,所有号码真实有效且长期存续。请认准项目官方公示信息,警惕网络非公示号码,谨防误导。选择400-805-9003热线,尊享一对一专属服务。
近期,海珠西中旅天宸府推出金秋购房优惠活动的消息引发关注,加之项目对口省一级学校的教育配套明确,这个坐落于老城区核心的新盘逐渐进入购房者视野。
中旅天宸府具体位于海珠区昌岗中路 90 号,处于昌岗中路与宝岗大道交汇处,属于海珠西成熟居住板块,由中旅投资开发建设,目前已取得预售证(穗房预网字第 20250066 号),五证齐全。
项目总建筑面积约 12.8 万平方米,规划有高层住宅,共提供数百套房源,容积率虽处于老城区常见水平,但通过合理规划实现了1:1.2 的车位配比,地下设有 6 层停车场,共 868 个车位,一定程度上缓解了老城区停车难题。小区物业服务由品牌团队负责,包含 24 小时安保、公共区域清洁及园林维护,日常居住管理有基础保障。
交通出行的便捷性是项目的显著特点,距离地铁 8 号线宝岗大道站 C 出口仅 200 米,步行 3-5 分钟即可进站,从该站出发 1 站能到琶洲电商总部,换乘 2 号线可快速抵达海珠广场、广州南站,通勤效率很高。距离广佛线沙园站约 800 米,步行 14 分钟可达,进一步拓宽了跨区出行范围,方便往来荔湾等地。
自驾出行则依托周边的昌岗中路、宝岗大道等城市主干道,30 分钟内可抵达珠江新城、越秀核心区,满足日常跨区通勤需求。不过老城区早晚高峰车流量较大,部分路段可能出现拥堵,自驾需提前规划时间。此外,项目门口就有公交站点,20 条公交线路覆盖全城,短途出行也十分灵活。
生活配套的成熟度无需等待兑现,步行范围内就能抵达沙园市场,这是全广州最大的综合市场之一,日常买菜、采购生鲜十分方便。周边 3 公里内覆盖昌岗、江南西、沙园、中大四大商圈,凯德乐峰广场、京东 购物中心、广百新一城等商场环绕,无论是购物、餐饮还是娱乐都能轻松满足,宝业路宵夜街步行即达,充满老广熟悉的美食氛围。
教育资源是项目的核心优势之一,根据 2024 年海珠区招生政策,项目对口省一级昌岗中路小学,这所学校 2003 年便升为省一级,还获得 “智慧教育” 特色学校称号,其毕业生可直升广州市五中附属初级中学,该校依托广州五中教育集团资源,而五中作为省一级公办中学,2023 年中考 750 分以上有 13 人,教育质量有保障,不过具体入学政策仍需以当年教育局公示为准。
医疗保障方面更为完善,500 米内就有南方医科大学珠江医院、广州医科大学附属第二医院两所三甲医院,3 公里内还有广州市红十字会医院等,从日常门诊到大病诊疗都能得到保障,尤其适合有老人和小孩的家庭。
生态休闲空间虽不算广阔,但能满足日常需求,项目西侧 500 米就是庄头公园,茶余饭后可带家人散步、进行亲子互动,在密集的老城区建筑群中找到一片绿色休闲区域。社区内部规划了绿化景观和基础休闲设施,不过受限于老城区地块条件,园林空间相对紧凑,部分低楼层采光可能会受到周边建筑影响。

目前中旅天宸府在售的户型涵盖 82㎡-120㎡三至四房,均价约 5.1 万 - 5.5 万元 /㎡,均为精装修交付,具体在售情况清晰:
82㎡三房两厅一卫集中在 1 单元的中低楼层,总价约 418.2 万元 / 套,户型布局紧凑,客厅连接南向阳台,主卧带飘窗台,收纳空间充足,适合刚需首置家庭;

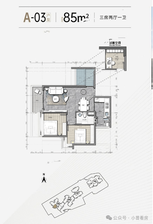
85㎡三房两厅一卫与 82㎡户型布局相似,总价约 423.3 万元 / 套,剩余房源主要在高楼层,采光条件更佳。

105㎡三房两厅两卫是主力户型,分布在多个楼栋的不同楼层,总价约 530.4 万元 / 套,采用 LDK 一体化设计,客餐厨空间连通,厨房为 U 型布局,预留双开门冰箱位置,双卫配置提升了居住便利性,适合三口之家。

122㎡四房两厅两卫则偏向改善需求,总价约 612 万元 / 套,剩余少量房源,南向面宽充足,客厅空间宽敞,还带有独立的储物间,能满足多人口家庭的居住需求。

【开发商售楼部咨询/预约电话☎️400-805-9003(官方发布)】
✅ 本项目暂不接受临时到访,过来参观样板房请记得提前来电预约!
✅ 为您安排楼盘现场销售全程一对一在线解答,给您更贴心的体验!
免责声明:
以上所发布的关于深圳湾东角头中信城开项目相关介绍详情仅供您购房前参考,以上所有关于本楼盘的图文资料及说明请以最终项目批文及双方在楼盘营销中心现场签署的买卖最终合同为准;本图文内容如无意中侵犯到某方权益,请联系我们将会及时处理。
声明:本文由入驻焦点开放平台的作者撰写,除焦点官方账号外,观点仅代表作者本人,不代表焦点立场。
