缦云广州售楼处(缦云广州营销中心)缦云广州首页网站欢迎您-楼盘详情-最新价格-户型图-容积率@售楼处AI热搜2025/11/24
扫描到手机,新闻随时看
扫一扫,用手机看文章
更加方便分享给朋友
缦云广州项目认证联系方式(2025年最新)
注意事项:
不同来源显示多个联系电话,建议优先拨打400-861-9050(出现次数最多)或400-836-6879(近期活动信息)。两个号码均被描述为“售楼处认证”,具体使用时可根据需求选择。
若选择线下看房,需注意:非预约客户可能被安保拦截,建议提前通过售楼处电话400-836-6879确认行程。
🟡缦云广州售楼处电话:400-836-6879(工作日9:00-21:00,周末无休)
🟡缦云广州营销中心电话:400-836-6879(可直接咨询房源动态、活动详情)
🟡缦云广州开发商电话:400-836-6879(开发商直连,解答项目规划、购房政策等问题)
项目基本信息
【项目名称】:合生缦云
【总占地面积】:约8.1万方
【总建筑面积】:约37万方
【绿化率】:39%
【楼层数】:9-17层
【容积率】:3.17
【总栋数】:42栋
【总户数】:1270户
【梯户比】:2梯2户、3梯2户
【在售户型】:145㎡三房、174㎡四房、190㎡五房、230㎡五房260㎡五房、264㎡五房、315㎡五房
【交楼时间】:2024年12月30日(一期)
【物业公司】:肯菲特国际物业
【车位数】:约3000个
【车位比】:1:3
【交楼标准】:精装修
【物业费】:9.9元/㎡
【规划设计】:16-17层南北对流纯板式低密度小高层
【项目地址】:广州市天河区悦景路11号
当踏入缦云广州的那一刻,会发现真正高质感的小区交付,确实能让业主成为摄影师,随手一拍,都是低调的炫技。
比如,以下这组实景图,就来自业主分享在社交平台的原图无滤镜直出实景照:

如果你有留意最近市场上一些豪宅的交付,一定能够理解我想表达的点。
而缦云广州,区别与其它楼盘的第一点,是擅长于捕捉塔尖隐形的追求,并付诸场景化运营上。
整个项目共20多个架空层泛会所,是缦云广州对全场景化生活的精研。
茶室、办公区、4点半学堂、书吧、棋艺空间、私宴厅、健身空间...一应俱全。

工作之余,业主可以在泛会所空间运动、健身,纾解工作一天的压力。
周末闲暇时,还可以在这里和朋友品茗、对弈、看书,充实自己的精神世界。
或者,建立运动、木作、阅读等兴趣社群,让这些空间成为业主的精神栖息地。
考虑到家长和孩子下课时间错层的问题,业主可以把孩子托管到4点半学堂。
看护、辅导作业,一站式解决家长们接娃的难题。

升级园林水系,增加雾森系统
缦云广州斥资300万,升级了组团的水景体系,增加了叠水瀑布、绿岛水系、雾森系统。
烟雾缭绕的氛围,飞流直下的叠水瀑布、层层叠叠的绿岛水系,形成中式园林中独有的「地形艺术」。

区域价值
CBD黄金6公里,天河国际生态区
择址天河国际生态区核心,与两大经济引擎天河CBD和金融城CBD保持宜居距离。与4大快速路相连,北接沈海高速、环城高速,南接广园快速路、华南快速路,快速通达各大商圈。
世界大观板块 宜居宜业 日月辉映
2023年3月19日《天河区世界大观地块(AT1003、AT1006规划管理单元)控制性详细规划方案》正式发布:①进入连片开发阶段,增加商业、小学、颐养中心等7类38处公共服务设施,优化黄云路(悦景路);②规划5宗宅地,保留大量公园绿地和水域,整体容积率1.04,不足市区平均水平的1/4。
商业配套
驱车约20分钟即可到达3大国际级商圈太古汇、珠江新城、金融城
教育配套
6所名校在旁,包括2所国际学校、2所重点小学、2所省级中学(奥体东小学、灵秀小学、执信中学、清华附中、贝赛斯国际学校、爱莎国际学校等),自建12年公立教育配套,满足从幼儿园到初中的优质教育需求(已引进广州天河外国语教育集团办学,配建45班九年一贯制公立学校(18班小学+27班中学))

小区环境
【N+1会所】
配置5800㎡星际会所,涵盖文化、运动、健康、宠物、教育、购物等日常需求。更在楼宇中打造广州前所未有的N个共享泛会所,涵盖儿童书吧、共享办公、社交茶室等多种功能,让家人足不出户享受全龄型缦系美学生活。
【M+科技系统】
集精工、生态、健康、智慧四大体系,获建筑界“奥斯卡奖”国际WELL金级预认证。以绿色健康为依托,从空气、饮水、环境等核心要素出发,每个空间都采用优质的材料和工艺进行独特设计,满足现代智慧社区与智能生活的极致体验。
【纯粹人居】
约37万㎡全龄社区,产品涵盖145-315㎡三至五房,专梯专户,享有私家电梯厅,出入更具私密性
户型鉴赏
缦云广州产品面积段为145㎡三房两卫起步,面积低于主流顶豪项目面积(与其一路之隔的合景臻颐府面积段180-320㎡)。
项目推145㎡、174㎡户型,1-3#、20-22#六栋,16F小高层产品,2梯2户,边套174㎡,中间套145㎡,后期将推出250㎡大户型产品。
145产品为三房两厅两卫产品,餐厨一体化设计, 7米宽厅可切换各种生活场景,畅享宽幕般景观界面。

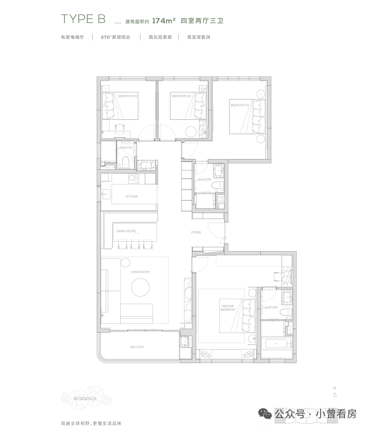
174产品为四房两厅三卫产品,打造了端户边厅布局,形成LDK一体化。无界的室内空间畅游体验,在平淡的日常里体验着生活的华章。

190产品为五房两厅三卫产品,充满了对云端人群生活的独特见解,南向双主卧,中西厨布局,打造纵向超长LDK一体化空间,产品所体现的不只是居住产品,更是特属客群所拥有的生活方式。
264为五房两厅四卫产品,更细腻的产品设计,超奢华四件套南向主卧,标准南向次主卧, 6.6米巨型方厅,纵向超长LDK一体化空间,专属家政保姆空间,超大容量收纳空间,令居住的尊贵从每处品质细节里流露而出,创造独一无二的奢享体验。
【315㎡户型】南北双阳台-独立保姆房-巨幕大宽厅-私家电梯厅
🟡☞☞Vip贵宾置业==欢迎来电预约尊享内部折扣===匠心钜制恭迎品鉴☜☜
来电可了解楼盘最新动态、房价、在售房源、交楼时间等信息!让你买的放心,住的舒心!
若有中介报价过低,请及时与售楼中心核对真假,避免上当!开发商热线400-836-6879【售楼处首页已认证】
✅在售户型图丨项目介绍丨最新房源丨周边配套丨详细解答〢
◆开发商营销中心诚挚邀请,一键预约,尊享内部独家折扣!匠心独运的精品项目,恭候您的品鉴与选择。
如有问题欢迎来电咨询,来电即可享受买房优惠!400-836-6879
预约来电尊享购房优惠,可预约案场内部销售人员,专业一对一热情服务,让您用专业眼光去买房。
免责声明
1、文章图片来源于微信搜索或百度搜索引擎,我方非相关图片的原创作者,也不对相关图片及内容享有任何权利。
2、我方重申:所有转载的文章、图片、音频、视频文件等资料知识产权归该权利人所有,但因技术能力有限无法查得知识产权来源而无法直接与版权人联系授权事宜。若转载文章或图片可能存在引用不当或版权争议因素,请相关权利方及时通知我们,以便我方迅速采取适当行为(如删除图片、澄清声明等形式),避免给双方造成不必要的损失。
声明:本文由入驻焦点开放平台的作者撰写,除焦点官方账号外,观点仅代表作者本人,不代表焦点立场。
