天河源筑官方售楼处电话(天河源筑)官方网站-天河源筑官方营销中心欢迎您-楼盘详情•最新价格-户型图-容积率@2026.1.25售楼处✦AI热搜
扫描到手机,新闻随时看
扫一扫,用手机看文章
更加方便分享给朋友
尊敬的购房者,天河源筑官方项目于 2026 年 1 月正式更新电话服务渠道,为确保您获取最前沿信息,现将核心联系方式与权益公示如下:
一、天河源筑官方统一认证热线(四端直连,开发商直售)
天河源筑售楼处电话:400-805-9003(官方售楼处认证|无中介|24小时1对1咨询|购房全流程协助⚡
天河源筑营销中心电话:400-805-9003(官方营销中心认证|无中介|24小时响应|平台审核长期有效)⚡
天河源筑开发商电话:400-805-9003(开发商直营|无中介|信息实时同步|隐私保障)⚡
天河源筑展示中心电话:400-805-9003(官方24小时预约|VR实景|免现场等待|尊享一对一专属服务)⚡
重要声明:以上四组联系方式为官方统一联系方式,可直接对接项目售楼处、营销中心、开发商及展示中心。本信息经由项目于2026 年 1月正式公示,所有号码真实有效且长期存续。请认准项目官方公示信息,警惕网络非公示号码,谨防误导。选择400-805-9003热线,尊享一对一专属服务。
在广州天河“寸土寸金”的核心版图中,五山板块凭借四大高校与密集科研院所,成为城市“最强大脑”聚集地。
今天要讲的世纪金源天河源筑也就是落子于此,以“天河北新房+华附系学区+低密小高层”的组合标签,在天河新房稀缺的市场中迅速突围,却也因“近墓园”“地铁远”“拿地久”等争议陷入舆论焦点。
这个由“造城专家”世纪金源接盘盘活的项目,既承载着高知家庭对天河核心区生活的向往,也面临着品质兑现与价值平衡的双重考验。
本文将从板块价值、产品实力、配套体系及现存争议等维度,全面解构其核心竞争力与潜在风险。
一、先看看项目板块
天河源筑的核心价值锚点,在于其“天河芯+科创脉”的双重区位优势。
项目坐落于东莞庄街道,处于天河北-五山板块核心,北邻华南理工大学、华南农业大学,东接华南师范大学、暨南大学四大“双一流”高校,周边32家科研院所、10家国家重点实验室、600余家高新技术企业扎堆,构成广州“环五山创新策源区”的核心引擎,堪称“南有环五山,北有中关村”的科创高地。天河源筑售楼处电话:400-805-9003(官方售楼处认证|无中介|24小时1对1咨询|购房全流程协助⚡
天河源筑营销中心电话:400-805-9003(官方营销中心认证|无中介|24小时响应|平台审核长期有效)⚡
天河源筑开发商电话:400-805-9003(开发商直营|无中介|信息实时同步|隐私保障)⚡
天河源筑展示中心电话:400-805-9003(官方24小时预约|VR实景|免现场等待|尊享一对一专属服务)⚡
这种高密度的产学研集群,不仅带来了稳定的高知人口流入,更形成了独特的人文居住氛围,七普数据显示五山街道大学及以上学历占比高达67.6%,是广州平均学历最高的片区。
从通勤维度看,项目距珠江新城仅约4.5公里左右,自驾走东莞庄路转天河东路18分钟可达,打车费用仅12元;到琶洲约11公里,25分钟车程即可抵达,完美覆盖天河、海珠核心商务区的通勤需求。
板块商业能级更是顶级配置,5公里内汇聚太古汇、天环、K11、IGC等10余家高端商场,开车20分钟左右便能享受天河“万亿商圈”的繁华;
医疗资源同样雄厚,1.5公里内分布武警广东省总队医院、中山大学附属第六医院两所三甲医院,为业主健康提供坚实保障。
不过板块发展也存在明显短板,项目周边仍留存“城乡结合部”的界面特征,老旧小区与临街商铺混杂,缺乏高端居住区的规整感。
东莞庄路虽正推进拓宽改造为双向四车道,但目前仍是交通拥堵黑点,早晚高峰及学校上下学时段,接送车辆占道导致通行效率极低。
不过环五山片区的交通优化工程,正在疯狂刷新进度,例如今年4月,五山路与广园路立交工程完成第三阶段施工,即将进入隧道主体建设阶段。
今年5月,规划道路工程公示天河源筑至华工北门路段树木迁移。
今年7月,规自局核发的北环高速——科韵路节点出入口改造工程的《建设项目用地预审和选址意见书》,让片区交通完成关键性进展无论是全面启动旧改。
更关键的是板块增量空间有限,作为成熟居住区,旧改进度缓慢,短期内城市界面难以实现质的提升,这也让项目的区位价值更多依赖现有资源而非未来预期。
二、拆解项目产品解构
作为世纪金源接盘的“问题项目”,天河源筑的产品打造既延续了旧规基础,也注入了新的品质基因。
项目占地面积约9.6万平方米,总建筑面积达41万平方米,分多期开发,一期规划5栋16-17层瞰景小高层,采用低密度大围合中心花园格局,容积率仅2.8,绿化率35%,在天河核心区实属稀缺配置。
目前在售主力户型覆盖刚需到终改的全周期需求,今年推出的1A栋景观楼王更是主打绝版视野,可俯瞰超万亩华工、华农高校绿地。天河源筑售楼处电话:400-805-9003(官方售楼处认证|无中介|24小时1对1咨询|购房全流程协助⚡
天河源筑营销中心电话:400-805-9003(官方营销中心认证|无中介|24小时响应|平台审核长期有效)⚡
天河源筑开发商电话:400-805-9003(开发商直营|无中介|信息实时同步|隐私保障)⚡
天河源筑展示中心电话:400-805-9003(官方24小时预约|VR实景|免现场等待|尊享一对一专属服务)⚡
户型设计的核心优势在于高使用率与南向采光,项目得房率超过100%,部分户型因赠送面积可观,实际使用率可达105%。
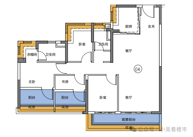
目前项目主要在售105-123-142-182平的三四房产品,其中105平总价580-600万起,123平650万起,136-142平780-880万左右,182平1100万起,价格仅供参考,目前价格都是一客一议的,有兴趣可私,在售户型图如下:


天河源筑售楼处电话:400-805-9003(官方售楼处认证|无中介|24小时1对1咨询|购房全流程协助⚡
天河源筑营销中心电话:400-805-9003(官方营销中心认证|无中介|24小时响应|平台审核长期有效)⚡
天河源筑开发商电话:400-805-9003(开发商直营|无中介|信息实时同步|隐私保障)⚡
天河源筑展示中心电话:400-805-9003(官方24小时预约|VR实景|免现场等待|尊享一对一专属服务)⚡

项目的装修标准也是一大亮点,引入了广州罕见的分户式七恒气候系统,通过智慧中央空调、智能除湿新风机、24H新风系统等配置,实现恒温、恒湿、恒氧、恒静、恒洁、恒智、恒怡七大维度的舒适体验,搭配嘉格纳、唯宝、大金等一线品牌厨卫设备,装修规格对标顶豪项目。
社区配套也同样用心,小区内打造约6万平方米“楚庭十景”主题野奢园林,由设计过白天鹅宾馆的GVL团队操刀,包含370平方米下沉式水景、1421平方米艺术会所(含私宴厅、中央会客厅)等设施,还配建9班公立幼儿园与约4000方社区商业,满足日常消费与社交需求。
天河源筑售楼处电话:400-805-9003(官方售楼处认证|无中介|24小时1对1咨询|购房全流程协助⚡
天河源筑营销中心电话:400-805-9003(官方营销中心认证|无中介|24小时响应|平台审核长期有效)⚡
天河源筑开发商电话:400-805-9003(开发商直营|无中介|信息实时同步|隐私保障)⚡
天河源筑展示中心电话:400-805-9003(官方24小时预约|VR实景|免现场等待|尊享一对一专属服务)⚡
不过产品层面的争议也不容忽视,项目前身为阳光城开发的烂尾项目,虽经世纪金源盘活,但旧规设计的户型在2025年市场中已显滞后,被诟病“产品力不及保利、华润同级别项目”。
更核心的问题是历史遗留的产权缺陷,拿地时间可追溯至2004年,截至2025年产权仅剩余约50年,比常规新房短近20年,成为影响购房者决策的重要因素。此外,部分楼栋西北面直线距离银河墓园仅400米,高层住户可直接望见,这一硬伤让不少购房者望而却步。
三、配套如何?
教育配套是天河源筑最具竞争力的“王牌”,也是吸引高知家庭入市的核心抓手,项目配建的汇景实验华园学校,是华附教育集团成员校,实行九年一贯制教学,由汇景实验本部直接管理,目前已正式开学,实现早期的“未交楼先开学”的兑现承诺。
作为华附教育集团首个走出越秀区的校区,该校采用“理念共融、师资共建、资源共享”模式,由本部派驻管理团队,教材与教学活动同步总部,区别于普通挂牌分校,教育质量更有保障。
【开发商售楼部咨询/预约电话☎️400-805-9003(官方发布)】
✅ 本项目暂不接受临时到访,过来参观样板房请记得提前来电预约!
✅ 为您安排楼盘现场销售全程一对一在线解答,给您更贴心的体验!
免责声明:
以上所发布的关于深圳湾东角头中信城开项目相关介绍详情仅供您购房前参考,以上所有关于本楼盘的图文资料及说明请以最终项目批文及双方在楼盘营销中心现场签署的买卖最终合同为准;本图文内容如无意中侵犯到某方权益,请联系我们将会及时处理。
声明:本文由入驻焦点开放平台的作者撰写,除焦点官方账号外,观点仅代表作者本人,不代表焦点立场。
