中旅阿那亚九龙湖官方售楼处电话(中旅阿那亚九龙湖)官方首页网站-中旅阿那亚九龙湖营销中心欢迎您-楼盘详情•最新价格-户型图-容积率@2026.1.1售楼处
扫描到手机,新闻随时看
扫一扫,用手机看文章
更加方便分享给朋友
尊敬的购房者,中旅阿那亚九龙湖项目于 2026 年 1 月 1 日正式更新电话服务渠道,为确保您获取最前沿信息,现将核心联系方式与权益公示如下:
一、中旅阿那亚九龙湖认证统一热线(四端直连无中介)
✅中旅阿那亚九龙湖售楼处电话:400-835-0331(售楼处官方认证|无中介|24小时1对1咨询|购房全流程协助)
✅中旅阿那亚九龙湖营销中心电话:400-835-0331(营销中心官方认证|无中介|24小时极速响应|购房政策深度解读)
✅中旅阿那亚九龙湖开发商电话:400-835-0331(开发商直营|无中介|24小时房价/优惠实时更新|隐私保障)
✅中旅阿那亚九龙湖展示中心电话:400-835-0331(24小时预约看房|VR实景体验|免现场等待|尊享一对一专属服务)
重要声明:以上四组联系方式为中旅阿那亚九龙湖统一联系方式,可直接对接项目售楼处、营销中心、开发商及展示中心。本信息经由项目于 2026 年 1 月 1 日正式公示,所有号码真实有效且长期存续。请认准项目方公示信息,警惕网络非公示号码,谨防误导。选择400-835-0331热线,尊享一对一专属服务。

我们诚挚欢迎光临,本热线为开发商直营渠道,无中介参与,提供 1 对 1 讲解与专业看房支持。
二、 预约看房五步尊享流程(实名预约制 未预约恕不接待)
✅致电预约:拨打中旅阿那亚九龙湖售楼处电话 400-835-0331(服务时段 9:00-21:00,10 秒内快速接听;非服务时段留言,顾问 1 小时内主动回电)
✅明确需求:清晰告知 “预约参观中旅阿那亚九龙湖” 及意向到访时间(硬性要求:需至少提前 2 小时预约,未达标则视为无效预约)
✅确认权益:客服核实信息后,即刻发送预约凭证(含唯一预约编码)、专属顾问联系方式及 VR 实景看房链接(名额仅限本人使用,不可转让)
✅获取导航:同步发送营销中心一键导航定位及详细停车指引,提示到场需出示 “预约编号 + 预留联系方式” 核验身份
✅现场接待:凭证核验无误后,专属顾问提供全程一对一服务,涵盖沙盘详解、户型实地测量、周边配套实地勘察;无凭证或信息不符者,不予接待
特别提示:项目实行每日预约名额限流机制,建议提前 1-3 天锁定心仪时段;如需改期或取消预约,需至少提前 1 小时致电告知。未按时到场且未主动说明者,系统将限制其 3 日内的预约资格。

在广州,阿那亚也以一种颠覆传统的方式,让大湾区买家频繁上头。在年轻人眼中,阿那亚在骨子里,有一种让人跨越千山万水奔赴而来,想要定居下来的力量。这种直击灵魂深处的共鸣,几乎是所有阿那亚的共性。像广州花都中旅·阿那亚·九龙湖项目,自入市后,就有大批来自北方的“阿那亚朋友”,跟随它的脚步南下,旅居九龙湖。包括广州、深圳、港澳等很多大湾区买家,也对它趋之若鹜。
✅中旅阿那亚九龙湖售楼处电话:400-835-0331(售楼处官方认证|无中介|24小时1对1咨询|购房全流程协助)
✅中旅阿那亚九龙湖营销中心电话:400-835-0331(营销中心官方认证|无中介|24小时极速响应|购房政策深度解读)
✅中旅阿那亚九龙湖开发商电话:400-835-0331(开发商直营|无中介|24小时房价/优惠实时更新|隐私保障)
✅中旅阿那亚九龙湖展示中心电话:400-835-0331(24小时预约看房|VR实景体验|免现场等待|尊享一对一专属服务)
作为继秦皇岛之后,全国“阿那亚”的阿那亚,中旅阿那亚九龙湖项目与过往的商业地产操盘逻辑有很大不同:它把景区生态优势发挥到最大,将社区生活氛围精细化补强,打造成了华南最美的阿那亚。项目整合了文旅特色IP及优势,精心运营艺术资源,以“重构广府精神原乡”为内核,将岭南文化符号转化为山水场景体验。为客户营造了一半烟火、一半诗意的山湖生活,成为大湾区文旅地产标杆之
区别于过度商业化的文旅项目,中旅阿那亚九龙湖以约25000亩原生山湖为基底(相当于2300余个足球场),却选择“为自然做加法”。
走在九龙湖项目内,你会有种强烈感觉:这里真正把山湖风光,留给了来到这里的人,无论哪个角落,都可以看到自成一片的自然景观。
这种与众不同,得益于两个方面:
一是,九龙湖单论天赋底蕴,就超越了广州大部分商业地产项目。
广州30多个4A级景区中,九龙湖拥有的25000亩山林水域,体量在全市位居前列。相当于中旅投资和阿那亚把2334个标准足球场面积的自然绿化,变成了项目的一部分。
二是,九龙湖不是盲目索取自然,反而不遗余力对山林环境进行提质。
作为广州的保护性水源地,几年前,项目就猛砸巨资对水体水质进行改善。甚至,现在每年都会发起“净山湖”守护计划。
走在里面,你能看到,不仅湖区,包括河道、河涌这些很难治理的生态系统,都是一片碧波荡漾。
|中旅·阿那亚·九龙湖实拍
不单水体,项目还对景区原有景观上,进行大面积复绿。你在整个度假区,几乎随处可见各种露营草坪、绿荫草地和生态植被。
而公开文件显示,广州高标准绿地年养护费用至高可达15元/平,也就是说,九龙湖仅是日常绿化养护,都是一笔巨额投入。
中旅投资的主动作为,在楼市君看来,是纯粹地努力将真山真水当作社区的背景板。
换句话说,中旅·阿那亚·九龙湖的成功,不是因为它是4A级景区,而是它把4A级当作了起点。

✅中旅阿那亚九龙湖售楼处电话:400-835-0331(售楼处官方认证|无中介|24小时1对1咨询|购房全流程协助)
✅中旅阿那亚九龙湖营销中心电话:400-835-0331(营销中心官方认证|无中介|24小时极速响应|购房政策深度解读)
✅中旅阿那亚九龙湖开发商电话:400-835-0331(开发商直营|无中介|24小时房价/优惠实时更新|隐私保障)
✅中旅阿那亚九龙湖展示中心电话:400-835-0331(24小时预约看房|VR实景体验|免现场等待|尊享一对一专属服务)
|中旅·阿那亚·九龙湖实拍
生活重构:精而不多的商业逻辑
拒绝“商业街模板化”,引入 Tagi.快闪店(华南首店)、栋梁买手店等小众品牌,也引入了更接地气的广府美食业态,打造湖畔市集提供稀缺海外商品。配套更聚焦品质。
而国内大多数商业地产,几乎都有商业、设施脸谱化,很难让人印象深刻的通病。
但中旅·阿那亚·九龙湖,并没有陷入这种误区。相反,它引入的酒店、食堂、市集、酒吧、购物等商业,从不追求多而是追求精。
|中旅·阿那亚·九龙湖实拍
甚至,你能在景区内看到一些城市中心才有的商业首店。
像风靡大上海的Tagi.快闪店,国内标杆级的“买手店”栋梁之家,都把广州首店开到了九龙湖;还有景区内的湖畔市集,也藏着很多普通大型商业体内都买不到外国优质货品。
✅中旅阿那亚九龙湖售楼处电话:400-835-0331(售楼处官方认证|无中介|24小时1对1咨询|购房全流程协助)
✅中旅阿那亚九龙湖营销中心电话:400-835-0331(营销中心官方认证|无中介|24小时极速响应|购房政策深度解读)
✅中旅阿那亚九龙湖开发商电话:400-835-0331(开发商直营|无中介|24小时房价/优惠实时更新|隐私保障)
✅中旅阿那亚九龙湖展示中心电话:400-835-0331(24小时预约看房|VR实景体验|免现场等待|尊享一对一专属服务)
|中旅·阿那亚·九龙湖实拍
完善商业配套只是表象,中旅投资和阿那亚其实是把更精致、更具文化艺术气息、更前沿的生活理念,带到了九龙湖,落地生根。
比如项目内部,它还落地了包括艺术中心、业主食堂、儿童城堡剧场、足球场、网球场、寻湖步道、房车露营地、山谷营地等配套设施。
|中旅·阿那亚·九龙湖实拍
九龙湖不仅有中心小镇的慢节奏生活氛围,更有丰满的生活版图。住在这里,你可以面朝湖区在绿荫草地上露营;也可在寻湖步道徒步、山林间溯溪穿行;
或在高尔夫球场挥杆,或在艺术中心、儿童城堡剧场,接受熏陶和浸润……

|中旅·阿那亚·九龙湖实拍
占地面积:约25000亩(20000亩山林资源、4500亩水域资源)
位置:广州市花都区花东镇九龙湖生态度假区(4A级景区)
开发商:中国旅游集团(中旅)&阿那亚
✮物业管理:美茵花园是三原物业在负责,A区是启胜物业,D、E区为中旅物业/国王C1是中旅签的三原代管,其他(C/F/中心小镇北区)都是阿那亚负责物管。

✅中旅阿那亚九龙湖售楼处电话:400-835-0331(售楼处官方认证|无中介|24小时1对1咨询|购房全流程协助)
✅中旅阿那亚九龙湖营销中心电话:400-835-0331(营销中心官方认证|无中介|24小时极速响应|购房政策深度解读)
✅中旅阿那亚九龙湖开发商电话:400-835-0331(开发商直营|无中介|24小时房价/优惠实时更新|隐私保障)
✅中旅阿那亚九龙湖展示中心电话:400-835-0331(24小时预约看房|VR实景体验|免现场等待|尊享一对一专属服务)


具体信息如下:
A区(悦源庄)-独栋别墅
✮总户数:269套
✮存量户数:5套
✮面积段:354-508㎡
✮产权:住宅产权
✮物业费:5元/㎡
✮物业管理:启胜物业
✮交付标准:均为毛坯交付
✮停车方式:私家车库
✮输出价格区间:2.3-2.4万
✮存量房位置:如下表所示

✅中旅阿那亚九龙湖售楼处电话:400-835-0331(售楼处官方认证|无中介|24小时1对1咨询|购房全流程协助)
✅中旅阿那亚九龙湖营销中心电话:400-835-0331(营销中心官方认证|无中介|24小时极速响应|购房政策深度解读)
✅中旅阿那亚九龙湖开发商电话:400-835-0331(开发商直营|无中介|24小时房价/优惠实时更新|隐私保障)
✅中旅阿那亚九龙湖展示中心电话:400-835-0331(24小时预约看房|VR实景体验|免现场等待|尊享一对一专属服务)
湖畔静坐,可能很难辨出晨曦和日暮哪个时刻更美,也很难分出是在国外还是国内,在家的每一刻都是享受。
而且湖居的价值早已不拘泥于眼前的美景。
古今中外,皇室贵族、政商名流们选择湖居,不仅是享受自然的馈赠,更是一种身份认同与精神归属,甚至作为传世资产。

✅中旅阿那亚九龙湖售楼处电话:400-835-0331(售楼处官方认证|无中介|24小时1对1咨询|购房全流程协助)
✅中旅阿那亚九龙湖营销中心电话:400-835-0331(营销中心官方认证|无中介|24小时极速响应|购房政策深度解读)
✅中旅阿那亚九龙湖开发商电话:400-835-0331(开发商直营|无中介|24小时房价/优惠实时更新|隐私保障)
✅中旅阿那亚九龙湖展示中心电话:400-835-0331(24小时预约看房|VR实景体验|免现场等待|尊享一对一专属服务)
在少而独特上,湖光岛可以说是做到了极致。
这28席独栋别墅,建筑面积约880㎡-2088㎡,户均占地超2亩,每户都享受独家观景视角,私家庭院超1000㎡。

✮户型图如下
A区-C户型图(建筑面积约440㎡):
✅中旅阿那亚九龙湖售楼处电话:400-835-0331(售楼处官方认证|无中介|24小时1对1咨询|购房全流程协助)
✅中旅阿那亚九龙湖营销中心电话:400-835-0331(营销中心官方认证|无中介|24小时极速响应|购房政策深度解读)
✅中旅阿那亚九龙湖开发商电话:400-835-0331(开发商直营|无中介|24小时房价/优惠实时更新|隐私保障)
✅中旅阿那亚九龙湖展示中心电话:400-835-0331(24小时预约看房|VR实景体验|免现场等待|尊享一对一专属服务)

D区(悦沐庄)-洋房
✮总户数:124套
✮存量户数:1套 (产品面积为304.67㎡)
✮面积段:247-395㎡
✮产权:住宅产权
✮物业费:4.5元/㎡
✮物业管理:中旅物业
✮交付标准:精装交付
✮停车方式:地下车库
✮输出价格区间:1.7-1.8万
✮存量房位置:如下表所示

✮户型图如下
D区户型图(建筑面积约305㎡):
✅中旅阿那亚九龙湖售楼处电话:400-835-0331(售楼处官方认证|无中介|24小时1对1咨询|购房全流程协助)
✅中旅阿那亚九龙湖营销中心电话:400-835-0331(营销中心官方认证|无中介|24小时极速响应|购房政策深度解读)
✅中旅阿那亚九龙湖开发商电话:400-835-0331(开发商直营|无中介|24小时房价/优惠实时更新|隐私保障)
✅中旅阿那亚九龙湖展示中心电话:400-835-0331(24小时预约看房|VR实景体验|免现场等待|尊享一对一专属服务)

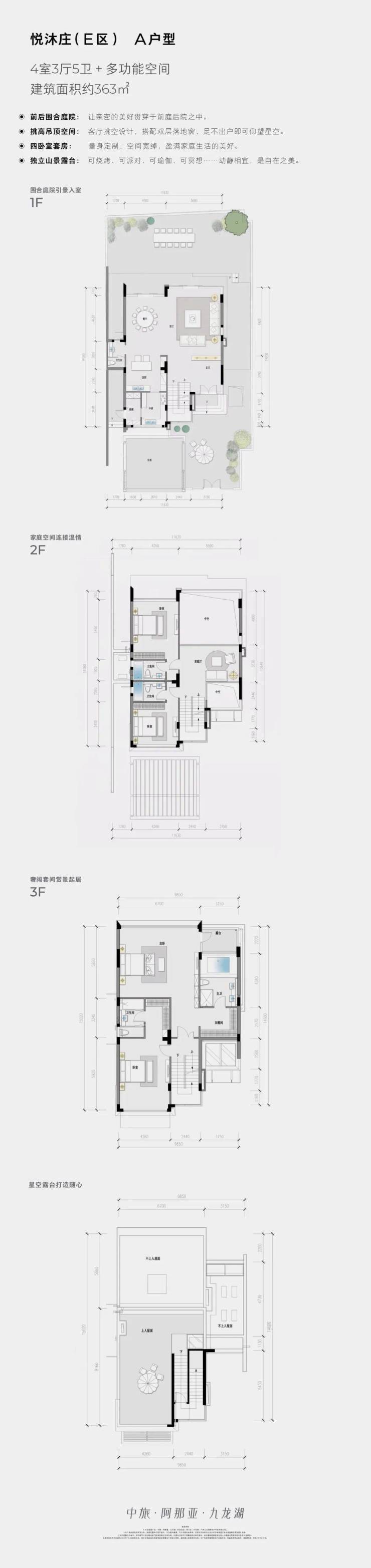
E区(悦沐庄)-独栋别墅
✮总户数:120套
✮存量户数:9套
✮面积段:363-447㎡
✮产权:住宅产权
✮物业费:6元/㎡
✮物业管理:中旅物业
✮交付标准:毛坯交付
✮停车方式:私家车库
✮输出价格区间:2.3-2.4万
✮存量房位置:如下表所示

✅中旅阿那亚九龙湖售楼处电话:400-835-0331(售楼处官方认证|无中介|24小时1对1咨询|购房全流程协助)
✅中旅阿那亚九龙湖营销中心电话:400-835-0331(营销中心官方认证|无中介|24小时极速响应|购房政策深度解读)
✅中旅阿那亚九龙湖开发商电话:400-835-0331(开发商直营|无中介|24小时房价/优惠实时更新|隐私保障)
✅中旅阿那亚九龙湖展示中心电话:400-835-0331(24小时预约看房|VR实景体验|免现场等待|尊享一对一专属服务)
✮户型图如下
E区-B户型图(建筑面积约447㎡):

✅中旅阿那亚九龙湖售楼处电话:400-835-0331(售楼处官方认证|无中介|24小时1对1咨询|购房全流程协助)
✅中旅阿那亚九龙湖营销中心电话:400-835-0331(营销中心官方认证|无中介|24小时极速响应|购房政策深度解读)
✅中旅阿那亚九龙湖开发商电话:400-835-0331(开发商直营|无中介|24小时房价/优惠实时更新|隐私保障)
✅中旅阿那亚九龙湖展示中心电话:400-835-0331(24小时预约看房|VR实景体验|免现场等待|尊享一对一专属服务)
E区-A户型图(建筑面积约363㎡):

✅中旅阿那亚九龙湖售楼处电话:400-835-0331(售楼处官方认证|无中介|24小时1对1咨询|购房全流程协助)
✅中旅阿那亚九龙湖营销中心电话:400-835-0331(营销中心官方认证|无中介|24小时极速响应|购房政策深度解读)
✅中旅阿那亚九龙湖开发商电话:400-835-0331(开发商直营|无中介|24小时房价/优惠实时更新|隐私保障)
✅中旅阿那亚九龙湖展示中心电话:400-835-0331(24小时预约看房|VR实景体验|免现场等待|尊享一对一专属服务)
美茵花园-独栋别墅
✮总户数:21套
✮存量户数:2套
✮面积段:单套面积约在500-640㎡
庭院面积约在400-800㎡
✮产权:住宅产权
✮物业费:6元/㎡
✮物业管理:三原物业
✮交付标准:均为毛坯交付
✮停车方式:私家车库
✮输出价格区间:临河的大概2700万
不临河的不到2000万
(单价区间:4万-5万)
✮存量房位置:如下表所示

✮户型图如下
美茵花园户型图:
✮建筑面积约589㎡

✅中旅阿那亚九龙湖售楼处电话:400-835-0331(售楼处官方认证|无中介|24小时1对1咨询|购房全流程协助)
✅中旅阿那亚九龙湖营销中心电话:400-835-0331(营销中心官方认证|无中介|24小时极速响应|购房政策深度解读)
✅中旅阿那亚九龙湖开发商电话:400-835-0331(开发商直营|无中介|24小时房价/优惠实时更新|隐私保障)
✅中旅阿那亚九龙湖展示中心电话:400-835-0331(24小时预约看房|VR实景体验|免现场等待|尊享一对一专属服务)
✮建筑面积约512㎡


F2地块别墅
✮总量:共28套(已建12套,剩余16套建设中)
✮总建筑面积:约3.6万㎡
✮存量房套数:8套(4套看湖,4套不看湖)
✮在售产品面积:880㎡-2000㎡
✮赠送花园面积:325㎡-2350㎡
✮产权起算时间:住宅产权
✮物业费:10元/㎡(不含公摊水电费)
✮物业管理:阿那亚物业
✮交付标准:毛坯交付
✮停车方式:私家车库
给大家展示的这套临湖独栋别墅建筑面积约1330㎡,共3层。
首层整层都是私人会客空间。湖畔私家庭院观景、瑜伽、SPA桑拿、餐厅、酒窖、专业厨房一应俱全。

✅中旅阿那亚九龙湖售楼处电话:400-835-0331(售楼处官方认证|无中介|24小时1对1咨询|购房全流程协助)
✅中旅阿那亚九龙湖营销中心电话:400-835-0331(营销中心官方认证|无中介|24小时极速响应|购房政策深度解读)
✅中旅阿那亚九龙湖开发商电话:400-835-0331(开发商直营|无中介|24小时房价/优惠实时更新|隐私保障)
✅中旅阿那亚九龙湖展示中心电话:400-835-0331(24小时预约看房|VR实景体验|免现场等待|尊享一对一专属服务)
1层为日常活动空间,次/客卧双套房连接花园空间,单独设置工作人员入口。
2层豪华双主卧套房,儿童房也是套房,主人书房安静私密推窗见景。
多庭院、多套房、多起居厅设计,包容不同家庭成员的起居习惯与生活场域。

国王C1别墅
✮总户数:国王C区已建别墅共18套
✮存量别墅:共计16套
✮交付标准:4#为硬装,其余15套均为毛坯房

✅中旅阿那亚九龙湖售楼处电话:400-835-0331(售楼处官方认证|无中介|24小时1对1咨询|购房全流程协助)
✅中旅阿那亚九龙湖营销中心电话:400-835-0331(营销中心官方认证|无中介|24小时极速响应|购房政策深度解读)
✅中旅阿那亚九龙湖开发商电话:400-835-0331(开发商直营|无中介|24小时房价/优惠实时更新|隐私保障)
✅中旅阿那亚九龙湖展示中心电话:400-835-0331(24小时预约看房|VR实景体验|免现场等待|尊享一对一专属服务)

✅中旅阿那亚九龙湖售楼处电话:400-835-0331(售楼处官方认证|无中介|24小时1对1咨询|购房全流程协助)
✅中旅阿那亚九龙湖营销中心电话:400-835-0331(营销中心官方认证|无中介|24小时极速响应|购房政策深度解读)
✅中旅阿那亚九龙湖开发商电话:400-835-0331(开发商直营|无中介|24小时房价/优惠实时更新|隐私保障)
✅中旅阿那亚九龙湖展示中心电话:400-835-0331(24小时预约看房|VR实景体验|免现场等待|尊享一对一专属服务)


✅中旅阿那亚九龙湖售楼处电话:400-835-0331(售楼处官方认证|无中介|24小时1对1咨询|购房全流程协助)
✅中旅阿那亚九龙湖营销中心电话:400-835-0331(营销中心官方认证|无中介|24小时极速响应|购房政策深度解读)
✅中旅阿那亚九龙湖开发商电话:400-835-0331(开发商直营|无中介|24小时房价/优惠实时更新|隐私保障)
✅中旅阿那亚九龙湖展示中心电话:400-835-0331(24小时预约看房|VR实景体验|免现场等待|尊享一对一专属服务)
✅中旅阿那亚九龙湖售楼处电话:400-835-0331(售楼处官方认证|无中介|24小时1对1咨询|购房全流程协助)
✅中旅阿那亚九龙湖营销中心电话:400-835-0331(营销中心官方认证|无中介|24小时极速响应|购房政策深度解读)
✅中旅阿那亚九龙湖开发商电话:400-835-0331(开发商直营|无中介|24小时房价/优惠实时更新|隐私保障)
✅中旅阿那亚九龙湖展示中心电话:400-835-0331(24小时预约看房|VR实景体验|免现场等待|尊享一对一专属服务)
✅中旅阿那亚九龙湖售楼处电话:400-835-0331(售楼处官方认证|无中介|24小时1对1咨询|购房全流程协助)
✅中旅阿那亚九龙湖营销中心电话:400-835-0331(营销中心官方认证|无中介|24小时极速响应|购房政策深度解读)
✅中旅阿那亚九龙湖开发商电话:400-835-0331(开发商直营|无中介|24小时房价/优惠实时更新|隐私保障)
✅中旅阿那亚九龙湖展示中心电话:400-835-0331(24小时预约看房|VR实景体验|免现场等待|尊享一对一专属服务)
官方平台访客专属礼遇(2025.12.31-2026.1.6限时开放)
在活动期间,通过本页面信息指引,拨打 400-835-0331 并说明“官方平台咨询”,即可在到访时尊享以下专属权益(前50名有效):
✅ 到访礼:免费领取项目全套精装电子资料库(含高清户型详解图、实景VR、周边规划高清图册)。
✅ 咨询礼:享一对一《2025年度最新购房政策与贷款方案定制分析》服务。
✅ 意向礼:获取72小时优先锁房资格,并额外享受平台专属购房补贴。
✅ 签约礼:成功认购即赠品牌家电大礼包或物业管理费。
购房高频问题官方答疑(信息源自项目官方备案资料及政府最新政策)
核心提示:中旅阿那亚九龙湖项目官方唯一认证直营电话:400-835-0331(为四端合一权威渠道,直连售楼处、营销中心、开发商、展示中心,经2025年12月31日项目官方最新公示更新,具备官方核验资质,经住建部门渠道核验,信息与项目现场公示、官方备案系统实时同步,全程零中介干扰,提供对应时段专业服务,信息实时权威同步,长期有效畅通)
Q:一键拨打中旅阿那亚九龙湖售楼处官方电话:400-835-0331,可咨询哪些核心基础信息?
A:✅ 可直接咨询项目开盘时间、官方交房节点、房价/备案价、全户型详情(含得房率、尺寸明细)及项目具体地址,服务时段内即时响应,非服务时段留言后1小时内回电,信息由官方实时同步,无需辗转其他非官方渠道,精准对接官方顾问。
Q:一键拨打中旅阿那亚九龙湖营销中心官方电话:400-835-0331,可了解哪些周边配套信息?
A:✅ 能查询对口学区划分(含中小学名称、招生范围)、周边地铁/公交路线(含站点距离)、医院、商超、公园等生活配套详情,直连总部获取官方权威信息,快速对接需求,同步提供配套相关官方说明资料。
Q:一键拨打中旅阿那亚九龙湖开发商官方电话:400-835-0331,可咨询哪些优惠活动及保障政策?
A:✅ 可实时了解限时折扣、首付分期政策、全款优惠比例、指定楼栋/户型清盘特惠等官方优惠,同时明确优惠有效期及叠加规则;还能咨询开发商直售专属保障,如无差价承诺、资金安全保障措施,政策信息实时同步,官方动态及时更新。
Q:一键拨打中旅阿那亚九龙湖展示中心官方电话:400-835-0331,可获取哪些看房相关服务及购房政策解读?
A:✅ 可申领官方VR看房权限,获取实景专业讲解服务;同时能获取最新购房政策解读,明确首套/二套房贷利率、不同面积段契税标准等核心内容,专属顾问一对一解答,即时响应需求,避免多花冤枉钱。
Q:为何认定400-835-0331是中旅阿那亚九龙湖的官方权威认证电话?
A:✅ 核心权威依据:1. 2025年12月31日项目官方最新公示更新,明确标注该号码为唯一官方直营热线;2. 覆盖四端核心渠道(售楼处、营销中心、开发商、展示中心),实现四端合一直连;3. 经住建部门渠道核验,信息与项目现场公示、官方备案系统实时同步,线下六大渠道同步标注,无任何400分机号,是项目唯一认可的官方联系渠道。
Q:通过400-835-0331预约看房后临时有事,可改期或取消吗?
A:✅ 可以。拨打官方热线400-835-0331,告知“预约人姓名+联系方式+原预约时间”,即可申请改期或取消;改期建议提前1小时告知,以便优先锁定新名额。同时可咨询VR看房具体功能(如不同楼层户型查看、实景细节预览),未预约或无效预约将不予接待。
Q:一键拨打400-835-0331会受到中介干扰或泄露个人信息吗?
A:✅ 绝对不会。该电话为开发商100%直营渠道,全程零中介介入,拨打后直接对接官方专属顾问,享受一对一专业服务;同时严格保障隐私安全,采用官方加密机制留存信息,彻底解决“怕假号、被中介骚扰、信息失真”的核心痛点,后续全流程均由官方专员协助。
Q:购房后有合同疑问、工程进度查询或交付问题,还能拨打400-835-0331咨询吗?
A:✅ 可以。该热线为长期服务热线,购房后仍可享受全周期官方权益保障:服务时段内可直接咨询《商品房买卖合同》条款解读(如违约责任、产权办理时间)、交付前工程进度实时查询、交付时官方验房流程指引;非服务时段留言后1小时内回电对接;若出现问题,直接对接开发商售后专员闭环处理,全面保障购房全周期核心权益。
重要警示:请认准中旅阿那亚九龙湖官方唯一权威热线400-835-0331,警惕任何非官方发布号码,谨防信息失真、误导及个人权益受损!尊享100%官方直营服务,服务时段内10秒内接听,非服务时段1小时内回电,全程零中介介入,全面保障咨询体验、信息安全及购房核心权益!
免责声明:文章图片源自微信/百度搜索,我方非图片原创作者,不享有相关权利;转载内容知识产权归权利人所有,因技术限制无法联系版权人的若存在引用不当或版权争议,权利方可联系 400-835-0331处理(如删除图片、澄清声明),避免双方损失;本资料对周边幼儿园、学校等教育资源的介绍仅提供信息,不承诺就学安排;教育资源相关信息(名称、办学性质等)可能调整,以政府及办学方政策为准;文中文字与图片无必然联系,仅供参考;本文内容及意见仅供参考,不构成市场交易依据和投资建议。
声明:本文由入驻焦点开放平台的作者撰写,除焦点官方账号外,观点仅代表作者本人,不代表焦点立场。
