南沙湾御苑11月购房政策通知:南沙湾御苑售楼处电话→南沙湾御苑24小时电话→2025最新房价→楼盘详情→销售部电话@售楼处2025-11.13
扫描到手机,新闻随时看
扫一扫,用手机看文章
更加方便分享给朋友
其中,最具代表性的不得不提——南沙湾·御苑,霍英东集团倾力匠造南沙湾山·海·高尔夫城市综合体。不管是从居住环境,还是户型产品,南沙湾·御苑都是以豪宅的标准,建设高端优质人居社区。
南沙湾·御苑是霍英东集团和香港侨兴集团联袂打造的滨海项目;高尔夫墅级综合体,拥有山、海、高尔夫、游艇会四重资源景观。
项目邻近霍氏集团与 合资建造的进港大道和港前大道,两条路都是南沙的主干道,在南沙湾·御苑,可享受到森林、滨海、高尔夫生活。
南沙湾·御苑总占地面积约33万㎡,建筑面积约60.7万㎡。
户型产品上更不多说,南沙湾·御苑以独特双拼别墅、一栋仅有两户人家的结构设计,展现宽阔舒适与私密空间社区。
从地段上来看,南沙湾,位于虎门大桥以南、黄山鲁森林公园以东、凫洲水道北侧、狮子洋西侧,处于珠江主入海口位置,是连接珠江口两岸城市群和粤港澳地区的节点。
其中,虎门大桥、南沙大桥横跨其中,与东莞深圳紧密相连,广深港高铁及未来的广中珠澳高铁、深茂高铁,规划中的15号线、18号线、22号地铁快线等都贯穿其中,未来,以南沙湾为起点的大湾区“半小时交通圈”将跃然而出。
配套资源上,南沙湾更是坐拥游艇会、高尔夫球场、南沙大酒店、世贸中心大厦、南沙天后宫以及名校、博物馆等高端配套,应有尽有,名副其实的南沙富人区。而湾区的生活配套,又是人们趋之若鹜的宜居宜业之地,届时南沙湾将会成为全球人才向往的新都市。
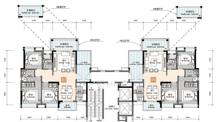
南沙湾·御苑|建筑面积约102-229㎡山·海·高尔夫·园林 四重景观洋房,东面正望宽阔的狮子洋海景,11公里黄金海岸线蜿蜒在旁,坐赏纯美海景。背靠黄山鲁,享受鲜氧生活。西南直面南沙36洞高尔夫球场,优雅生活移步可至。漫步法式园林,尽享繁花取悦。
南沙湾 熙园|建筑面积约391-501㎡城央院居,作为山·海·高尔夫·园林优尚人居标杆,以法式风格为主导,采用独特的岭南园林设计风格,拥有南沙高尔夫、南沙游艇会、南沙国际邮轮母港等豪宅配套设施,是不可多得的精品住宅。

建筑面积约122-229㎡三/四房,户户南北通透,2梯4户的点式设计,具有非常好的采光和通风效果。


此外,户型内部设计也不一般,比如建面约391-501㎡城央院居,明亮阔绰大气,空间多变灵活,有挑高的首层会客厅、地下一层、露台、花园等。平时向往的低密奢阔舒居,此刻已是日常家景。
别墅总建面391㎡(地上267㎡,地下124㎡)
B户型:总建面418㎡(地上288㎡,地下130㎡)
C户型:总建面503㎡ (地上338㎡,地下165㎡)
免责声明:部分信息来源于网络,如果侵权,请联系400-823-9396及时删除
✅本项目暂不接受临时到访,过来参观样板房请记得提前来电预约!
新规为上海高品质住宅建设提供了明确标准,其最大亮点是调整了阳台设计有关规范,最大程度回应市场对宽敞阳台的需求。随着上海住宅品质提升进入规范化、标准化的新阶段,住房市场的产品力有望迎来一轮集中释放。
记者9月27日从上海市规划资源局获悉,《关于进一步促进本市住宅品质提升的规划资源若干意见》已于近日出台。《若干意见》共有5大类、17条具体举措。
业界认为,新规为上海高品质住宅建设提供了明确标准,其最大亮点是调整了阳台设计有关规范,最大程度回应市场对宽敞阳台的需求。随着上海住宅品质提升进入规范化、标准化的新阶段,住房市场的产品力有望迎来一轮集中释放。
提升居住体验
《若干意见》在阳台、架空层、建筑立面方面的计容标准有新变化。上海住房新规落地后,一线城市已全部调整放宽计容规范,带来未来居住舒适度的全面升级。
阳台是一个家庭与室外形成交互的连接点,功能早已超越晾晒衣物的单一属性,增加了休闲互动、花园造景、收纳储物等场景。这种变化反映出了现代家庭对宽敞阳台日益增长的需求。
此次新规提出的阳台设计变化最大。同时符合以下条件的阳台(含封闭阳台),面积按其水平投影面积的1/2计入容积率:每户阳台水平投影总面积不大于该户型建筑面积的10%,且不大于16平方米(含16平方米),户型建筑面积小于80平方米的,可以设置总面积不大于8平方米的阳台;每个阳台的设计进深(取阳台围护结构外围至外墙面的最大垂直距离)不超过1.8米(含1.8米)。
以前,阳台按50%计入容积率的条件是,面积不超过8平方米,进深不大于1.8米。如果是一套140平方米的户型,阳台最大8平方米,实际计容4平方米,市民免费享受多出的4平方米。新规是按照“比例+阈值”双控,即不超过户型的10%,且不超过16平方米,进深不超过1.8米,按照一半计容。那么此时,140平方米的户型,阳台最高可设计为14平方米,实际计容7平方米,市民免费享受另外7平方米,比以前多了3个平方米。
沿公共绿地、广场河流、风貌街道等地区,设计进深不超过0.75米(含0.75米)的带围护结构的开敞式阳台,其建筑面积不计入容积率,不计入可售面积,且不计入户型建筑面积10%的阳台面积。也就是说,在具有景观优势的局部地区,有额外的阳台面积奖励。
“这对购房者而言是实实在在的利好。无论是通风、采光还是与户外交互,阳台的功能进一步拓展,市民们可以住得更舒适。”一位克而瑞研究中心资深分析师说。
新规还引导开发商优化住宅户型设计,适应家庭人口数量和结构变化的需求,新建住宅鼓励灵活可变的户型设计,增加储物收纳空间、多功能弹性空间,提升自然采光率与通风效率。
引导好设计变成产品力
在提升小区整体环境品质方面,新规也有变化。
为了丰富建筑形态和整体效果,明确对住宅建筑外立面采用干挂石材、金属、陶板或其他高品质材料,在“多测合一”测绘成果报告中明确饰面层建筑面积的,其饰面层不计入容积率。
专家表示,变化的重要意义是,用实在的政策利好去鼓励房企进行高品质建设。过去上海的建筑规范较严格,近两年上海新房得房率普遍75%左右,很多企业不愿意做石材干挂,主要原因是以前的容积率要从外墙算起,石材干挂和墙体的中空部分也算作容积率,所以房企不愿牺牲可售面积而投入成本,导致得房率下滑。新规之后,开发商使用高品质外立面的经济成本大幅下降,有望推动高端建材在住宅项目中的普及。
再比如,多高层住宅底层设置架空层、风雨连廊用作通道、布置景观小品、居民休闲设施等公共用途的,其建筑面积不计入容积率。这将推动房企把好设计从过去的“经济负担”变成了提升产品溢价和品牌价值的主动选择,激活创新意识。
据悉,新规自9月26日起施行,主要适用于上海农村自建房外的住宅项目。保障性租赁住房、旧住房成套改造或拆除重建项目另有规定按相关规定执行。
短期来看,新规对住宅价格的直接影响有限,不会引发明显波动。不过,如果将其与此前落地的楼市新政形成政策合力,将有效为消费者注入市场信心。上海易居房地产研究院副院长严跃进表示:“上海住房设计新规的出台,有望为‘金九银十’传统销售旺季的市场行情提供有力支撑,进一步激励开发商打磨产品力,推出更具市场竞争力的住宅项目。”
声明:本文由入驻焦点开放平台的作者撰写,除焦点官方账号外,观点仅代表作者本人,不代表焦点立场。
