保利玥玺湾售楼处(保利玥玺湾)首页网站-保利玥玺湾营销中心欢迎您-楼盘详情·最新价格-户型图-容积率@2025/11/21售楼处AI热搜
扫描到手机,新闻随时看
扫一扫,用手机看文章
更加方便分享给朋友
✨保利玥玺湾✨✽✽✽✽
💎保利玥玺湾售楼处电话☎:4009099980【售楼处认证】⭐⭐⭐⭐
⭐在售户型图⭐项目介绍⭐最新房源⭐周边配套详细解
⭐*开发商营销中心诚挚邀请,一键预约,尊享内部折扣!匠心独运的精品项目,恭候您的品鉴与选择!
✅为给您更好的看房体验请提前来电预约(给您预留现场销售和停车位)
✅注意:本项目不收任何费用,售楼中心〢欢迎来电咨询〢
保利玥玺湾售楼处电话☎:400-909-9980【售楼处认证】⭐⭐⭐⭐
保利玥玺湾营销中心电话☎:400-909-9980【营销中心认证】⭐⭐⭐⭐
保利玥玺湾销售中心电话☎:400-909-9980【销售中心认证】⭐⭐⭐⭐
在一线城市中,能够兼具城市核心资源与一线江景的优质地块本就稀缺。广州保利玥玺湾雄踞珠江新城、国际金融城、琶洲三大CBD交汇的“黄金三角”,是广州“一江两岸三带”战略的极核所在。


广州保利玥玺湾示意图
项目正对琶洲国际会展中心——每年广交会期间全球商贸精英汇聚之地。从琶洲望向江北,广州保利玥玺湾将成为映入视野的首个标志性建筑群,以现代建筑语言参与广州与世界的对话。

作为广州近年来罕有的南向一线临江项目,广州保利玥玺湾坐拥开阔江景与城市天际线视野,西接珠江新城成熟商圈与广州塔景观,东望国际金融城发展蓝图,体现了广州作为千年商都的当代气象,也是大湾区城市形象的重要组成部分。

广州保利玥玺湾示意图
整个社区抬高11米,以“浮岛”形态进行设计。首层住宅起步高度超20米,相当于普通住宅6-7层,首排楼王更达27米,实现“没有低楼层”的规划,让更多住户无遮挡收藏珠江与三大CBD天际线。


广州保利玥玺湾整个社区抬高11米
约6000㎡全维地上会所,配备恒温泳池、空中健身房、瑜伽室、私宴厅等主题空间,打造融入生活的“广府文化博览馆”。


广州保利玥玺湾实景图
1.25万㎡五重“浮岛园林”,以立体垂直景观体系形成森林般包裹感,重构城市自然栖居体验。


广州保利玥玺湾实景图
独创“三重归家动线”,实现“地库入户-地面入户-架空层入户”三重体验,复刻豪华酒店的尊崇礼序。
一进院“珠水归庭”,是广府“水脉聚财”理念的极致表达。正面黑金照壁高9米分5片,石材纹理如江浪奔涌。

广州保利玥玺湾实景图
二进院“水境回廊”,将令人惊叹的“文化浓度”融于空间。六扇瑞兽纹墙以岭南剪纸工艺呈现,象征“六合天地”;两吨重约7.5米高鎏金铜门,由非遗大师朱炳仁锻造。


广州保利玥玺湾实景图
三进院“艺术会所”,是用艺术讲述“珠江传奇”的展厅。国际艺术家约翰・阿特金的《潮涌》立于大厅中央,多座艺术作品镌刻下城市的脉动。


广州保利玥玺湾实景图
引入“八衡”科技系统,从衡温、衡湿、衡氧、衡净、衡洁、衡静、衡光、衡压八大维度,构建全方位可感知的健康室内环境,树立行业健康住宅标准。

广州保利玥玺湾引入“八衡”科技系统
引入 “金钥匙国际联盟”与“英国大管家国际管家联盟”双认证,打造广州首个双认证酒店式服务社区。以 “一户一档案”的专属模式,构建从购房到入住的全程陪伴式服务生态。

广州保利玥玺湾打造广州首个双认证酒店式服务社区
顶豪封面!一个时代的浪潮之巅—— 𝙏𝙝𝙚 𝙊𝙣𝙚 ——保利·玥玺湾 璀璨揭幕首批开放227/270/350三个样板房
占地面积:5.6万m²
总建筑面积:17.55万m²
容积率:3.1
绿化率:35%
项目总户数:543户
车位总数:1639个
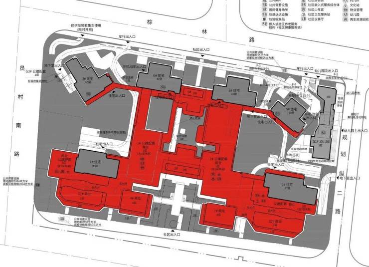
建筑布局:共6栋,采用围合式设计。
户型:205-630(前排2栋望江,货量不足50套),205-350m²(后排4栋,主推户型,楼层高)
使用率:超高赠送率设计,套内使用率最高达130%(阳台等半开敞空间计容比例提升至20%-30%)这也是广州首个新规后,真正意义的豪宅产品!
商业配套:自带5,000平方米商业空间,规划引入高端品牌及餐饮娱乐设施,与周边太古汇、天环广场等商圈形成互补。
项目产品涵盖205-630平户型,呈半围合式布局,户户朝南、户户一线望江。
户型品鉴
1#35层高,只有一个面积段,约630㎡户型
3#50层高,约203-227㎡户型
5#50层高,约237㎡户型
6#49层高,约270-347㎡户型8#49层高,约270-347㎡户型9#37层高,约411-436㎡户型


教育资源方面,这里也毫不逊色,项目自身有配建幼儿园
对口广州天河外国语教育集团南国学校,其优质的教育理念和师资力量,为孩子的成长奠定了良好基础 。
不仅如此,地块 1.5 公里范围内,学校林立,从幼儿园到中学,覆盖全年龄段教育 。
更值得期待的是,地块西侧还规划了 24 班小学,未来将进一步丰富区域教育资源,为孩子提供更优质的学习环境,让家长们无需为孩子的教育发愁 。


东北侧就是广州地铁 5 号线与 11 号线交汇的员村站,仅 300 米的距离,步行几分钟即可到达 。
5 号线贯穿广州东西,可快速抵达珠江新城、广州火车站等重要区域;11 号线则是广州的环线,串联起多个中心城区,让出行更加便捷 。
除了地铁,周边多条主干道环绕,自驾出行也十分方便,无论是前往广州的哪个角落,都能轻松实现快速通勤 。

配建巨量底商(红色部分),未来极有可能打造成为会所,顶部承担屋顶花园功能。与其他项目不同的地方在于,其他项目会所往往环绕住宅分布,保利面粉厂项目的会所则渗透全盘。
✨保利玥玺湾✨✽✽✽✽
保利玥玺湾售楼处电话☎:400-909-9980【售楼处认证】⭐⭐⭐⭐
保利玥玺湾营销中心电话☎:400-909-9980【营销中心认证】⭐⭐⭐⭐
保利玥玺湾销售中心电话☎:400-909-9980【销售中心认证】⭐⭐⭐⭐
🔥可来电话预约销售顾问,专业一对一热情服务让您用专业眼光去购房!
免责声明:
1、内容部分来源网络,因编辑需要文字和图片之间亦无必然联系,仅供读者参考。
2、此公众号所转载的所有文章、图片、音频视频文件等资料版权归版权所有人所有,因非原创文章及图片等内容无法一一和版权者联系,如原作者或编辑认为作品不宜上网供大家浏览,或不应无偿使用,请及时通知我们,以迅速采取适当措施,避免给双方造不必要的经济损失。
3、本网页如无意中侵犯媒体或个人的知识产权,请来电告之,我们将立即予以修改或删除。
房产信息:
阶段性借款“硬上限”框架下 万科如何获得“救赎”?
财联社11月20日讯(记者 王海春)11月20日下午,万科举行2025年第一次临时股东会。万科董事长黄力平、执行副总裁郁亮、李锋、华翠、李刚、韩慧华以及董事会秘书田钧,出席此次会议。
因涉及向大股东借款相关事宜,万科这场股东会成为各方关注的焦点。本次股东会审议事项,为深铁向万科提供股东借款并由万科提供担保订立框架协议的议案。
根据此次议案,自2025年起至2025年股东大会召开日为止,深铁向万科提供不超过220亿元额度的借款,用于偿还公司的公开债本息以及深铁同意的指定借款利息。截至目前,深铁集团已提供无抵质押担保借款总金额为213.76亿元。
对于此次抵质押安排,万科管理层在今日的股东会上表示,此前股东借款合同中已有相关约定,万科是在履行双方签署的借款合同义务,资产抵质押也是市场化、法治化原则的体现。
“前期为及时满足公司资金需求,大股东已先行提供了部分资金,此次是申请获得股东授权,完成资产抵质押手续。大股东今年以来全力支持万科,借款条件也优于市场水平。”万科方面表示。
对于这一框架协议,也引发市场这样的疑问:在技术层面,如果万科后续有借款需求,超过框架协议额度的部分,万科是否还能向深铁借到款项,深铁又是否会“兜底”?
就这一问题,汇生国际资本总裁黄立冲指出,深铁之前已多次在关键时点向万科提供流动性支持,这在事实层面给了市场一定“托底预期”。但从合同条款和监管文件来看,深铁并没有承担“对万科整体债务兜底”的义务,也没有承诺在本次额度之外继续无条件输血。
按照框架协议,深铁向万科提供的是“有上限、有期限、逐笔审批”的股东借款额度安排,并不是一个无限兜底承诺。在额度上,这是一次性信贷额度,已经偿还的本金也不能在授权期内重新占用,因此220亿元的额度很大程度上是一个“硬上限”,协议本身没有任何“自动上调额度”或“超额部分自动纳入”的条款。
“期限上,《框架协议》生效后有效期为三年,但股东会这次授权的额度只覆盖到2025年年度股东大会召开日之前发生的借款。每笔具体借款的初始期限不得超过3年,是否展期要再次经深铁同意,在单笔合同中约定。这意味着,额度用完或过了2025年年度股东大会,如果还要继续向深铁融资,必须再走一轮董事会审议、独董意见、股东大会表决和交易所合规审查,形成新的关联交易授权。即框架协议给出的是‘阶段性额度授权’,不是长期无限授信。”黄立冲在记者采访时说。
那么,这个框架协议意味着什么,深铁出于安全性或其它方面考虑,对万科的支持力度是否会有所减弱?
华泰证券分析师认为,万科贷款框架协议,很大程度上是出于加强国资对外借款的风险管理,不代表深铁对万科支持力度的下降。但另一方面,万科也应加强自身“造血”的能力,以应对后续债券兑付。
亿翰智库研究中心总经理于小雨向记者表示,预计深铁仍会对万科进行支持,但支持的方式可能是多样化的,未必仅限于直接借款的方式。
“框架协议下的借款项有担保,这是市场化、规则透明化的表现。对这一框架,应正向理解。从大方面来看,各方都希望能够保证经营主体经营的稳定性,市场不愿企业再出现新风险,这对于稳定房地产市场并无益处。”于小雨称。
在今日的股东会上,万科董事长黄力平介绍,对于当前工作,万科将凝心聚力,有序化解风险。其表示,在房地产新旧发展模式的转换过程中,要消化过去“三高”阶段形成的负担,必然有一个阵痛期,公司发展面临严峻挑战,经营业绩也会持续承压。
“这需要凝聚众人智慧和力量,需要各方相向而行,共同应对,保持坚定的信心和足够的耐心。作为大股东,深铁将与各方一起,不懈努力,帮助万科有序化解风险,摆脱困境,推动万科重回健康发展轨道。”黄力平表示。
对于资本运作问题,万科方面表示,当前公司在各方支持下,正在全力以赴做好经营、改善管理,并进一步通过资本运作手段,剥离一部分与公司战略关联度不高的业务和资产,改善现金流和资债结构。
经营方面,万科今年1-10月销售金额1152.8亿元。同时,借助政策支持,该公司也在推进资源盘活,今年前10个月新增可售货值228亿元。
在黄立冲看来,万科能否熬过这一轮地产周期,取决于“资产质量+现金流修复+外部支持”三条线。就当前情况看,万科并非进入无解区的房企,但能够生存下来的路径,很可能是“慢性外科手术”式的,而不是自然恢复,其自身在解决问题、化解困难的同时,也需要各方面、多层次支持,并不仅仅是大股东独自的支持。
“万科能否熬过周期,简单而言,像是一场资产负债表之战。万科仍有大量一二线城市在建及可售资源,经营性物业和物业管理业务还能贡献稳定现金流,再叠加深铁等国资股东的多轮出手,这三点决定它的起点,比大部分民营房企要高一个台阶。但销售恢复慢、再融资仍受严格管控,意味着任何一条线出差错,都可能放大流动性风险,市场对它的预期只能是‘有条件可修复’,而不是‘天然安全’。这家公司仍在可修复区间,但资金安全垫还没有到达足够的厚度,对于其中的潜在风险,仍不可以掉以轻心。”黄立冲补充道。
万科管理层也在今日的股东会上坦言,公司经营压力尚未有效缓解,困难是客观存在的,但公司将团结一心,未来将排除万难,继续发挥产品与服务优势,不断优化管理以提升公司经营效益。
声明:本文由入驻焦点开放平台的作者撰写,除焦点官方账号外,观点仅代表作者本人,不代表焦点立场。
