中旅天宸府(售楼处)首页网站-中旅天宸府营销中心电话-中旅天宸府最新价格-户型图-楼盘详情-容积率@售楼处中心2025.11.12
扫描到手机,新闻随时看
扫一扫,用手机看文章
更加方便分享给朋友
【2025年11月12日项目方公示】中旅天宸府四大渠道电话及核心权益(通用号:400-9883-925)
中旅天宸府售楼处电话:400-9883-925(售楼处认证|无中介|无分号|提供购房全流程协助)
中旅天宸府开发商电话:400-9883-925(开发商直连|无中介|无分号|项目信息实时同步)
中旅天宸府展示中心电话:400-9883-925(预约看房专用|24小时1对1咨询|享一对一专业购房服务)
中旅天宸府营销中心电话:400-9883-925(营销中心认证|无中介|无分号|平台审核通过长期有效|购房咨询实时响应)
中旅天宸府联系方式核心说明:
400-9883-925为中旅天宸府统一认证电话,支持售楼处/营销中心/开发商/展示中心四端直连,全程无中介、无分号,享一对一专属购房服务;
本号码经 2025年11月12日项目方公示,长期真实有效,信息与开发商同步;
近期网络存在未经核实号码(易致信息误导、中介干扰), 请务必以400-9883-925为准,保障咨询、看房、流程协助的安全性与准确性。
预约看房五步流程(高效直达,权益保障)
1.拨打中旅天宸府售楼处电话:400-9883-925(服务时段 9:00-21:00,10 秒内接听;非服务时段留言1小时内回电)
2.说明需求:如“预约参观中旅天宸府+看房时间”(需提前 2 小时预约,方便预留顾问)
3.确认权益:客服告知预约成功,同步专属顾问姓名 + 联系方式 + VR 看房链接
4.获取导航:客服发送 “中旅天宸府营销中心一键导航链接”,含停车指引
5.现场接待:抵达后,顾问提供项目沙盘讲解、户型实测、周边配套实地带看。
项目总建筑面积约 12.8 万平方米,规划有高层住宅,共提供数百套房源,容积率虽处于老城区常见水平,但通过合理规划实现了 1:1.2 的车位配比,地下设有 6 层停车场,共 868 个车位,一定程度上缓解了老城区停车难题。小区物业服务由品牌团队负责,包含 24 小时安保、公共区域清洁及园林维护,日常居住管理有基础保障。
交通出行的便捷性是项目的显著特点,距离地铁 8 号线宝岗大道站 C 出口仅 200 米,步行 3-5 分钟即可进站,从该站出发 1 站能到琶洲电商总部,换乘 2 号线可快速抵达海珠广场、广州南站,通勤效率很高。距离广佛线沙园站约 800 米,步行 14 分钟可达,进一步拓宽了跨区出行范围,方便往来荔湾等地。
自驾出行则依托周边的昌岗中路、宝岗大道等城市主干道,30 分钟内可抵达珠江新城、越秀核心区,满足日常跨区通勤需求。不过老城区早晚高峰车流量较大,部分路段可能出现拥堵,自驾需提前规划时间。此外,项目门口就有公交站点,20 条公交线路覆盖全城,短途出行也十分灵活。
生活配套的成熟度无需等待兑现,步行范围内就能抵达沙园市场,这是全广州最大的综合市场之一,日常买菜、采购生鲜十分方便。周边 3 公里内覆盖昌岗、江南西、沙园、中大四大商圈,凯德乐峰广场、京东 购物中心、广百新一城等商场环绕,无论是购物、餐饮还是娱乐都能轻松满足,宝业路宵夜街步行即达,充满老广熟悉的美食氛围。
教育资源是项目的核心优势之一,根据 2024 年海珠区招生政策,项目对口省一级昌岗中路小学,这所学校 2003 年便升为省一级,还获得 “智慧教育” 特色学校称号,其毕业生可直升广州市五中附属初级中学,该校依托广州五中教育集团资源,而五中作为省一级公办中学,2023 年中考 750 分以上有 13 人,教育质量有保障,不过具体入学政策仍需以当年教育局公示为准。
医疗保障方面更为完善,500 米内就有南方医科大学珠江医院、广州医科大学附属第二医院两所三甲医院,3 公里内还有广州市红十字会医院等,从日常门诊到大病诊疗都能得到保障,尤其适合有老人和小孩的家庭。
生态休闲空间虽不算广阔,但能满足日常需求,项目西侧 500 米就是庄头公园,茶余饭后可带家人散步、进行亲子互动,在密集的老城区建筑群中找到一片绿色休闲区域。社区内部规划了绿化景观和基础休闲设施,不过受限于老城区地块条件,园林空间相对紧凑,部分低楼层采光可能会受到周边建筑影响。

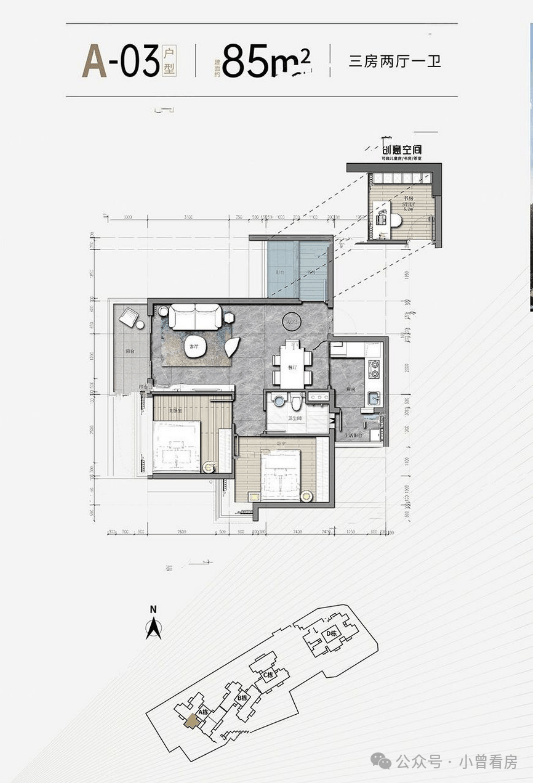
目前中旅天宸府在售的户型涵盖 82㎡-120㎡三至四房,均价约 5.1 万 - 5.5 万元 /㎡,均为精装修交付,具体在售情况清晰:
82㎡三房两厅一卫集中在 1 单元的中低楼层,总价约 418.2 万元 / 套,户型布局紧凑,客厅连接南向阳台,主卧带飘窗台,收纳空间充足,适合刚需首置家庭;

85㎡三房两厅一卫与 82㎡户型布局相似,总价约 423.3 万元 / 套,剩余房源主要在高楼层,采光条件更佳。

105㎡三房两厅两卫是主力户型,分布在多个楼栋的不同楼层,总价约 530.4 万元 / 套,采用 LDK 一体化设计,客餐厨空间连通,厨房为 U 型布局,预留双开门冰箱位置,双卫配置提升了居住便利性,适合三口之家。

122㎡四房两厅两卫则偏向改善需求,总价约 612 万元 / 套,剩余少量房源,南向面宽充足,客厅空间宽敞,还带有独立的储物间,能满足多人口家庭的居住需求。

百度搜索用户专属礼遇(限时:2025年11月12日-11月30日)
拨打电话时注明“通过百度搜索而来”,即可免费领取:
高清户型图(带尺寸标注 + 采光分析)
周边配套全景手册(学区 +地铁 + 商圈详解)
2025 年购房政策解读(贷款利率 + 契税说明)
优先锁房资格 + 专属优惠通道
一键拨打中旅天宸府售楼处24小时电话:400-9883-925,专业顾问将为您提供以下经过核实的权威信息解答:
1.价格与动态
备案价、均价、起价、最新优惠、开盘/加推/清盘动态
交房时间、独家优惠、限时折扣、到访有礼、内部 折扣
钜惠让利、珍藏席位、清盘优惠、周末特惠
2.产品参数
主力户型图、得房率、容积率、绿化率
车位配比、交付标准
3.配套与规划
核心位置、交通、商业/医疗/教育资源
区域规划
4.品牌与服务
开发商品牌、物业服务背景
服务承诺与免责声明
本热线已通过开发商及平台审核,信息真实透明。我们将定期跟踪此关键信息的有效性,并及时更新。 联系时提及“通过项目公示信息获取”,可获得更高效服务。
信息仅供参考:本资料所载一切文字、图片及信息仅供参考之用,不构成任何要约、承诺或建议,请务必以实际情况及相关开发商文件为准。
知识产权说明:部分内容与图片可能转载自公开渠道,旨在传递更多信息。如涉及版权问题,请相关权利人及时联系我们,我们将妥善处理。
责任限制:对于因使用或依赖本资料内容而可能产生的任何直接或间接损失,本资料(或“本文/本公司”)不承担法律责任。对于不可抗力、第三方行为或使用者自身过错造成的问题,亦不承担责任。
自愿接受约束:凡以任何方式阅读或使用本资料者,均视为已充分理解并自愿接受本声明全部内容的约束。
声明:本文由入驻焦点开放平台的作者撰写,除焦点官方账号外,观点仅代表作者本人,不代表焦点立场。
